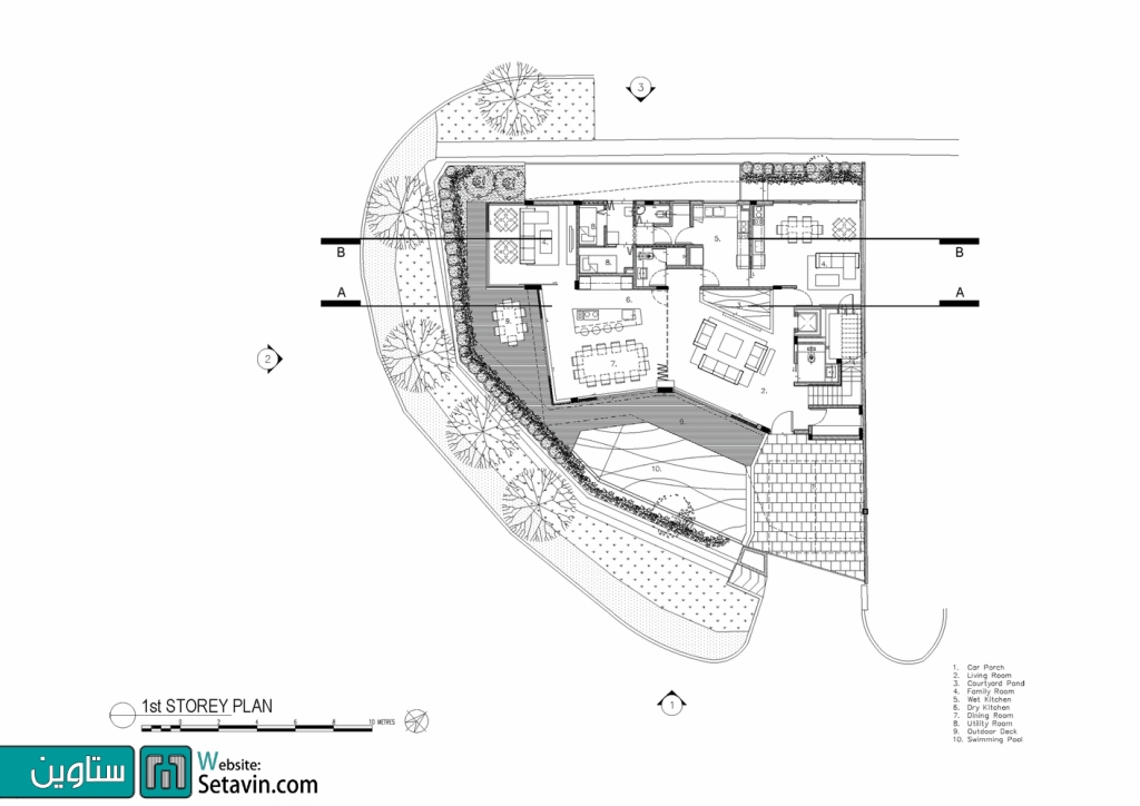
خانه ی زیبا Trevose ، در گوشه یک تقاطع در منطقه ای مسکونی و سرسبز و زیبا در سنگاپور واقع شده است .این خانه ،در میان درختانی زیبا و بلند قامت و پیاده رو ای آرام وساکت محدود شده است . تیم طراحی A D LAB ، در ابتدای فرایند طراحی با ایده ای مبنی بر اینکه حجم بنا می بایست الهام گرفته از محیط پیرامون باشد و سایت و زمینه بر پروژه می بایست تاثیر گذار باشد ، کار خود را شروع کردند .

تیم طراحی امیدوار بودند تا بتوانند هرچه بیشتر در تقویت زیبایی و آرامش سایت با طراحی و ساخت پروژه ، تاثیر گذار باشند ، حتی با وجود برخی جابجایی ها ، احداث یک ساختمان جدید و تغییر الگوی فضای سبز پیرامون در طول فرآیند طراحی و ساخت . این بلند پروازی جهت تعمیم دادن برخی ویژگی های سایت، حس فضاهای سبز ،حرکت و آرامش موجود و . . . طراح را با چالش برای پاسخ گویی به نیاز ها و مطالبات زمینه و نیز کارفرما روبرو می کند .

به گفته معمار پروژه ، معماران قادر به انجام و برآورده ساختن درخواستهای جاه طلبانه و بلند پروازانه مالکین ،با خلق فضاهایی متناسب با نیازها همراه با بهره گیری از اصول اولیه همچون نور و اقلیم هستند .در همین راستا به منظور حذف فضاهای سبز و بافت موجود ، تیم طراحی ، اقدام به طراحی تراس ها و ایوان هایی بزرگ و سبز گرفتند، تا این مشکل هم در سطح و هم در ارتفاع حل شود .

از ویژگی های این بنا ، طراحی و اجرای تراس هایی زیبا در جداره حجم بنا به صورت پیوسته و چمن های سبز رنگ که به سقف اصلی نیز منتهی می گردد ، می باشد .این تراس ها، به صورت بافری سبز میان فضاهای خصوصی داخل و محیط خارج ایفای نقش کرده و دارای عملکرد استفاده جهت مخاطبین نیز می باشند . با ستاوین همراه باشید تا نگاهی به این خانه زیبا در سنگاپور داشته باشیم . . .





















تذکر : استفاده از مطالب وب سایت ستاوین ( شبکه هنر و معماری ستاوین ) فقط با ذکر منبع و لینک بلامانع است . کلیه حقوق، محتوا و طراحی سایت متعلق به وب سایت ستاوین میباشد. در غیر این صورت مراتب از طریق مراجع قانونی پیگیری خواهد شد .
دوستان و همراهان عزیز ستاوین ( شبکه هنر و معماری ستاوین ) ، با نظرات و پیشنهادات سازنده خود ما را در ارائه هر چه بهتر مطالب و اهداف مان، که همانا ارتقا جایگاه و فرهنگ معماری می باشد ، یاری کنید . منتظر دیدگاه های شما عزیزان هستیم . . .
منبع: archdaily
ترجمه شده توسط تحریریه ستاوین - (علیرضا اورعی)