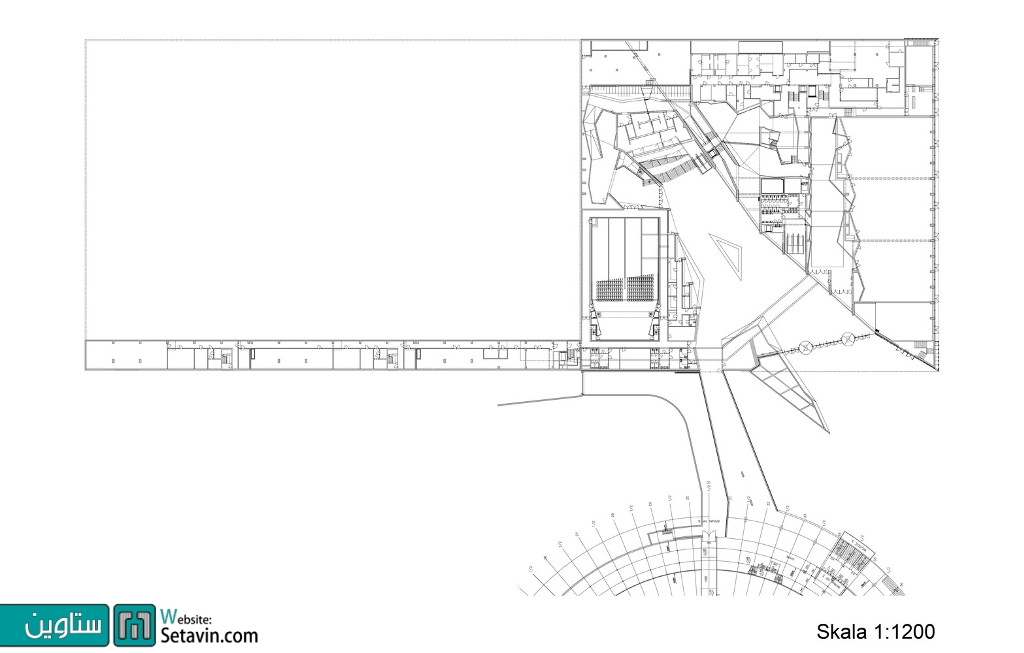
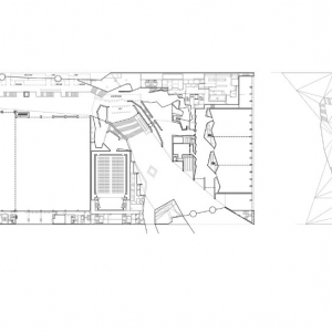
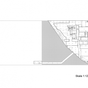
در این پست ،با ستاوین همراه شوید تا با پروژه بین المللی مرکز همایش های و کنفرانس Katowice آشنا شویم . پروژه مذکور در نزدیکی Spodek Arena ،واقع شده که در سال 1962 در روند چالش برنامه ریزی شهری و معماری شکل گرفت .

کلمه Spodek که در لهستان به معنی بشقاب می باشد ، ساختمانی شاخص و برجسته در میان دستاورد های معماری معاصر لهستان می باشد و یکی از بخش ها و نمادها برای Katowice و منطقه Upper Silesian است ،که توسط معماران Maciej Gintowt و Maciej Krasiński، طراحی شده است . یک نمونه معماری خاص با ویژگی های برجسته و نمادین که در طرح های توسعه جدید به گفته معمار از ارزش آن کاسته نشده است .

مجموعه ای با مقیاس بزرگ که شامل بخش های Spodek Arena ، موزه Silesian ، سالن کنسرت Philharmonic می باشد. از جمله ویژگی های شاخص در طرح به گفته معمار پروژه ، اصلاح دره سبز می باشد . فضا و مکانی که با تغییر مسیر خطوط طراحی و تراز ها خلق شده است . کاربرد این فضا در طول سال برای رویداد هایی همچون نمایشگاه ها در فضای باز و سایر اتفاقات می باشد . این بخش از طرح به عنوان گذرگاهی در پروژه نیز ایفای نقش می کند . با ستاوین (شبکه معماری ایران ) همراه باشید . . .


































تذکر : استفاده از مطالب وب سایت ستاوین ( شبکه هنر و معماری ستاوین ) فقط با ذکر منبع و لینک بلامانع است . کلیه حقوق، محتوا و طراحی سایت متعلق به وب سایت ستاوین میباشد. در غیر این صورت مراتب از طریق مراجع قانونی پیگیری خواهد شد .
دوستان و همراهان عزیز ستاوین ( شبکه هنر و معماری ستاوین ) ، با نظرات و پیشنهادات سازنده خود ما را در ارائه هر چه بهتر مطالب و اهداف مان، که همانا ارتقا جایگاه و فرهنگ معماری می باشد ، یاری کنید . منتظر دیدگاه های شما عزیزان هستیم . . .
منبع: archdaily
ترجمه شده توسط تحریریه ستاوین