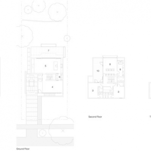
در این پست، نگاهی خواهیم داشت به ساختمانی مسکونی زیبای Heathdale ،ساختمانی برای زندگی یک خانواده در فضایی با زیربنای حدود 3200 فوت مربع، که در بخشی از پارک Cedarvale در مرکز شهر تورنتو واقع شده است . به گفته معمار پروژه ، این خانه، دارای نما و جبهه ای قاطع و سنگین در ارتباط با خیابان و جبهه ای باز در ارتباط با فضای سبز و دره پارک Cedarvale می باشد .

هسته مرکزی در طراحی این بنا، پلکان چوبی ساده با طراحی راست خط می باشد . منظر و دید به فضای سبز در طبقه سوم به اوج خود می رسد . به گفته طراح ، با توجه به قرارگیری پروژه در سایت ، مخاطب در ترازی برابر با بالاترین شاخ و برگ درختان قرار می گیرد و از منظری منحصر به فرد لذت خواهد برد . در واقع ، در این پروژه هدف بیان تفاوت و شخصیت یک جبهه بنا با توجه به مقتضیات سایت ، از عمومی و خصوصی گرفته تا کاربری و عملکرد و ... می باشد . همراهان عزیز ستاوین ( شبکه هنر و معماری ایران ) با ما همراه باشید . . .

















تذکر : استفاده از مطالب وب سایت ستاوین ( شبکه هنر و معماری ستاوین ) فقط با ذکر منبع و لینک بلامانع است . کلیه حقوق، محتوا و طراحی سایت متعلق به وب سایت ستاوین میباشد. در غیر این صورت مراتب از طریق مراجع قانونی پیگیری خواهد شد .
دوستان و همراهان عزیز ستاوین ( شبکه هنر و معماری ستاوین ) ، با نظرات و پیشنهادات سازنده خود ما را در ارائه هر چه بهتر مطالب و اهداف مان، که همانا ارتقا جایگاه و فرهنگ معماری می باشد ، یاری کنید . منتظر دیدگاه های شما عزیزان هستیم . . .
منبع: شبکه معماری ایران (ستاوین) , Archdaily
ترجمه شده توسط تحریریه ستاوین