در این پست، نگاهی خواهیم داشت به پروژه دفتر مرکزی کارخانه نساجی V ، که درواقع فضایی برای بخش صادرات و سایر ریزفضاهای مربوط به آن می باشد . این پروژه ،توسط تیم طراحی معماری Zemberek Design ، در شهر استانبول ، ترکیه اجرا گردیده است .

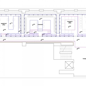
برنامه ریزی در طرح بدین صورت می باشد، که فضاهای بخش صادرات به سه قسمت تقسیم شده است: فضای مدیریت , فضای نمایشگاهی و فضای اجرایی و ارتباط با مخاطب ،که به گفته معمار پروژه ، این فضاها می بایست به صورت بصری با یکدیگر در ارتباط باشند ، در عین حال که حریم خصوصی به جهت شنیداری حفظ گردد .

از جمله اهداف طراحی ، می توان به موارد زیر اشاره کرد:داشتن فضایی یکپارچه به جهت سیرکولاسیون عملکردی در فضا ، عدم جابجایی پارتیشن ها و جداره های داخلی ، خلق یک محور اصلی که سه عملکرد ذکر شده فوق را پاسخگو باشد ،در نتیجه طراح اقدام به تغییر فضاها با توجه به کف آنها نموده است .

از جمله موارد قابل توجه در طراحی داخلی، استفاده متضاد از متریال های مختلف در کنار یکدیگر است .سطوح بتنی خشن و تیره رنگ در کنار سطوح سفید براق و لمینت شده ، سطوح فلزی و سرد در کنار متریال شیشه و نیز طراحی ساختاری راست خط و دارای نظم در کنار مبلمانی منحنی و . . . متریال های کف عبارتند از پارکت های لمینت گردو ، سطوح پلی اورتان سفید رنگ و شیشه .
با ستاوین همراه باشید . . .












تذکر : استفاده از مطالب وب سایت ستاوین ( شبکه هنر و معماری ستاوین ) فقط با ذکر منبع و لینک بلامانع است . کلیه حقوق، محتوا و طراحی سایت متعلق به وب سایت ستاوین میباشد. در غیر این صورت مراتب از طریق مراجع قانونی پیگیری خواهد شد .
دوستان و همراهان عزیز ستاوین ( شبکه هنر و معماری ستاوین ) ، با نظرات و پیشنهادات سازنده خود ما را در ارائه هر چه بهتر مطالب و اهداف مان، که همانا ارتقا جایگاه و فرهنگ معماری می باشد ، یاری کنید . منتظر دیدگاه های شما عزیزان هستیم . . .
منبع: شبکه معماری ایران (ستاوین) , archdaily
ترجمه شده توسط تحریریه ستاوین - (علیرضا اورعی)