مرکز فرهنگی سینمایی Moda Sahnesi ،اثر تیم معماری Halukar Architecture،ترکیه

مجموعه: پروژه های معماری ، تاریخ انتشار: ۲۵ / ۱۰ / ۱۳۹۴ ، شناسه: ۱۳۸۰ ، بازدید:۶۰۲۶

مکان : Caferağa, Moda Cd., 34710 Kadıköy/İstanbul, Turkey
سال : 2013
مشاور طراحی معماری : Halukar Architecture
همکاران طراحی : Gamze İscan, Bilge Kalfa
زیربنا پروژه : 1830 مترمربع
عکس : Depikt

مشاور آگوستیک : Michael Nielsen

 

در این پست، نگاهی خواهیم داشت به Kafkas Sineması ( سینما قفقازی ) که در سال 1969 افتتاح گردید و در واقع بخش الحاقی ارزشمندی به منظر فرهنگی  Moda در استانبول ترکیه می باشد . این مجموعه،به مرور زمان به یک تئاتر بدل گردید و تحت نام و برند همسایه خود Moda Sineması که همان سینما Moda می باشد، از سال 1984 الی 2000 فعالیت داشت .

 

مرکز فرهنگی سینمایی , Moda Sahnesi ، تیم معماری , Halukar Architecture , ترکیه , مرکز فرهنگی , سینما , تئاتر , طراحی سینما , ترکیه , استامبول , ستاوین , theatre

 

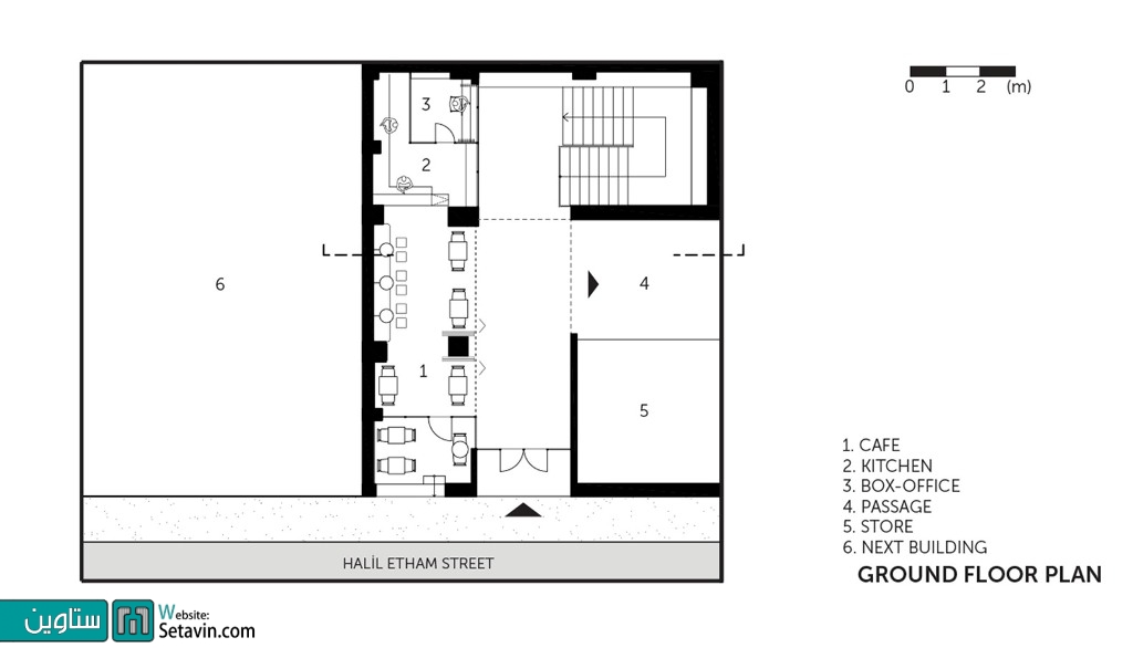
با گذشت زمان و عدم استفاده از این فضا ،تعداد 12 نفر از همکاران و شرکاء این عرصه ، تصمیم به تبدیل ساختمان غیر قابل استفاده به یک مجموعه تئاتر و مرکز فرهنگی تحت نام Moda Sahnesi یا Moda Stage  گرفتند . عملیات اجرایی Moda Sahnesi به زیربنای 1820 مترمربع از January سال 2013 آغاز شد . در کنار مجموعه صحنه اصلی ،فضاهای سینما، سالن های ورکشاپ ،کافه و . . . واقع شده است .

 

مرکز فرهنگی سینمایی , Moda Sahnesi ، تیم معماری , Halukar Architecture , ترکیه , مرکز فرهنگی , سینما , تئاتر , طراحی سینما , ترکیه , استامبول , ستاوین , theatre

 

به گفته تیم طراحی پروژه Halukar Architecture ، یکی از مهمترین جزئیات در طرح ، فضای 3*3 متر می باشد ، فضایی خالص ، ساده و شیشه ای که فضاهای ورکشاپ رو از سرسرا و سالن اصلی جدا می کند . این سطح شیشه ای ، سبب شده است فضا به عنوان کارگاهی برای تمرین و پیش نمایش اصلی و حتی یک تئاتر کوچکتر مورد استفاده قرار گیرد . سالن اصلی مجموعه دارای ظرفیت 750 نفر می باشد . فضایی انعطاف پذیر همراه با خلاقیت در طراحی و اجرای فضاهای نشستن .

 

مرکز فرهنگی سینمایی , Moda Sahnesi ، تیم معماری , Halukar Architecture , ترکیه , مرکز فرهنگی , سینما , تئاتر , طراحی سینما , ترکیه , استامبول , ستاوین , theatre

مرکز فرهنگی سینمایی , Moda Sahnesi ، تیم معماری , Halukar Architecture , ترکیه , مرکز فرهنگی , سینما , تئاتر , طراحی سینما , ترکیه , استامبول , ستاوین , theatre

مرکز فرهنگی سینمایی , Moda Sahnesi ، تیم معماری , Halukar Architecture , ترکیه , مرکز فرهنگی , سینما , تئاتر , طراحی سینما , ترکیه , استامبول , ستاوین , theatre

 

 

مرکز فرهنگی سینمایی , Moda Sahnesi ، تیم معماری , Halukar Architecture , ترکیه , مرکز فرهنگی , سینما , تئاتر , طراحی سینما , ترکیه , استامبول , ستاوین , theatre

مرکز فرهنگی سینمایی , Moda Sahnesi ، تیم معماری , Halukar Architecture , ترکیه , مرکز فرهنگی , سینما , تئاتر , طراحی سینما , ترکیه , استامبول , ستاوین , theatre

مرکز فرهنگی سینمایی , Moda Sahnesi ، تیم معماری , Halukar Architecture , ترکیه , مرکز فرهنگی , سینما , تئاتر , طراحی سینما , ترکیه , استامبول , ستاوین , theatre

 

 

مرکز فرهنگی سینمایی , Moda Sahnesi ، تیم معماری , Halukar Architecture , ترکیه , مرکز فرهنگی , سینما , تئاتر , طراحی سینما , ترکیه , استامبول , ستاوین , theatre

مرکز فرهنگی سینمایی , Moda Sahnesi ، تیم معماری , Halukar Architecture , ترکیه , مرکز فرهنگی , سینما , تئاتر , طراحی سینما , ترکیه , استامبول , ستاوین , theatre

مرکز فرهنگی سینمایی , Moda Sahnesi ، تیم معماری , Halukar Architecture , ترکیه , مرکز فرهنگی , سینما , تئاتر , طراحی سینما , ترکیه , استامبول , ستاوین , theatre

 

 

مرکز فرهنگی سینمایی , Moda Sahnesi ، تیم معماری , Halukar Architecture , ترکیه , مرکز فرهنگی , سینما , تئاتر , طراحی سینما , ترکیه , استامبول , ستاوین , theatre

مرکز فرهنگی سینمایی , Moda Sahnesi ، تیم معماری , Halukar Architecture , ترکیه , مرکز فرهنگی , سینما , تئاتر , طراحی سینما , ترکیه , استامبول , ستاوین , theatre

مرکز فرهنگی سینمایی , Moda Sahnesi ، تیم معماری , Halukar Architecture , ترکیه , مرکز فرهنگی , سینما , تئاتر , طراحی سینما , ترکیه , استامبول , ستاوین , theatre

 

 

مرکز فرهنگی سینمایی , Moda Sahnesi ، تیم معماری , Halukar Architecture , ترکیه , مرکز فرهنگی , سینما , تئاتر , طراحی سینما , ترکیه , استامبول , ستاوین , theatre

مرکز فرهنگی سینمایی , Moda Sahnesi ، تیم معماری , Halukar Architecture , ترکیه , مرکز فرهنگی , سینما , تئاتر , طراحی سینما , ترکیه , استامبول , ستاوین , theatre

مرکز فرهنگی سینمایی , Moda Sahnesi ، تیم معماری , Halukar Architecture , ترکیه , مرکز فرهنگی , سینما , تئاتر , طراحی سینما , ترکیه , استامبول , ستاوین , theatre

 

 

مرکز فرهنگی سینمایی , Moda Sahnesi ، تیم معماری , Halukar Architecture , ترکیه , مرکز فرهنگی , سینما , تئاتر , طراحی سینما , ترکیه , استامبول , ستاوین , theatre

مرکز فرهنگی سینمایی , Moda Sahnesi ، تیم معماری , Halukar Architecture , ترکیه , مرکز فرهنگی , سینما , تئاتر , طراحی سینما , ترکیه , استامبول , ستاوین , theatre

مرکز فرهنگی سینمایی , Moda Sahnesi ، تیم معماری , Halukar Architecture , ترکیه , مرکز فرهنگی , سینما , تئاتر , طراحی سینما , ترکیه , استامبول , ستاوین , theatre

 

 

مرکز فرهنگی سینمایی , Moda Sahnesi ، تیم معماری , Halukar Architecture , ترکیه , مرکز فرهنگی , سینما , تئاتر , طراحی سینما , ترکیه , استامبول , ستاوین , theatre

مرکز فرهنگی سینمایی , Moda Sahnesi ، تیم معماری , Halukar Architecture , ترکیه , مرکز فرهنگی , سینما , تئاتر , طراحی سینما , ترکیه , استامبول , ستاوین , theatre

مرکز فرهنگی سینمایی , Moda Sahnesi ، تیم معماری , Halukar Architecture , ترکیه , مرکز فرهنگی , سینما , تئاتر , طراحی سینما , ترکیه , استامبول , ستاوین , theatre

 

 

مرکز فرهنگی سینمایی , Moda Sahnesi ، تیم معماری , Halukar Architecture , ترکیه , مرکز فرهنگی , سینما , تئاتر , طراحی سینما , ترکیه , استامبول , ستاوین , theatre

مرکز فرهنگی سینمایی , Moda Sahnesi ، تیم معماری , Halukar Architecture , ترکیه , مرکز فرهنگی , سینما , تئاتر , طراحی سینما , ترکیه , استامبول , ستاوین , theatre

مرکز فرهنگی سینمایی , Moda Sahnesi ، تیم معماری , Halukar Architecture , ترکیه , مرکز فرهنگی , سینما , تئاتر , طراحی سینما , ترکیه , استامبول , ستاوین , theatre

مرکز فرهنگی سینمایی , Moda Sahnesi ، تیم معماری , Halukar Architecture , ترکیه , مرکز فرهنگی , سینما , تئاتر , طراحی سینما , ترکیه , استامبول , ستاوین , theatre

 

 

مرکز فرهنگی سینمایی , Moda Sahnesi ، تیم معماری , Halukar Architecture , ترکیه , مرکز فرهنگی , سینما , تئاتر , طراحی سینما , ترکیه , استامبول , ستاوین , theatre

مرکز فرهنگی سینمایی , Moda Sahnesi ، تیم معماری , Halukar Architecture , ترکیه , مرکز فرهنگی , سینما , تئاتر , طراحی سینما , ترکیه , استامبول , ستاوین , theatre

مرکز فرهنگی سینمایی , Moda Sahnesi ، تیم معماری , Halukar Architecture , ترکیه , مرکز فرهنگی , سینما , تئاتر , طراحی سینما , ترکیه , استامبول , ستاوین , theatre

 

 

تذکر : استفاده از مطالب وب سایت ستاوین ( شبکه هنر و معماری ستاوین ) فقط با ذکر منبع و لینک بلامانع است . کلیه حقوق، محتوا و طراحی سایت متعلق به وب سایت ستاوین می‌باشد. در غیر این صورت مراتب از طریق مراجع قانونی پیگیری خواهد شد .

دوستان و همراهان عزیز ستاوین ( شبکه هنر و معماری ستاوین ) ، با نظرات و پیشنهادات سازنده خود ما را در ارائه هر چه بهتر مطالب و اهداف مان، که همانا ارتقا جایگاه و فرهنگ معماری می باشد ، یاری کنید . منتظر دیدگاه های شما عزیزان هستیم . . .

منبع: شبکه معماری ایران (ستاوین) , Archdaily

آیا تمایل دارید نام ، برند و محصولات شما برای مخاطبین ما نمایش داده شود؟ ( اینجا کلیک کنید )

ترجمه شده توسط تحریریه ستاوین - (علیرضا اورعی)

تبلیغات

شبکه هنر و معماری ستاوین

استفاده از محتوای سایت با ذکر منبع و درج لینک بلامانع است . کلیه حقوق مادی و معنوی , محتوا و طراحی متعلق به شبکه هنر و معماری ستاوین می باشد .