در این پست، نگاهی خواهیم داشت به یک کاربری تجاری - اداری در ترکیه که طراح این اثر توانسته با خلاقیت و ایده پردازی ، فضایی با کارایی بالا و زیبا خلق کند . دفتر مرکزی شرکت بین المللی تجارتی و توزیع کننده کفش با برند Skechers TR . این فضا ،برای نمایش تولیدات شرکت و ارایه محصولات فصل ،جهت عوامل فروشنده و نمایندگان فروش طراحی و اجرا گردیده است .

فضای موجود ، به جهت نداشتن معیار های مناسب و کارایی لازم، از نگاه کارفرما فضایی با طرح غیر منطقی بود ، لذا تصمیم بر طراحی این فضا توسط تیم معماری Zemberek Design ، گرفته شد . به جهت استفاده از تولیدات و سبک های مختلف نیاز به فضایی با قابلیت تغییر و انعطاف پذیری در ارائه محصولات احساس می شد ،که خود مبنایی برای طراحی توسط تیم طراحی قرار گرفت .

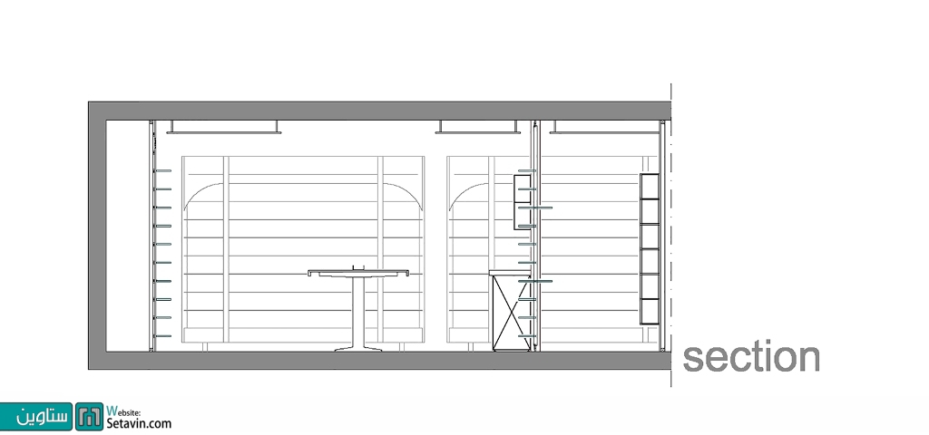
از ویژگی های منحصر به فرد در طرح ارائه شده ،قابلیت طبقه بندی و دسته بندی در مقیاس دلخواه و فرم مدنظر است . سیستمی مدولار و پویا که سازماندهی راحت و آسانی را در اختیار استفاده کننده قرار می دهد . به گفته معمار پروژه ، این شیوه طراحی سبب تعامل و ارتباط بیشتر با مخاطب می گردد و نیز در زمان های مختلف می توان تولیدات با تعداد مختلف را به نمایش گذاشت . این سیستم مدولار دارای مکانیزمی ساده توسط صفحات چوبی متصل به جداره می باشد .




















تذکر : استفاده از مطالب وب سایت ستاوین ( شبکه هنر و معماری ستاوین ) فقط با ذکر منبع و لینک بلامانع است . کلیه حقوق، محتوا و طراحی سایت متعلق به وب سایت ستاوین میباشد. در غیر این صورت مراتب از طریق مراجع قانونی پیگیری خواهد شد .
دوستان و همراهان عزیز ستاوین ( شبکه هنر و معماری ستاوین ) ، با نظرات و پیشنهادات سازنده خود ما را در ارائه هر چه بهتر مطالب و اهداف مان، که همانا ارتقا جایگاه و فرهنگ معماری می باشد ، یاری کنید . منتظر دیدگاه های شما عزیزان هستیم . . .
منبع: شبکه معماری ایران (ستاوین) , archdaily
ترجمه شده توسط تحریریه ستاوین