مرکز فرهنگی Pompidou-Metz ، فهم تضاد در يک پوشش شهري
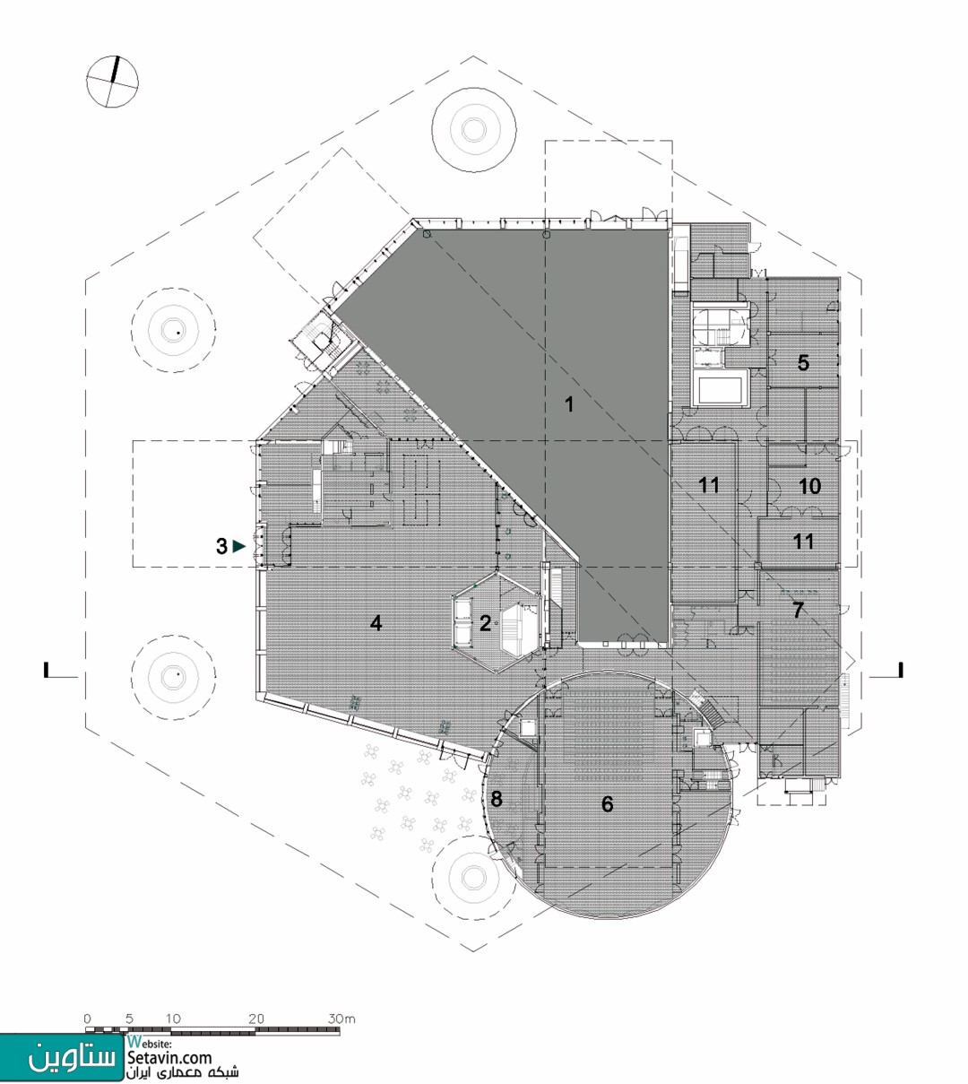
در این پست با ستاوین همراه باشید تا نگاهی به مرکز پمپيدو-متز ( Pompidou-Metz ) ، اولين شعبه از يک نهاد بزرگ فرهنگي فرانسه ، که توسط معمار ژاپني Shigeru Bam و معمار فرانسوي Jean de Gastines طراحي و در ماه مه افتتاح شده است، داشته باشیم . ساختار سقف مواج با روکش چوب ، با 77 متر مارپيچ فلزي احاطه شده و فريم با پشم شيشه شفاف و سايه باني با پارچه تفلون پوشش داده شده و ديوارهاي ساختمان را تا ارتفاع 20 متر نگه داشته است .

ساختار 5000 متر مربع از فضاي نمايشگاه را در ميان دو باغ و يک تراس شيبدار ، اشغال مي کند . اين فضاي نمايشگاه مدولار و با ابعاد بزرگ ، داراي يک استوديو براي اجراي زنده ، سالن اجتماعات ، مناطق پذيرايي ، فروشگاه ، کتابفروشي ، رستوران و کافه مي باشد . اين محل استثنايي و سخاوتمندانه به عنوان يک تجربه منحصر به فرد در نظر گرفته شده ، جايي براي دوستي با آفرينش هنري در تمام اشکال آن .

هدف ساختار ، ارائه انگيزه براي خلق و آفرينش است . معماري شجاعانه اين ساختار در نگاه بازديد کننده ، يک ساختمان نوراني و روشن و در عين حال مستحکم است که آنها را به اين پاويون – تحت حفاظت بام خود – دعوت مي کند .

























ترجمه این پروژه توسط : محمد خوانساری , کانال معماری هیچ ( hich@ ) (تلگرام)
آدرس کانال تلگرام هیج (جهت دستیابی به سایر اطلاعات کلیک نمایید ) : https://telegram.me/hiich
تذکر : استفاده از مطالب وب سایت ستاوین ( شبکه هنر و معماری ستاوین ) فقط با ذکر منبع و لینک بلامانع است . کلیه حقوق، محتوا و طراحی سایت متعلق به وب سایت ستاوین میباشد. در غیر این صورت مراتب از طریق مراجع قانونی پیگیری خواهد شد .
دوستان و همراهان عزیز ستاوین ( شبکه هنر و معماری ستاوین ) ، با نظرات و پیشنهادات سازنده خود ما را در ارائه هر چه بهتر مطالب و اهداف مان، که همانا ارتقا جایگاه و فرهنگ معماری می باشد ، یاری کنید . منتظر دیدگاه های شما عزیزان هستیم . . .
منبع: شبکه معماری ایران (ستاوین) , گروه معماری هیچ (Hich)
ترجمه شده توسط تحریریه ستاوین - (علیرضا اورعی)