در این پست با ستاوین همراه باشید تا نگاهی به خانه تاریخی امیری در محله " عیدگاه " و درنزديكىِ گذر و محل "باغ حسن خان" مربوط به دوره ى تاريخى قاجاريه در مشهد داشته باشیم .اين بنا داراى ويژگى هاى منحصربه فردى ست ، يكى ازويژگى هاى بنا طبق مطالعات تاريخى، ميدانى و سونداژهاى شناسايى ، وجود دو بازه ى زمانى مربوط به دوره ى قاجاريه مى باشد ،كه درساخت و نماى بنا مشهود است ، به اين معنى كه نماى شرقى بنا دوپوسته ى تاريخى دارد و بنا هم زمان مى تواند دوبازه ى زمانى را پس ازمرمت به نمايش بگذارد، ازديگرويژگى هاى بااهميت بنابراساس شواهدبه دست آمده تاييددرخصوص نكاتى ست كه دركتاب"نفوس ارض اقدس"ذكرشده است ، طبق نوشته ى كتاب، محله اى كه بناى اميرى درآن قراردارد بيشتر خادمين ، نگهبانان و فراشان حرم رضوى بوده اند.

بناى تاريخى اميرى سالها بدون استفاده وخالى ازسكنه بوده است وهمواره مورد اختلاف شديد بين سازمان ميراث فرهنگى وشهردارى منطقه ثامن بوده است و در طول اين سالها بدليل اختلاف سازمانهاى مربوط و عدم ارايه ى راهكارهاى همه جانبه وتعامل، و تغييرچندين مديريت، در بنا شاهد فرسايش فراوان بوده ايم كه به عنوان نمونه ريزش درجبهه ى شمالى و ازبين رفتن بخشى ازسقف درجبهه ى شرقى بخشى از اين فرسايش است .
پس ازپايان مرمت عمارت تاريخى داروغه توسط دفتر "معماران بن" (که از طرف یونسکو به عنوان اثر برگزیده در منطقه آسیا -اقیانوسیه-2016- انتخاب شده است)، طراحى ايده اى به عنوان راهكارِ برون رفت ازاين چالش آغاز ،و پس ازچندين ماه كار، به عنوان راهكارى همه جانبه درفضاى ميانجى گرى،مصالحه و تعامل به مسئولين ارائه شد. در نهایت ،طرح پیشنهادی، با تشکیلِ جلسه اى باحضورسازمان ميراث فرهنگى،شهردارى و بخش خصوصى منجر به تعهد بخش خصوصى(مالك فعلى) به پرداخت هزينه هاى مرمت بناى تاريخى اميرى شد و مقرر شد که با اعمال تغييراتى درنما وپلان پروژه ى جديد (ضامن) بنای امیری ، درنهايت احترام درآغوش حمايت قرار گیرد، لازم به ذکر است كه اين اتفاق تاكنون در بافت تاريخى مشهد بى سابقه بوده است.
يكى ازايده هاى دفتر "معماران بن" براى برون رفت ازچالش بافت تاريخى مشهد ، پیروی از مکتب بناهای میان افزا است ، -كه سالها برآن تاكيد وبراى آن تلاش مى كند . مكتب بناهاى ميان افزا درايران بى سابقه نيست، امابسياركم سابقه است که ازآن جمله مى توان به هتل شاه عباسى، طراحى شده درقبل ازانقلاب، اشاره كرد. اما، دردنيا اين مقوله، بيش ازچندين دهه، سابقه دارد.به عنوان يكى ازمهمترين وشاخص ترين اين نمونه ها، می توان از مجموعه ى شهر برلين ، پس ازجنگ جهانى نام برد.



با توجه به اینکه، شهرتاريخى مشهد ، به هردليلى ، دستخوش تغییر و تحولات شدیدی شده است و امروز ، شاهدبافت تاريخى ازهم ، گسسته اى هستيم , كه دركمال تاثر وشرمندگى قابل بازگشت نيست ! بهره گیری ازمكتب بناهاى ميان افزا، يكى ازدوراهكار جدى وپيشنهادى براى نجات معدودبناهاى تاريخىِ باقى مانده است.
در تجربه ی مشابه و موفقی دیگر، شهردارى كه پيش ازاين، طرحى مبنى برتخريب دوسوم بنای بلخاسب راداشت متعهدشد به منظور جلوگیری ازتخريب، چندين متر از شارستان وخيابان تازه تاسيس راجابه جاكند. اين جابه جايى هزينه هاى بالايى رابه اين نهاد تحميل كرد. ولی در نهایت به نجات بناى تاريخى بلخاسب -كه درنزديكى بناى اميرى قراردارد- انجامید.

لازم به ذکر است که بناهاى تاريخى "اميرى" و"بلخاسب" به لحاظ موقعيت (حاشيه ى شارستان) درآينده نیز بسيارحايزاهميت هستند و اجراى اين طرح، مى تواند نمونه ى كاملى ،براى آغاز اين رويكرد، دركل بافت محدوده باشد.
متاسفانه، پس از گذشت شش ماه ، عمليات مرمت پروژه تعطيل شده است! و براى بازگشايى مجدد نيز، پس ازگذشت يكسال وچندماه، اقدامی صورت نگرفته است و سازمان ها و نهاد های مرتبط با موضوع ، تاكنون به تعهداتش پایبند نبوده است.
به اميد آن كه مجددا و هرچه زودتر ، پروژه مرمت اين بناى ارزشمند آغاز گردد. شاید این عاملی برای تشویق بخش خصوصی جهت حفظ معدود بناهای تاریخی باقیمانده در بافت تاریخی شهر مشهد باشد و نهاد های تاثیر گذار در این امر نیز بتوانند با درنظر گیری امتیاز هایی برای بخش خصوصی سرمایه گذار ، قدمی در حفظ این بناهای ارزشمند بردارند ...

اداره مرکزی و مجتمع مسکونی فابریکا کامپاری ایتالیا اثر ماریو بوتا و همکاران
منبع : سایت اختصاصی ماریو بوتا
یک کارخانه ی نخریسی قدیمی -برلین -آلمان
منبع : آرشیو مرصعی

تالین ، استونی
شیوه ی مدخله در بافت تاریخی شهر و بازسازی و احیا کارخانه ی صنایع غذایی با قدمت 150 ساله

طرح نوسازی و بهسازی بافت پیرامون حرم مطهر امام رضا(ع)- 1379

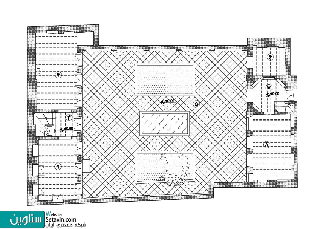
طرح پیشنهادی معماران بن برای جابه جایی محور شارستان به منظور حفظ خانه تاریخی امیری و بلخاسب
(این طرح طبق صورتجلسه مورخ 24/12/1393 فی مابین شهرداری مشهد و منطقه ثامن و اداره کل سازمان میراث فرهنگی هم اکنون در حال اجراست )
در ادامه این پست می توانید نگاهی به این خانه تاریخی و مراحل مرمت آن داشته باشید ...






تصاویر بیشتر در ارتباط با این بنا را می توانید در بخش آلبوم تصاویر ملاحظه بفرمایید ...
نویسنده : دفتر معماران بن
تذکر : استفاده از مطالب وب سایت ستاوین ( شبکه هنر و معماری ستاوین ) فقط با ذکر منبع و لینک بلامانع است . کلیه حقوق، محتوا و طراحی سایت متعلق به وب سایت ستاوین میباشد. در غیر این صورت مراتب از طریق مراجع قانونی پیگیری خواهد شد .
دوستان و همراهان عزیز ستاوین ( شبکه هنر و معماری ستاوین ) ، با نظرات و پیشنهادات سازنده خود ما را در ارائه هر چه بهتر مطالب و اهداف مان، که همانا ارتقا جایگاه و فرهنگ معماری می باشد ، یاری کنید . منتظر دیدگاه های شما عزیزان هستیم . . .
منبع: شبکه معماری ایران (ستاوین)
گردآوری شده توسط تحریریه ستاوین - (علیرضا اورعی)