ساختمان مسکونی روزن ، رتبه اول جایزه معمار در بخش مسکونی 1395 ، اثر شرکت طرح و ساخت ری را ، تهران

مجموعه: پروژه های معماری ، نویسنده ری را استودیو ، تاریخ انتشار: ۱۴ / ۱۱ / ۱۳۹۵ ، شناسه: ۲۱۸۶ ، بازدید:۱۱۵۹۹
نویسنده مقاله

مکان : تهران، زعفرانیه، کوچه کوهرنگ
سال : 1395
مشاور طراحی معماری : شرکت طرح و ساخت ری را
آرشیتکت (معمار /معماران) : عباس ریاحی فرد، فریناز رضوی نیکو
همکاران طراحی : ياسر کريميان، نويد نصرا...زاده، حمید رضا گذریان، محمد قلي پور، شهرزاد پوش فام، پریسا پورشهراب، ابراهیم روستایی
کارفرما : بردیا احرامیان
طراحی سازه : کامران ادراکی
تاسیسات الکتریکی : رضا توکلی
تاسیسات مکانیکی : شرکت مک تل
وضعیت پروژه : بهره برداری
مساحت زمین : 1050 مترمربع
زیربنا پروژه : 3580 مترمربع
عکس : شرکت طرح و ساخت ری را

 

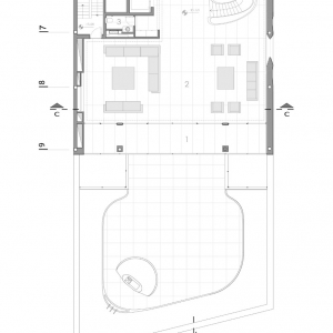
در این پست با ستاوین همراه باشید تا نگاهی به رتبه اول جایزه معمار در بخش مسکونی آپارتمانی سال 1395 اثر شرکت طرح و ساخت ری را داشته باشیم ... به گفته تیم طراحی پروژه روزن ، خواسته کارفرمای پروژه ، بنایی مسکونی در7 طبقه ، شامل دو واحد آپارتمانی مشابه به همراه یک واحد تریپلکس بود .در اینجا سازماندهی حجمی با توجه به شیب طبیعی تند زمین که از شمال به جنوب 16 متر بود ، درسه قسمت به گونه ای درنظر گرفته شد که هر یک از قسمت ها به صورت پلکانی بر روی شیب قرار گرفته و امکان نورگیری و دید مناسب برای هر سه قسمت فراهم باشد . در اینجا بخش جنوبی به حیاط و رمپ اسپیرال ، بخش میانی به دو واحد مسکونی و پارکینگ و بخش شمالی با امکان دسترسی از گذر ، به لابی ساختمان و واحد تریپلکس اختصاص یافته است .

 

ساختمان مسکونی روزن , رتبه اول جایزه معمار , بخش مسکونی 1395 , شرکت طرح و ساخت ری را , تهران , ساختمان مسکونی روزن , جایزه معمار ,  ری را

 

در ضلع شمالی ، با توجه به وجود اردوگاه و اشراف وسروصدای ناشی از آن، تصمیم برآن شد تا ازپوسته دوم استفاده شود . پوسته پروژه به صورت یکپارچه از بتن سفید است که ساختمان را در برگرفته و با حفره های بیضی شکل متاثر از سیرکولاسیون وکاربری های داخلی پروژه خراشیده شده است. دراینجا با عقب نشینی حجم ساختمان از برشمالی امکان ایجاد یک نورگیر و حیاط خلوت خصوصی تحقق یافته است که در آن شکافهای پوسته ، نور را به گونه ای سازماندهی شده به درون هدایت و فضای بینابینی آرامش بخش و منحصر به فرد را در بدو ورود ایجاد می نمایند ، ضمن اینکه اشراف از بیرون به داخل را بسیار محدود و امکان حداکثر نورگیری از بالا را از طریق بازشو های عریض و ازکف تا سقف امکان پذیر می سازند . ازآنجا که درجبهه شرقی نیز به علت تعلق زمین به کارفرما امکان ایجاد این روزنه ها فراهم بود ، با ادامه این پوسته بتنی ، دو وجه نمای شرقی و شمالی به صورت یکپارچه دیده شد ولی در ضلع جنوب به دلیل دید و چشم انداز عالی وحداقل اشراف این پوسته قطع و امکان ایجاد بازشوهای عریض وتراسهای سبز فراهم شده است . با ستاوین ( شبکه هنر و معماری ایران ) همراه باشید ... 

 

ساختمان مسکونی روزن , رتبه اول جایزه معمار , بخش مسکونی 1395 , شرکت طرح و ساخت ری را , تهران , ساختمان مسکونی روزن , جایزه معمار ,  ری را

ساختمان مسکونی روزن , رتبه اول جایزه معمار , بخش مسکونی 1395 , شرکت طرح و ساخت ری را , تهران , ساختمان مسکونی روزن , جایزه معمار ,  ری را

 

ساختمان مسکونی روزن , رتبه اول جایزه معمار , بخش مسکونی 1395 , شرکت طرح و ساخت ری را , تهران , ساختمان مسکونی روزن , جایزه معمار ,  ری را

ایده ( کانسپت ):

 

در معماری سنتی ایران که حفظ محرمیت و درون گرایی از شاخصه های اصلی آن بوده است ، بازشوها نقش اساسی در شکل دهی و هویت بخشی به ساختمان داشته اند ولی به تدریج با گذر زمان ، امروزه هویت و موقعیت گذشته خود را از دست داده اند .در این پروژه تلاش شده تا در قالب یک بنای مدرن این نقش باز زنده شده و در عین حال با ایجاد تنوع در طول وعمق روزنه ها از یکنواختی در نما اجتناب شود . 

 

ساختمان مسکونی روزن , رتبه اول جایزه معمار , بخش مسکونی 1395 , شرکت طرح و ساخت ری را , تهران , ساختمان مسکونی روزن , جایزه معمار ,  ری را

ساختمان مسکونی روزن , رتبه اول جایزه معمار , بخش مسکونی 1395 , شرکت طرح و ساخت ری را , تهران , ساختمان مسکونی روزن , جایزه معمار ,  ری را

 

 

ساختمان مسکونی روزن , رتبه اول جایزه معمار , بخش مسکونی 1395 , شرکت طرح و ساخت ری را , تهران , ساختمان مسکونی روزن , جایزه معمار ,  ری را

ساختمان مسکونی روزن , رتبه اول جایزه معمار , بخش مسکونی 1395 , شرکت طرح و ساخت ری را , تهران , ساختمان مسکونی روزن , جایزه معمار ,  ری را

ساختمان مسکونی روزن , رتبه اول جایزه معمار , بخش مسکونی 1395 , شرکت طرح و ساخت ری را , تهران , ساختمان مسکونی روزن , جایزه معمار ,  ری را

The upper triplex unit

 

The project is organized in three parts which settle on the slope gradually. The southern part is the yard and spiral car ramp which connects the street to the parking floor in two height upper. The middle part includes parking area and the twin flats and the northern part devoted to lobbies of the residence , both public and private, and the triplex unit with direct access to the northern alley.

ساختمان مسکونی روزن , رتبه اول جایزه معمار , بخش مسکونی 1395 , شرکت طرح و ساخت ری را , تهران , ساختمان مسکونی روزن , جایزه معمار ,  ری را

ساختمان مسکونی روزن , رتبه اول جایزه معمار , بخش مسکونی 1395 , شرکت طرح و ساخت ری را , تهران , ساختمان مسکونی روزن , جایزه معمار ,  ری را

ساختمان مسکونی روزن , رتبه اول جایزه معمار , بخش مسکونی 1395 , شرکت طرح و ساخت ری را , تهران , ساختمان مسکونی روزن , جایزه معمار ,  ری را

 

 

ساختمان مسکونی روزن , رتبه اول جایزه معمار , بخش مسکونی 1395 , شرکت طرح و ساخت ری را , تهران , ساختمان مسکونی روزن , جایزه معمار ,  ری را

ساختمان مسکونی روزن , رتبه اول جایزه معمار , بخش مسکونی 1395 , شرکت طرح و ساخت ری را , تهران , ساختمان مسکونی روزن , جایزه معمار ,  ری را

ساختمان مسکونی روزن , رتبه اول جایزه معمار , بخش مسکونی 1395 , شرکت طرح و ساخت ری را , تهران , ساختمان مسکونی روزن , جایزه معمار ,  ری را

ساختمان مسکونی روزن , رتبه اول جایزه معمار , بخش مسکونی 1395 , شرکت طرح و ساخت ری را , تهران , ساختمان مسکونی روزن , جایزه معمار ,  ری را

 

 

ساختمان مسکونی روزن , رتبه اول جایزه معمار , بخش مسکونی 1395 , شرکت طرح و ساخت ری را , تهران , ساختمان مسکونی روزن , جایزه معمار ,  ری را

ساختمان مسکونی روزن , رتبه اول جایزه معمار , بخش مسکونی 1395 , شرکت طرح و ساخت ری را , تهران , ساختمان مسکونی روزن , جایزه معمار ,  ری را

ساختمان مسکونی روزن , رتبه اول جایزه معمار , بخش مسکونی 1395 , شرکت طرح و ساخت ری را , تهران , ساختمان مسکونی روزن , جایزه معمار ,  ری را

ساختمان مسکونی روزن , رتبه اول جایزه معمار , بخش مسکونی 1395 , شرکت طرح و ساخت ری را , تهران , ساختمان مسکونی روزن , جایزه معمار ,  ری را

 

 

ساختمان مسکونی روزن , رتبه اول جایزه معمار , بخش مسکونی 1395 , شرکت طرح و ساخت ری را , تهران , ساختمان مسکونی روزن , جایزه معمار ,  ری را

ساختمان مسکونی روزن , رتبه اول جایزه معمار , بخش مسکونی 1395 , شرکت طرح و ساخت ری را , تهران , ساختمان مسکونی روزن , جایزه معمار ,  ری را

ساختمان مسکونی روزن , رتبه اول جایزه معمار , بخش مسکونی 1395 , شرکت طرح و ساخت ری را , تهران , ساختمان مسکونی روزن , جایزه معمار ,  ری را

 

 

ساختمان مسکونی روزن , رتبه اول جایزه معمار , بخش مسکونی 1395 , شرکت طرح و ساخت ری را , تهران , ساختمان مسکونی روزن , جایزه معمار ,  ری را

ساختمان مسکونی روزن , رتبه اول جایزه معمار , بخش مسکونی 1395 , شرکت طرح و ساخت ری را , تهران , ساختمان مسکونی روزن , جایزه معمار ,  ری را

ساختمان مسکونی روزن , رتبه اول جایزه معمار , بخش مسکونی 1395 , شرکت طرح و ساخت ری را , تهران , ساختمان مسکونی روزن , جایزه معمار ,  ری را

 

 

ساختمان مسکونی روزن , رتبه اول جایزه معمار , بخش مسکونی 1395 , شرکت طرح و ساخت ری را , تهران , ساختمان مسکونی روزن , جایزه معمار ,  ری را

ساختمان مسکونی روزن , رتبه اول جایزه معمار , بخش مسکونی 1395 , شرکت طرح و ساخت ری را , تهران , ساختمان مسکونی روزن , جایزه معمار ,  ری را

ساختمان مسکونی روزن , رتبه اول جایزه معمار , بخش مسکونی 1395 , شرکت طرح و ساخت ری را , تهران , ساختمان مسکونی روزن , جایزه معمار ,  ری را

ساختمان مسکونی روزن , رتبه اول جایزه معمار , بخش مسکونی 1395 , شرکت طرح و ساخت ری را , تهران , ساختمان مسکونی روزن , جایزه معمار ,  ری را

ساختمان مسکونی روزن , رتبه اول جایزه معمار , بخش مسکونی 1395 , شرکت طرح و ساخت ری را , تهران , ساختمان مسکونی روزن , جایزه معمار ,  ری را

ساختمان مسکونی روزن , رتبه اول جایزه معمار , بخش مسکونی 1395 , شرکت طرح و ساخت ری را , تهران , ساختمان مسکونی روزن , جایزه معمار ,  ری را

ساختمان مسکونی روزن , رتبه اول جایزه معمار , بخش مسکونی 1395 , شرکت طرح و ساخت ری را , تهران , ساختمان مسکونی روزن , جایزه معمار ,  ری را

 

Here architects designed a perforated concrete shell safeguarding the inhabitant's privacy from the overlooking neighbors .It acts as a second skin protects the inner transparent mass which has been set back and let it have large windows with maximum possible light. This creates a unique calm in-between place which keeps you far away from the city next to that, where water pond duplicates light by reflection and the bamboos, potted in oval-shape container, add life and beauty to the space. This shell continues in the east side, becomes the single skin of the envelope which channels limited light and sight in, but in the south with sweeping views of the city , it has been cut off to have maximum openness

 

ساختمان مسکونی روزن , رتبه اول جایزه معمار , بخش مسکونی 1395 , شرکت طرح و ساخت ری را , تهران , ساختمان مسکونی روزن , جایزه معمار ,  ری را

ساختمان مسکونی روزن , رتبه اول جایزه معمار , بخش مسکونی 1395 , شرکت طرح و ساخت ری را , تهران , ساختمان مسکونی روزن , جایزه معمار ,  ری را

ساختمان مسکونی روزن , رتبه اول جایزه معمار , بخش مسکونی 1395 , شرکت طرح و ساخت ری را , تهران , ساختمان مسکونی روزن , جایزه معمار ,  ری را

ساختمان مسکونی روزن , رتبه اول جایزه معمار , بخش مسکونی 1395 , شرکت طرح و ساخت ری را , تهران , ساختمان مسکونی روزن , جایزه معمار ,  ری را

 

These eyelets and scratches have been inspired by functions behind. In north, there are enclosures in each floor, which oriented them towards a closed-shape, and in the east, with open space and spiral staircases, the perforation orientation shaped in a more dynamic way. Diversified depths and length of them not only enhances the dynamism and vitality of the facade, but also boosts the lighting features and the overnight beauty of the building.

 

ساختمان مسکونی روزن , رتبه اول جایزه معمار , بخش مسکونی 1395 , شرکت طرح و ساخت ری را , تهران , ساختمان مسکونی روزن , جایزه معمار ,  ری را

ساختمان مسکونی روزن , رتبه اول جایزه معمار , بخش مسکونی 1395 , شرکت طرح و ساخت ری را , تهران , ساختمان مسکونی روزن , جایزه معمار ,  ری را

 

تذکر : استفاده از مطالب وب سایت ستاوین ( شبکه هنر و معماری ستاوین ) فقط با ذکر منبع و لینک بلامانع است . کلیه حقوق، محتوا و طراحی سایت متعلق به وب سایت ستاوین می‌باشد. در غیر این صورت مراتب از طریق مراجع قانونی پیگیری خواهد شد .

دوستان و همراهان عزیز ستاوین ( شبکه هنر و معماری ستاوین ) ، با نظرات و پیشنهادات سازنده خود ما را در ارائه هر چه بهتر مطالب و اهداف مان، که همانا ارتقا جایگاه و فرهنگ معماری می باشد ، یاری کنید . منتظر دیدگاه های شما عزیزان هستیم . . .

منبع: شرکت طرح و ساخت ری را

آیا تمایل دارید نام ، برند و محصولات شما برای مخاطبین ما نمایش داده شود؟ ( اینجا کلیک کنید )

گردآوری شده توسط تحریریه ستاوین - (علیرضا اورعی)

تبلیغات

شبکه هنر و معماری ستاوین

استفاده از محتوای سایت با ذکر منبع و درج لینک بلامانع است . کلیه حقوق مادی و معنوی , محتوا و طراحی متعلق به شبکه هنر و معماری ستاوین می باشد .