تیم IT پروژه : DataCom Design Group
در این پست با ستاوین همراه باشید تا نگاهی به یکی از مراکز نوآوری که با ایده جذب خلاقیتها و نوآوریهای افراد ایجادشده اند و به دنبال عرضه یک محصول به بازار هستند و البته محصولی که بر مبنای دانش و پژوهش ساخته شده باشد , داشته باشیم ... امروزه ازجمله عواملی که ایجاد مراکز نوآوری را به یک نیاز تبدیل کرده است، به وجود آمدن تغییرات سریع در فناوریهای روز دنیا و مسائل اجتماعی جامعه امروز است.

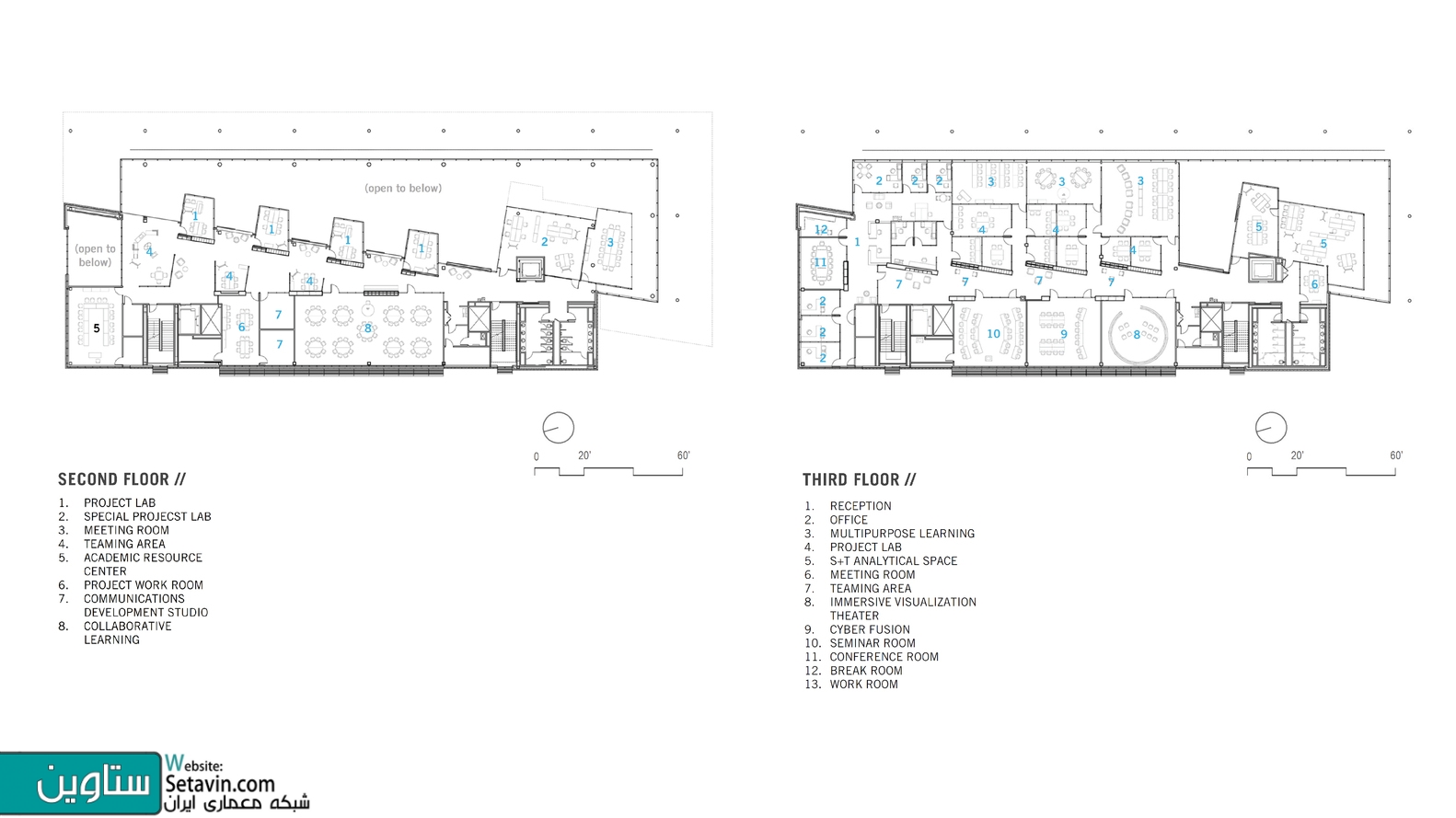
مرکز نوآوری Watt Family دانشگاه کلمسون نیز یک محیط منحصر به فرد را فراهم کرده تا در آن فن آوری های پیشرفته آموزشی باعث تقویت مشارکت دانش آموزان و مشارکت صنعت برای حل مشکلات دنیای واقعی شوند . این پروژه در یک سایت طولانی و باریک در کنار یک کالج با فرم چهارگوش واقع شده است .

ورودی ساختمان از دو مثلث کوتاه تشکیل شده که از هم فاصله دارند همچنین مسیر عابر پیاده از شمال و جنوب ساختمان دسترسی به فضای گالری را راحت تر کرده است ، تراس هم در طبقه بالا سمت شرقی ساختمان واقع شده است در فضای داخلی نیز نمایشگر رسانه ای مشبک 210 پایی به عنوان نشان ظاهری از نوآوری در داخل ساختمان عمل می کند . با ستاوین همراه باشید .

نمای ساختمان هم به گونه ای طراحی شده که علاوه براینکه دیدگاه خوبی از داخل به خارج از مرکز دارد به صورت سایبان برای فضای داخلی عمل میکند ،در حقیقت مرکز نوآوری خانواده وات دانش آموزان را قادر می سازد تا با استفاده از تکنولوژی قرن بیستم و تسهیل همکاری میان رشته ای در یک فضای الهام بخش ، ایده های خود را به واقعیت تبدیل کنند و به جامعه ارائه دهند.



























تذکر : استفاده از مطالب وب سایت ستاوین ( شبکه هنر و معماری ستاوین ) فقط با ذکر منبع و لینک بلامانع است . کلیه حقوق، محتوا و طراحی سایت متعلق به وب سایت ستاوین میباشد. در غیر این صورت مراتب از طریق مراجع قانونی پیگیری خواهد شد .
دوستان و همراهان عزیز ستاوین ( شبکه هنر و معماری ستاوین ) ، با نظرات و پیشنهادات سازنده خود ما را در ارائه هر چه بهتر مطالب و اهداف مان، که همانا ارتقا جایگاه و فرهنگ معماری می باشد ، یاری کنید . منتظر دیدگاه های شما عزیزان هستیم . . .
منبع: هنر و معماری ستاوین , Archdaily
ترجمه شده توسط تحریریه ستاوین - (علیرضا اورعی)