آپارتمان Richmond six-pack , اثر استودیو طراحی MUSK Architecture Studio , استرالیا

مجموعه: پروژه های معماری ، تاریخ انتشار: ۰۷ / ۱۱ / ۱۳۹۶ ، شناسه: ۲۶۰۷ ، بازدید:۲۶۶۰

مکان : Richmond VIC 3121, Australia
سال : 2017
مشاور طراحی معماری : MUSK Architecture Studio
آرشیتکت (معمار /معماران) : Hannes McNamara
همکاران طراحی : Hannes McNamara, Daniel Yusko, Chris Le Page, Nick Johnston
مجری : Imperial Builders
زیربنا پروژه : 500 مترمربع
عکس : Benjamin Hosking

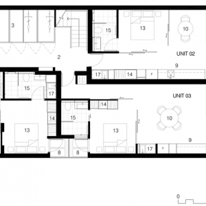
در این پست با ستاوین همراه باشید تا نگاهی به آپارتمان مسکونی خیابان Coppin , ملبورن , که به نام Richmond six-pack معروف است و دارای قدمت دهه 60 میلادی می باشد , داشته باشیم ...  عمدتا این سبک از خانه ها سه طبقه با نما آجری بودند . سایت این پروژه در مکانی جانمایی شده که اطراف آن را خانه های ویلایی و آپارتمان های مسکونی که بدور از هیاهو شهری می باشند , احاطه کرده است .  در بازسازی پلان این خانه 5 اتاق یکنفره و 1 اتاق دوخوابه طراحی شده و برای این منظور پارکینگ حذف شده و فضاهای داخلی در تعامل بیشتری با خیابان قرار گرفته اند .

 

آپارتمان Richmond six-pack , اثر استودیو طراحی MUSK Architecture Studio , استرالیا , Richmond six-pack , مسکونی , MUSK Architecture Studio , بازسازی , Coppin Street Apartments , طراحی مسکونی , MUSK Architecture , بازسازی مسکونی , MUSK , آپارتمان , Australia

 

هدف از طراحی این خانه مسکونی در دوطبقه طراحی سقف شیبدار با هدف دسترسی بیشتر به نور طبیعی روز بوده است , به دلیل وجود واحد مسکونی هم سطح در همسایگی پروژه ساکنین خانه از طریق پارکینگی که برای دوچرخه طراحی شده وارد فضای داخلی میشوند  . در ابتدای ورودی با لابی با قفسه های فلزی پوشیده شده مواجه میشوند , در فضای لابی نورپردازی ویژه ای طراحی و اجرا گردیده است .  

 

آپارتمان Richmond six-pack , اثر استودیو طراحی MUSK Architecture Studio , استرالیا , Richmond six-pack , مسکونی , MUSK Architecture Studio , بازسازی , Coppin Street Apartments , طراحی مسکونی , MUSK Architecture , بازسازی مسکونی , MUSK , آپارتمان , Australia

 

هنگامی که درون آپارتمان ها قرار می گیرد، پالت مواد از طریق استفاده از چوب، سنگ، کاشی و رنگ های پررنگ تعدیل می شود و فضاهای زندگی معاصر منحصر به فرد را برای هر واحد ایجاد می کند. برای خصوصی سازی فضاهای داخلی از درب های کشویی استفاده شده است  ساکنین مالکیت فضا را به دست بگیرند.

 

آپارتمان Richmond six-pack , اثر استودیو طراحی MUSK Architecture Studio , استرالیا , Richmond six-pack , مسکونی , MUSK Architecture Studio , بازسازی , Coppin Street Apartments , طراحی مسکونی , MUSK Architecture , بازسازی مسکونی , MUSK , آپارتمان , Australia

آپارتمان Richmond six-pack , اثر استودیو طراحی MUSK Architecture Studio , استرالیا , Richmond six-pack , مسکونی , MUSK Architecture Studio , بازسازی , Coppin Street Apartments , طراحی مسکونی , MUSK Architecture , بازسازی مسکونی , MUSK , آپارتمان , Australia

 

 

آپارتمان Richmond six-pack , اثر استودیو طراحی MUSK Architecture Studio , استرالیا , Richmond six-pack , مسکونی , MUSK Architecture Studio , بازسازی , Coppin Street Apartments , طراحی مسکونی , MUSK Architecture , بازسازی مسکونی , MUSK , آپارتمان , Australia

آپارتمان Richmond six-pack , اثر استودیو طراحی MUSK Architecture Studio , استرالیا , Richmond six-pack , مسکونی , MUSK Architecture Studio , بازسازی , Coppin Street Apartments , طراحی مسکونی , MUSK Architecture , بازسازی مسکونی , MUSK , آپارتمان , Australia

 

 

آپارتمان Richmond six-pack , اثر استودیو طراحی MUSK Architecture Studio , استرالیا , Richmond six-pack , مسکونی , MUSK Architecture Studio , بازسازی , Coppin Street Apartments , طراحی مسکونی , MUSK Architecture , بازسازی مسکونی , MUSK , آپارتمان , Australia

آپارتمان Richmond six-pack , اثر استودیو طراحی MUSK Architecture Studio , استرالیا , Richmond six-pack , مسکونی , MUSK Architecture Studio , بازسازی , Coppin Street Apartments , طراحی مسکونی , MUSK Architecture , بازسازی مسکونی , MUSK , آپارتمان , Australia

 

 

آپارتمان Richmond six-pack , اثر استودیو طراحی MUSK Architecture Studio , استرالیا , Richmond six-pack , مسکونی , MUSK Architecture Studio , بازسازی , Coppin Street Apartments , طراحی مسکونی , MUSK Architecture , بازسازی مسکونی , MUSK , آپارتمان , Australia

آپارتمان Richmond six-pack , اثر استودیو طراحی MUSK Architecture Studio , استرالیا , Richmond six-pack , مسکونی , MUSK Architecture Studio , بازسازی , Coppin Street Apartments , طراحی مسکونی , MUSK Architecture , بازسازی مسکونی , MUSK , آپارتمان , Australia

 

 

آپارتمان Richmond six-pack , اثر استودیو طراحی MUSK Architecture Studio , استرالیا , Richmond six-pack , مسکونی , MUSK Architecture Studio , بازسازی , Coppin Street Apartments , طراحی مسکونی , MUSK Architecture , بازسازی مسکونی , MUSK , آپارتمان , Australia

آپارتمان Richmond six-pack , اثر استودیو طراحی MUSK Architecture Studio , استرالیا , Richmond six-pack , مسکونی , MUSK Architecture Studio , بازسازی , Coppin Street Apartments , طراحی مسکونی , MUSK Architecture , بازسازی مسکونی , MUSK , آپارتمان , Australia

 

 

آپارتمان Richmond six-pack , اثر استودیو طراحی MUSK Architecture Studio , استرالیا , Richmond six-pack , مسکونی , MUSK Architecture Studio , بازسازی , Coppin Street Apartments , طراحی مسکونی , MUSK Architecture , بازسازی مسکونی , MUSK , آپارتمان , Australia

آپارتمان Richmond six-pack , اثر استودیو طراحی MUSK Architecture Studio , استرالیا , Richmond six-pack , مسکونی , MUSK Architecture Studio , بازسازی , Coppin Street Apartments , طراحی مسکونی , MUSK Architecture , بازسازی مسکونی , MUSK , آپارتمان , Australia

 

 

آپارتمان Richmond six-pack , اثر استودیو طراحی MUSK Architecture Studio , استرالیا , Richmond six-pack , مسکونی , MUSK Architecture Studio , بازسازی , Coppin Street Apartments , طراحی مسکونی , MUSK Architecture , بازسازی مسکونی , MUSK , آپارتمان , Australia

آپارتمان Richmond six-pack , اثر استودیو طراحی MUSK Architecture Studio , استرالیا , Richmond six-pack , مسکونی , MUSK Architecture Studio , بازسازی , Coppin Street Apartments , طراحی مسکونی , MUSK Architecture , بازسازی مسکونی , MUSK , آپارتمان , Australia

 

 

آپارتمان Richmond six-pack , اثر استودیو طراحی MUSK Architecture Studio , استرالیا , Richmond six-pack , مسکونی , MUSK Architecture Studio , بازسازی , Coppin Street Apartments , طراحی مسکونی , MUSK Architecture , بازسازی مسکونی , MUSK , آپارتمان , Australia

آپارتمان Richmond six-pack , اثر استودیو طراحی MUSK Architecture Studio , استرالیا , Richmond six-pack , مسکونی , MUSK Architecture Studio , بازسازی , Coppin Street Apartments , طراحی مسکونی , MUSK Architecture , بازسازی مسکونی , MUSK , آپارتمان , Australia

 

 

آپارتمان Richmond six-pack , اثر استودیو طراحی MUSK Architecture Studio , استرالیا , Richmond six-pack , مسکونی , MUSK Architecture Studio , بازسازی , Coppin Street Apartments , طراحی مسکونی , MUSK Architecture , بازسازی مسکونی , MUSK , آپارتمان , Australia

آپارتمان Richmond six-pack , اثر استودیو طراحی MUSK Architecture Studio , استرالیا , Richmond six-pack , مسکونی , MUSK Architecture Studio , بازسازی , Coppin Street Apartments , طراحی مسکونی , MUSK Architecture , بازسازی مسکونی , MUSK , آپارتمان , Australia

 

 

آپارتمان Richmond six-pack , اثر استودیو طراحی MUSK Architecture Studio , استرالیا , Richmond six-pack , مسکونی , MUSK Architecture Studio , بازسازی , Coppin Street Apartments , طراحی مسکونی , MUSK Architecture , بازسازی مسکونی , MUSK , آپارتمان , Australia

آپارتمان Richmond six-pack , اثر استودیو طراحی MUSK Architecture Studio , استرالیا , Richmond six-pack , مسکونی , MUSK Architecture Studio , بازسازی , Coppin Street Apartments , طراحی مسکونی , MUSK Architecture , بازسازی مسکونی , MUSK , آپارتمان , Australia

 

تذکر : استفاده از مطالب وب سایت ستاوین ( شبکه هنر و معماری ستاوین ) فقط با ذکر منبع و لینک بلامانع است . کلیه حقوق، محتوا و طراحی سایت متعلق به وب سایت ستاوین می‌باشد. در غیر این صورت مراتب از طریق مراجع قانونی پیگیری خواهد شد .

دوستان و همراهان عزیز ستاوین ( شبکه هنر و معماری ستاوین ) ، با نظرات و پیشنهادات سازنده خود ما را در ارائه هر چه بهتر مطالب و اهداف مان، که همانا ارتقا جایگاه و فرهنگ معماری می باشد ، یاری کنید . منتظر دیدگاه های شما عزیزان هستیم . . .

منبع: هنر و معماری ستاوین

آیا تمایل دارید نام ، برند و محصولات شما برای مخاطبین ما نمایش داده شود؟ ( اینجا کلیک کنید )

ترجمه شده توسط تحریریه ستاوین - (علیرضا اورعی)

تبلیغات

شبکه هنر و معماری ستاوین

استفاده از محتوای سایت با ذکر منبع و درج لینک بلامانع است . کلیه حقوق مادی و معنوی , محتوا و طراحی متعلق به شبکه هنر و معماری ستاوین می باشد .