استودیو llabb ،با مجموعه ای از معماران جوان ایتالیایی طراحی داخلی آپارتمانی کوچک در Liguria ایتالیا را به عهده داشته اند.راه حل پیشنهادی آنها برای داشتن فضایی دوخوابه استفاده از یونیتهای دیواری طراحی شده و سفارشی ساز بود.

این آپارتمان تنها 35 مترمربع مساحت دارد.یونیتهای دیواری از جنس تخته سه لای لمینیت شده بوده و در طول یکی از دیوارهای آپارتمان ادامه پیدا کرده و شامل فضاهای خواب و کمدها می باشد.

طراحی دیوار شامل دو بخش پایینی و فوقانی است .در بخش پایینی دو درب وجود دارد که امکان دسترسی به خواب مستر (اصلی) ایجاد می کند.قفسه های تخته سه لا در انتهای تختخواب ،به عنوان یک کمد باز عمل می کنند.

درانتهای دیوار چند پله کوچک در کنار طبقات توکار دیده می شود.

این پله ها ما را به خواب دوم یا خواب مهمان با پنجره هایی که به فضای نشیمن باز می شوند،هدایت می کند.

در این تصویر آشپزخانه کوچک و نهارخوری این آپارتمان را مشاهده می کنید.

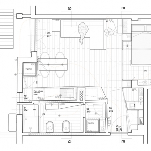
نگاهی به کلیت آپارتمان:




تذکر : استفاده از مطالب وب سایت ستاوین ( شبکه هنر و معماری ستاوین ) فقط با ذکر منبع و لینک بلامانع است . کلیه حقوق، محتوا و طراحی سایت متعلق به وب سایت ستاوین میباشد. در غیر این صورت مراتب از طریق مراجع قانونی پیگیری خواهد شد .
دوستان و همراهان عزیز ستاوین ( شبکه هنر و معماری ستاوین ) ، با نظرات و پیشنهادات سازنده خود ما را در ارائه هر چه بهتر مطالب و اهداف مان، که همانا ارتقا جایگاه و فرهنگ معماری می باشد ، یاری کنید . منتظر دیدگاه های شما عزیزان هستیم . . .
منبع: contemporist و تحریریه ستاوین
ترجمه شده توسط تحریریه ستاوین - (الهه تقی زاده)