در این پست با ستاوین همراه باشید تا نگاهی به خانه مسکونی Saint Peter , که با استفاده از تکنولوژی های پیشرفته و الهام از صنایع دستی محلی مکزیک توسط معماران Estudio Tecalli, Proyecto Cafeína طراحی شده است , داشته باشیم ... به دلیل نزدیک بودن محل پروژه به تولیدکنندگان آجر محلی در منطقه San Pedro Cholula برای طراحی نما از آجر قرمز استفاده شده است.

در حقیقت آجر متریال خوبی از نظر ﺷﯿﻮه ﻫﺎی ﻃﺮاﺣﯽ ﻣﺪوﻻر به شمار میرود و برای معماران نیز کاربردهای زیادی دارد برای بهره مندی فضاهای داخلی این پروژه از نور طبیعی روز پنجره ها و روزنه هایی که از طریق چیدمان خاص آجر به وجود آمده اند و نور را از خود عبور میدهند استفاده شده است .

{video}2692{video}
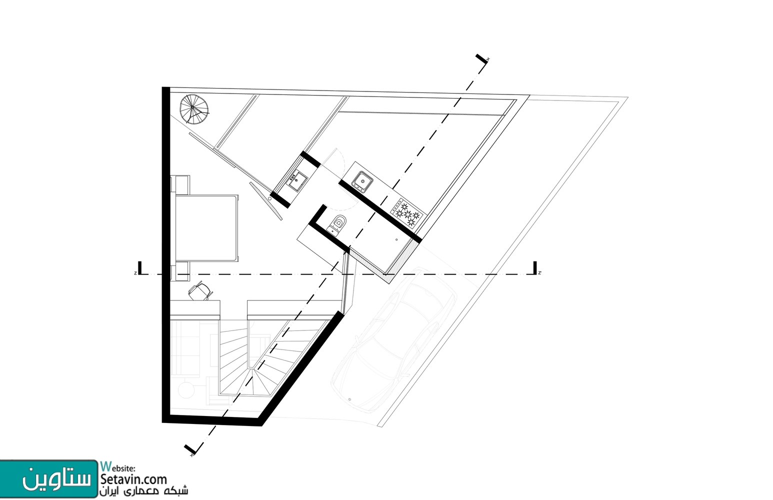
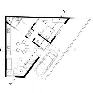
همچنین برای فضای داخلی یک سالن مرکزی در نظر گرفته شده با اتاق نشیمن، اتاق غذاخوری، آشپزخانه و اتاق خواب اصلی در طبقه دوم علاوه براین مناطق خدماتی اتاق مهمان و سقف باغ به عنوان یک هشتی در طبقه بالا واقع شده اند. و همه این فضاها در اطراف یک حیاط داخلی با هدف بهره مندی از نور و تهویه مناسب واقع شده اند.
























تذکر : استفاده از مطالب وب سایت ستاوین ( شبکه هنر و معماری ستاوین ) فقط با ذکر منبع و لینک بلامانع است . کلیه حقوق، محتوا و طراحی سایت متعلق به وب سایت ستاوین میباشد. در غیر این صورت مراتب از طریق مراجع قانونی پیگیری خواهد شد .
دوستان و همراهان عزیز ستاوین ( شبکه هنر و معماری ستاوین ) ، با نظرات و پیشنهادات سازنده خود ما را در ارائه هر چه بهتر مطالب و اهداف مان، که همانا ارتقا جایگاه و فرهنگ معماری می باشد ، یاری کنید . منتظر دیدگاه های شما عزیزان هستیم . . .
منبع: هنر و معماری ستاوین , archdaily
ترجمه شده توسط تحریریه ستاوین - (علیرضا اورعی)