در این پست با ستاوین همراه باشید تا نگاه به فرودگاه جدید Istanbul Yeni Havalimanı , فرودگاهی بدون آلاینده و دوست دار محیط زیست , در منطقه آرناوت کوی ( اروپایی ترکیه , که در زمان تهیه این پست به عنوان بزرگترین فرودگاه جهان می باشد داشته باشیم ... شرکت معماری گریمشاو (Grimshaw) که پیش از این طراحی پروژهای بسیار بزرگی را در کارنامه خود دارد، طراحی این فرودگاه را عهدهدار شدهاست. ترمینال این فرودگاه مساحتی بالغ بر یک میلیون متر مربع خواهد داشت. فرودگاه جدید استانبول , با القاب مختلفی شناخته میشود , گذرگاه اروپا و آسیا، دروازه بینالملل، جواهر سلطنتی ترکیه و … . شگفتانگیز و وصفنشدنی ست. بهقدری با شکوه و زیباست که حتی حیرت مهندسان بزرگ جهان را هم برانگیخته است

ابن فرودگاه برنامهریزی شدهاست که به عنوان بزرگترین فرودگاه در جهان با ۱۵۰ میلیون ظرفیت مسافر سالانه در اکتبر ۲۰۱۸ شروع به کار کند . در مرحله توسعه آینده این فرودگاه ارتقا ظرفیت برای رسیدگی به ۲۰۰ میلیون سالانه مسافر نظر گرفته شدهاست. فرودگاه برنامهریزی شده به دلیل کمبود ظرفیت موجود در فرودگاههای فعلی استانبول ایجاد میشود. این سومین فرودگاه بینالمللی در استانبول پس از فرودگاه آتاترک وفرودگاه صبیحه گوکچن خواهد بود. فرودگاه آتاترک بسته خواهد شد؛ و یاتا کد IST منتقل خواهد شد به فرودگاه جدید.

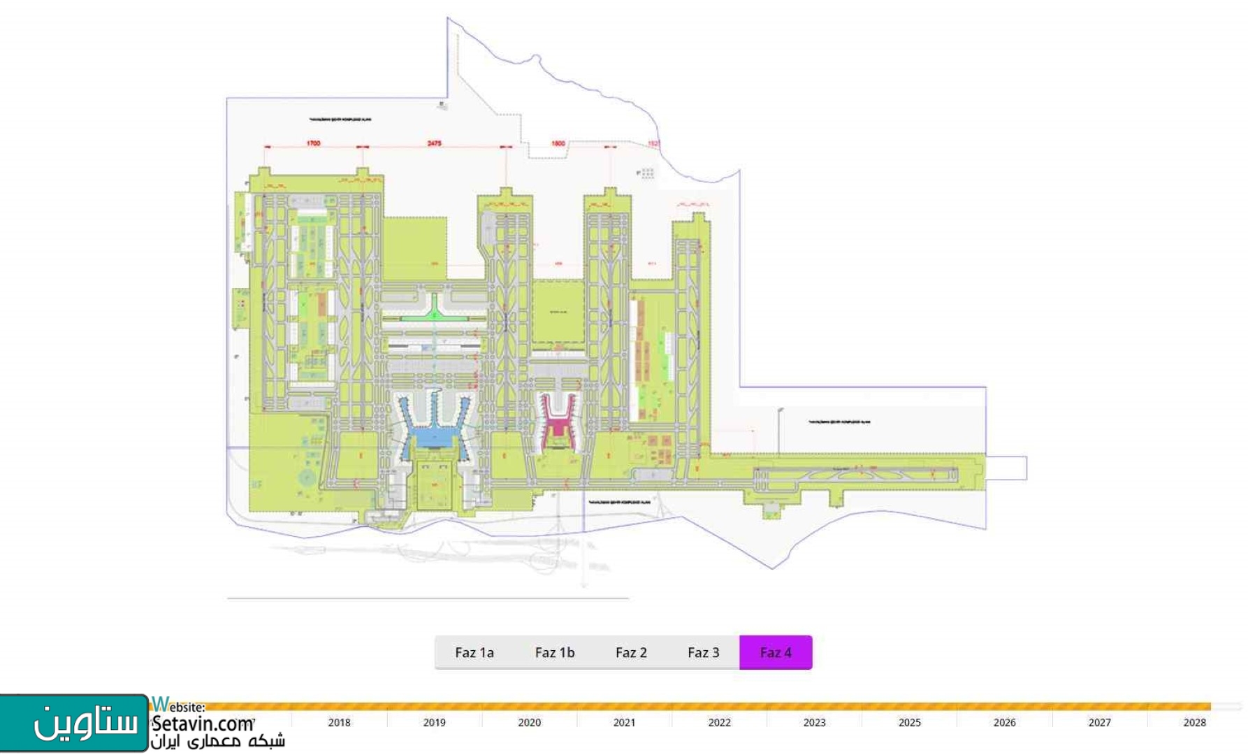
سومین فرودگاه شهر استانبول که قرار است تبدیل به بزرگترین فرودگاه جهان تا سال 2028 شود ، فاز اول آن امسال ( سال 2018 ) به بهره برداری رسید . این فرودگاه استانبول با ظرفیت جا به جایی سالانه بیش از ۱۵۰ میلیون مسافر تبدیل به بزرگ ترین فرودگاه دنیا می شود. بودجه پیش بینی شده این پروژه ۱۰ میلیارد و ۲۴۷ میلیون یورو برآورد شده است.
در این پروژه بزرگ استانبول در حال حاضر حدود ۹۳۶۶ نفر؛ شامل ۸۹۸ کارمند و ۸۴۶۸ کارگر مشغول به کار اند. این فرودگاه دارای دوبخش مستقل پروازهای ورودی به فرودگاه و خروجی از فرودگاه می باشد و تمهیدات جدیدی به منظور رفاه مسافرین این فرودگاه در نظرگرفته شده است. مجری این طرح اعلام کرده که، معماری استفاده شده در این فرودگاه آمیزه ای از هنر اسلامی و هنر ترک خواهد شد. فرودگاه دارای شش باند مستقل از هم است. از ویژگی های مهم آن، فرودگاهی بدون آلاینده و دوست دار محیط زیست بودنش است. از نظر خدمات رسانی به مسافران، نزدیک به ۴۰۰ برند ترکیه ای و خارجی به مسافران، خدماتی در قالب رستوران، کافی شاپ و … را ارائه خواهند کرد.

در داخل ساختمان فرودگاه یک فروشگاه بسیار بزرگ به منظور خدمات رسانی به مسافران و استقبال کنندگان آن ها تعبیه شده است که یکی از مناطق عمومی این فرودگاه نیز محسوب می شود و انواع وسیله نقلیه مورد نیاز مسافران در این بخش از فرودگاه موجود بوده و آماده خدمات رسانی خواهد بود . پارکینگ هوشمند این فرودگاه دارای گنجایش ۲۵ هزار وسیله نقلیه است که بزرگ ترین پارکینگ با این میزان گنجایش در اروپا نیز خواهد بود. سیستم حمل و نقل سریع السیر نیز در این فرودگاه وجود دارد و ایستگاه های مترو در داخل فرودگاه قرار خواهند گرفت.
شهر فرودگاهی وسیعی در قسمت جلویی فرودگاه که بخش جنوبی آن محسوب می شود ، قرار دارد که شامل ساختمان های اداری مستقر در فرودگاه، مجموعه هتل ها، آژانس های مسافرتی، مسجد، مراکز مناسب برگزاری کنفرانس ها و برپایی نمایشگاه ها و مراکز درمانی خواهد بود. ساختمان اصلی ترمینال این فرودگاه به وسعت ۱۳ هکتار، بزرگ ترین ساختمان مسقف جهان خواهد بود و در مرحله اول بیش از ۹۰ میلیون مسافر در آن تردد خواهند کرد. با ستاوین همراه باشید ... این تعداد تا پایان سال ۲۰۲۸ به ۱۵۰ میلیون رسیده و هواپیماهای غول پیکری که قادر به نشستن در هر فرودگاهی نیستند، می توانند در باند آن فرود آیند. در این فرودگاه ۱۵۰ شرکت هواپیمایی جهت برقراری روزانه ۳۵۰۰ پرواز به ۴۰۰ نقطه دنیا فعالیت خواهند کرد. به گفته مجری طرح، هدف اصلی این فرودگاه به ارمغان آوردن لحظات ناب و به یاد ماندنی در سفر برای مسافران خود است.
شرکت «ایگا» مجری این طرح در ازای ۲۵ سال حق مالکیت آن، مبلغی به ارزش ۲۶.۲ میلیارد یورو به همراه مالیات بر ارزش افزوده به دولت ترکیه پرداخت خواهد کرد. بر این اساس این فرودگاه از لحاظ ظرفیت تعداد مسافر و حمل بار و ایجاد ارزش افزوده بزرگ ترین مرکز حمل و نقل جهان به حساب خواهد آمد

ساخت فرودگاه قرار است در چند مرحله باشد.
یک ترمینال اصلی با مجموع ظرفیت مسافر از ۹۰ میلیون با مساحت ۱٬۳۰۰٬۰۰۰ مترمربع (۱۴٬۰۰۰٬۰۰۰ فوتمربع)
ساختمان دوم ترمینال با مساحت ۱۷۰٬۰۰۰ مترمربع (۱٬۸۰۰٬۰۰۰ فوتمربع)
۸۸ هواپیما جت پل
پارکینگ داخلی با ظرفیت ۱۲٬۰۰۰ ماشین
۲ باند مستقل فرودگاه
۸ راه موازی تاکسیوی taxiways
حدود ۴٬۰۰۰٬۰۰۰ مترمربع (۴۳٬۰۰۰٬۰۰۰ فوتمربع) از صحن فضا
۳ ویژگیهای بلوک
۱ برج کنترل ترافیک هوایی
سالن VIP
باربری و تر مینالهای حمل و نقل هوایی عمومی
خدمات دیگر از جمله بیمارستانها، نماز، اتاق، مراکز کنوانسیون هتلها و غیره.
۱ باند
۳ موازی taxiways
ترمینال با ظرفیت سالانه ۳۰ میلیون مسافر و یک منطقه ۵۰۰٬۰۰۰ مترمربع (۵٬۴۰۰٬۰۰۰ فوتمربع)
۱ باند
۱ موازی فرودگاه
اضافی صحن منطقه
یک ترمینال با ظرفیت ۳۰ میلیون مسافر و یک منطقه از ۳۴۰٬۰۰۰ مترمربع (۳٬۷۰۰٬۰۰۰ فوتمربع)
۱ باند
۶ باند فرودگاه
16 taxiways
۱۵۰ میلیون سالانه ظرفیت مسافر – قابل ارتقا تا ۲۰۰ میلیون[۱۰]
۱٬۵۰۰٬۰۰۰ مترمربع (۱۶٬۰۰۰٬۰۰۰ فوتمربع) منطقه داخلی
۱۶۵ هواپیما جت پل
۴ ساختمان ترمینال با راهآهن دسترسی بین پایانههای
۳ ویژگیهای بلوک
۱ کنترل ترافیک هوایی در برج
۸ رمپ کنترل برج
یک ۶٬۵۰۰٬۰۰۰ مترمربع (۷۰٬۰۰۰٬۰۰۰ فوتمربع) صحن با ۵۰۰ ظرفیت پارکینگ هواپیما
VIP سالن
باربری و پایانههای حمل و نقل هوایی عمومی
دولت در کاخ
محیط داخلی و فضای باز پارکینگ با ظرفیت حدود. ۷۰٬۰۰۰ اتومبیل
حمل و نقل هوایی مرکز پزشکی
نجات هواپیما و آتشنشانی ایستگاه
گاراژ ساختمان
هتلها
مراکز کنوانسیون
قدرت گیاهان
تصفیه آب و فاضلاب تأسیسات

این فرودگاه در ۲۹ اکتبر ۲۰۱۸ توسط رجب طیب اردوغان، رئیس جمهوری ترکیه افتتاح شد.
به گزارش ایسنا ، به نقل از خبرگزاری رویترز، مقامات ترکیه بر این باورند که این فرودگاه بزرگترین فرودگاه جهان خواهد بود. البته در ماه ژانویه به طور کامل عملیاتی خواهد شد.
این فرودگاه سالانه ۹۰ میلیون مسافر جابجا خواهد کرد. در ۳۱ اکتبر جاری پروازهای داخلی به آنکارا، ازمیر و آنتالیا و در اول و هشتم نوامبر پروازهایی از ترکیه به سمت قبرس ترکنشین و جمهوری آذربایجان انجام خواهند شد.
بعد از راهاندازی فرودگاه پیشبینی میشود شرکت فعال در فرودگاه ۱.۱ میلیارد یورو در سال به مدت ۲۵ سال به دولت پرداخت خواهد کرد.
اردوغان در مراسم افتتاحیه اعلام کرد: با افتتاح این فرودگاه استانبول نقش ترکیه در اقتصاد جهان افزایش خواهد یافت.
رئیسجمهوری ترکیه افزود، فرودگاه جدید استانبول خدمت بزرگی از جانب کشورش به منطقه و جهان خواهد بود و تمامی بخشهای فرودگاه همزمان با سال ۲۰۲۳ آماده بهرهبرداری خواهند بود.
وی نام این فرودگاه را "فرودگاه استانبول" اعلام کرد که در صورت تکمیل تمام مراحلش بزرگترین فرودگاه در جهان خواهد بود.
اردوغان تاکید کرد: فرودگاه استانبول با معماری، بنا، نوع بهرهبرداری و هزینه صرف شده مایه افتخار ترکیه است و طرحی نمونه در سطح جهان محسوب میشود و هر بخش براساس معیارهایی فرای معیارهای بینالمللی و آخرین تکنولوژی روز دنیا خواهد بود.
وی ادامه داد: من به تمام دوستانمان در منطقه و جهان میگویم بیایید آیندهای مطمئن و امن برای ملتهایمان بسازیم. رویکرد ما برای رشد طی ۱۰ ساله آینده ادامه خواهد داشت.
رئیسجمهوری ترکیه تصریح کرد: با توجه به اینکه فرودگاه استانبول از امروز مهمترین نقطه عبوری است باید حریم هوایی و فضایی اروپا بازسازی شده و مسیرهای پروازها بین قارهها تا حد زیادی تغییر کنند.
اردوغان افزود: گنجایش فرودگاه برای مرحله اول ۹۰ میلیون مسافر در سال است در حالی با تکمیل تمامی مراحل پروژه به ۱۵۰ تن میرسد و میتواند در صورت نیاز پاسخگوی ۲۰۰ میلیون مسافر هم باشد.
اردوغان تاکید کرد: ۱۲۰ هزار تن به منظور خدمت رسانی در فرودگاه مشغول به کار خواهند شد و این فرودگاه یک پروژه دوستدار محیط زیست است. راههای مواصلاتی از فرودگاه به مرکز شهر و برعکس به طور زمینی، دریایی و از طریق ریل راه آهن میسر خواهد بود.
اردوغان تصریح کرد: فرودگاه با ۶۰ کشور مرتبط میشود.
این فرودگاه در حالی آماده شده است که شرایط کار در آن براساس استانداردهای ایمن نبوده و در ماه فوریه گذشته وزارت کار ترکیه اعلام کرد ۲۷ کارگر از زمان آغاز تاسیس آن در سال ۲۰۱۵ کشته شدند و ماه گذشته میلادی پلیس اعلام کرد که صدها نفر را در اعتراضات کارگران بازداشت کرده است.
تا پایان امسال فرودگاه آتاتورک استانبول فعالیتهای خود را ادامه خواهد داد.
قرار است بعد از پایان عملیاتی شدن فرودگاه استانبول، فرودگاه آتاتورک به یک پارک تبدیل شود.

فرودگاه جدید استانبول به دلیل اینکه مرکز دادههای وی با افزونگی زیرساخت الکتریکی 2N و سیستم خنک کننده آن با دیپ کول N+1 طراحی شده، از سوی مرکز «Uptime Institute» گواهی نامه «Design» دریافت کرده است . این فرودگاه همچنین به خاطر طراحی برج کنترل ترافیک هوایی و ساختمان فنی خود نخستین جایزه خود را در مسابقه سال 2015 معماری بین الملی شیکاگو که توسط موزه معماری و طراحی شیکاگو با همکاری مرکز اروپایی معماری، هنر، طراحی و مطالعات شهری برگزار شد، دریافت کرد.
فرودگاه جدید به خاطر اینکه در طراحی برج مراقبت آن از یک گل لاله که یکی از نمادهای فرهنگ ترکی- اسلامی و سنتی استانبول محسوب می شود، الهام گرفته شده، نیز جایزه دریافت کرده است. پس از برج مراقبت، طراحان ساختمان ترمینال فرودگاه جدید استانبول نیز شایسته دریافت جایزهای بین المللی شدند. ترمینال فرودگاه که با همکاری شرکت های اسکات براونرینگ انگلیس، گریمشاو، نردیک و هپتیک طراحی شده است، جایزه برترین پروژه «جشنواره معماری جهان» (WAF) در بخش «پروژه-زیرساختار» آینده را دریافت کرد. با ستاوین همراه باشید ...
سقف ترمینال مرکزی این فرودگاه که با الگوبرداردی از سبک معماری معمار سنان در دوره عثمانی احداث شده است ، با داشتن مساحتی به اندازه یک میلیون و 300 متر مربع بزرگترین ترمینال فرودگاهی زیرسقف جهان خواهد شد . شرکتی که مسئولیت ساخت این فرودگاه را بر عهده دارد، همچنین نخستین شرکتی شد که گواهی نامه سیستم مدیریت زیست محیطی (ISO 14001 : 2015) را دریافت کرد.

فعالیتهای عمرانی دو خط متروی گایرت تپه و هالکلی برای دسترسی آسانتر به فرودگاه جدید استانبول ادامه دارد و مسیر گایرت تپه- فرودگاه جدید در اولویت بهره برداری است.
فرودگاه جدید استانبول با هدف ارتقای آن به عنوان «مهمترین فرودگاه جهان» قرارداد همکاری با اتحادیه تاکسیرانی خط 34 استانبول امضا کرد که در راستای این هدف استانداردهای متعدد خدمات رسانی به آن تعیین و اجرایی شد.

زیر ساخت شبکه ارتباطی فرودگاه جدید استانبول با همکاری شرکتهای ودافون و ترکسل تاسیس شد. به این ترتیب در این فرودگاه شبکه ارتباطی تلفن همراه و زیرساخت سایبری به صورت مشترک مورد استفاده قرار خواهد گرفت.
همچنین به منظور ارائه زیرساختها و خدمات نرم افزاری سیستم فناوری اطلاعات در فرودگاه جدید استانبول، شرکت IGA Bilişim توسط شرکت عملیاتی فرودگاه تاسیس شد. این شرکت از سیستم های ملی که توسط مهندسان داخلی طراحی شده استفاده خواهد کرد. این فرودگاه که قرار است به عنوان پایگاه فناوری عمل کرده و در لیست هوشمندترین فرودگاههای جهان قرار بگیرد، نقش موثری در تسریع روند توسعه فناوری ترکیه ایفا کند.

در فرودگاه جدید استانبول که از بالاترین سطح امنیتی و جدیدترین فناوری ها برخوردار خواهد بود، برای اولین بار از سامانه رادار زمینی استفاده خواهد شد. در مجموع 9 هزار دوربین هوشمند و 8 دوربین حسگر حرکت در پایانههای مسافربری و پارکینگها به کار رفته است. با ستاوین همراه باشید ...
زیرساختهای مربوط سامانههای هوشمند تشخیص پلاک خودرو و تشخیص چهره یکی دیگر از امکانات پیشرفته فرودگاه جدید استانبول است. گفتنی است تا پایان سال هزینه سامانه حمل و نقل عمومی از فرودگاه جدید استانبول تا مرکز شهر شامل 50 درصد تخفیف شده و پارکینگ فرودگاه نیز به صورت رایگان در اختیار عموم مردم قرار خواهد گرفت.
















با کلیک بر روی لینک روبرو از تصاویر 360 درجه این فرودگاه استفاده نمایید ... pigairport.com
منبع :
ویکی پدیا fa.wikipedia.org
آژانس نسیم شب پرواز nsptours.com
تابناک tabnak.ir
خبرگزاری آناتولی www.aa.com.tr
تذکر : استفاده از مطالب وب سایت ستاوین ( شبکه هنر و معماری ستاوین ) فقط با ذکر منبع و لینک بلامانع است . کلیه حقوق، محتوا و طراحی سایت متعلق به وب سایت ستاوین میباشد. در غیر این صورت مراتب از طریق مراجع قانونی پیگیری خواهد شد .
دوستان و همراهان عزیز ستاوین ( شبکه هنر و معماری ستاوین ) ، با نظرات و پیشنهادات سازنده خود ما را در ارائه هر چه بهتر مطالب و اهداف مان، که همانا ارتقا جایگاه و فرهنگ معماری می باشد ، یاری کنید . منتظر دیدگاه های شما عزیزان هستیم . . .
منبع: شبکه هنر و معماری ستاوین
گردآوری شده توسط تحریریه ستاوین