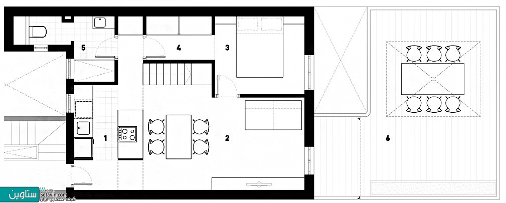
طراحی داخلی یک آپارتمان زمانی که فضای بسیار کمی برای کار کردن دارید ،قطعا یک چالش بزرگ است. همه ما میدانیم که یک خانه باید تا جایی که ممکن است برای ساکنان آن راحت باشد،اما وقتی تنها چند متر مربع برای کار کردن داشته باشیم ،حل کردن عملکردهای اصلی پلان و پیدا کردن یک چیدمان کارآمد، آسان نیست.

در مطلب امروز ،مجموعه ای از پلان آپارتمانهایی کوچک با مساحت بین 20 تا 50 مترمربع را برایتان درنظر گرفته ایم.با ما همراه باشید...




















































تذکر : استفاده از مطالب وب سایت ستاوین ( شبکه هنر و معماری ستاوین ) فقط با ذکر منبع و لینک بلامانع است . کلیه حقوق، محتوا و طراحی سایت متعلق به وب سایت ستاوین میباشد. در غیر این صورت مراتب از طریق مراجع قانونی پیگیری خواهد شد .
دوستان و همراهان عزیز ستاوین ( شبکه هنر و معماری ستاوین ) ، با نظرات و پیشنهادات سازنده خود ما را در ارائه هر چه بهتر مطالب و اهداف مان، که همانا ارتقا جایگاه و فرهنگ معماری می باشد ، یاری کنید . منتظر دیدگاه های شما عزیزان هستیم . . .
منبع: archdaily
ترجمه شده توسط تحریریه ستاوین - (الهه تقی زاده)