در این پست با شبکه هنر و معماری ستاوین همراه باشید تا نگاهی به ساختمان مسکونی اِدِن ( EDEN Residential Building ) , در مشهد با زیربنای 2800 مترمربع داشته باشیم ... به گفته طراح پروژه , از دغدغه های امروز معماری علاوه بر مسائل عدیده ذیربط ، مباحث فرهنگی است که تیم طراحی این پروژه سعی بر این داشت تا فضاهایی در خانه شکل گیرد که معضل پرده های چندلایه داخلی را که مانع بهره بردن از چشم اندازهای پروژه است را برطرف سازد.

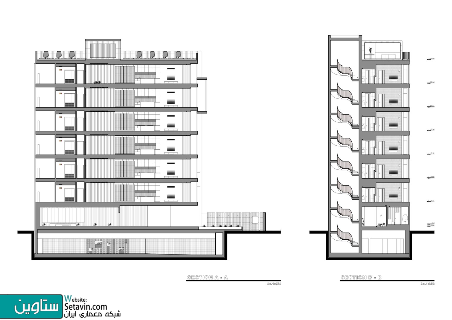
در این بنا، تراسها و بخشهایی از فضای نشیمن و حتی تعداد شش حمام شیشه ای در 6 طبقه ، در نمای اصلی قرار گرفته که با بازی نور و سایه و پر و خالی تیغه های عمودی طرح بدون هیچ گونه اشراف از سمت واحدهای مشرف به بنا ، منظر کوهستانهای جنوبی شهر مشهد را به درون خانه می آورد. این تعامل بصری در دیواره معبر اصلی نیز با یک محور سبز که از پیاده رو تا انتهای پروژه در فضای باز، نیمه باز و بسته تعاریف مختلفی می گیرد نیز برقرار می باشد.

در انتخاب مصالح نما به جهت کاهش جدی هزینه، از برشهای ریز سنگ در قواره آجرهای سنتی استفاده شده است که قرار گرفتن این مصالح در کنار چوب، صمیمیت بیشتری به پروژه بخشیده است.
چالش دیگر پروژه رعایت ضابطه شهرسازی 45 درجه با همسایه های جانبی بوده که توده های در هم تنیده در این حریم فرضی را شکل داده است.














تذکر : استفاده از مطالب وب سایت ستاوین ( شبکه هنر و معماری ستاوین ) فقط با ذکر منبع و لینک بلامانع است . کلیه حقوق، محتوا و طراحی سایت متعلق به وب سایت ستاوین میباشد. در غیر این صورت مراتب از طریق مراجع قانونی پیگیری خواهد شد .
دوستان و همراهان عزیز ستاوین ( شبکه هنر و معماری ستاوین ) ، با نظرات و پیشنهادات سازنده خود ما را در ارائه هر چه بهتر مطالب و اهداف مان، که همانا ارتقا جایگاه و فرهنگ معماری می باشد ، یاری کنید . منتظر دیدگاه های شما عزیزان هستیم . . .
منبع: شبکه هنر و معماری ستاوین
گردآوری شده توسط تحریریه ستاوین