در این پست با شبکه هنر و معماری ستاوین همراه باشید تا نگاهی به ساختمان مسکونی سالاریه , اثر دفتر معماری هرم , که یک سکونتگاه جمعی و از نتایج غیرقابل اجتناب رشد و گسترش در شهرهای امروزی می باشد , داشته باشیم ...
ساختمان هایی که در بافت و بدنه شهری و با توجه به ضوابط و قوانین شهرداری شـکل می گیرند، چالش های مختلـــف و محدودیــتهای فراوانی دارند. این پروژه ها معمولاً دارای نمای یکنواخت، دیکته شده و پلانهای مشخصی می باشند که این موضوع مانع ایجاد هرگونه پویایی و کیفیت فضایی واجد ارزش در داخل و خارج پروژه شده و همچنین ارتباطی بین داخل و بیرون بنا شکل نمی گیرد. با در نظرگرفتن قوانین، ایجاد پروژه با کیفیت زیستی قابل قبول در این بافت، نیازمند تغییر نگرش در برخورد با ضوابط شهرداری است. در این پروژه به چالش هایی که ضوابط و محدودیتهای شهری ایجاد می کنند، به عنوان یک پتانسیل بالقوه نگاه شده است. با شبکه هنر و معماری ستاوین همراه باشید ...
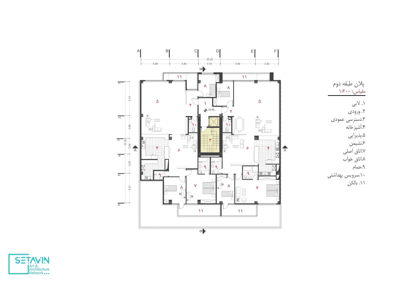
ساختمان مسکونی سالاریه که در شهر قم و از تجمع دو زمین در کنارِ هم، شکل گرفته است. با توجه به قوانین و ضوابط شهرداری قسمت مرکزی ساختمان مجـاز به استفاده از کنسـولی به عمق 120 سانتیمتر و حداقل فاصله مجاز کنسول از همسایهها از یک طرف 2 متر و از طرف دیگر 4 متر بود.

پروژه در “شهر قم” واقع شده است. با توجه به اهمیت مذهبی و جغرافیایی، رشد و توسعه در این شهر با نواسانات زیادی روبروست. شکل گیری سکونتگاه های جمعی یکی از نتایج غیرقابل اجتناب رشد و گسترش در این شهر است.
به موازات، در قم اعتقادات مذهبی نقش بسیار مهمی در تصمیم گیری های شهری و روابط همسایگی ایفا میکند. مسئله “محرمیت” و “دید نداشتن از خارج به داخل بنا” بسیار مورد توجه مردم بوده و جزو چالشهای اصلی طراحی است. با شبکه هنر و معماری ستاوین همراه باشید ...
در این پروژه سعی بر آن شد تا از زاویه ای دیگر به این مساله نگاه شود، تا به جای این که مردم از داخل خانه پرده های ضخیم و چند لایه را برای جلوگیری از دید بیرون نصب کنند و ورود نور به خانه را محدود کنند، با ایجاد طرحی علاوه بر پاسخگویی به ایجاد محرمیت برای خانه و عدم دید مستقیم از بیرون به داخل، حداکثر ورود نور به داخل را نیز تامین کند.

با توجه به اینکه پروژه از تجمع دو زمین کنار هم شکل گرفته، دارای مقیاس بزرگتر و تعداد طبقات بیشتری نسبت به بافت مجاور و همسایگی های اطراف خود بود. عرض زیاد ساختمان، تعدد واحدهای مسکونی و تعــــداد زیاد بازشوها در جدار بیرونی با توجه به نیــاز فضــاهای داخلی از دیگر دغدغهها و چالشهای پیـش روی این پروژه بود.

در ابتدا برای تغییر نگرش به قوانین شهرداری، کنسول را که معمولاً به صورت صفحه هایی پیش آمده از نما در این بافت ها شکل می گیرند، به صورت باکس هایی دیدیم که تراس های هر واحد را شکل خواهند داد. تراس هایی که به صورت جداگانه و با محرمیت کامل نسبت به هم قرار بگیرند. بدین ترتیب کنسول ها تبدیل به باکس هایی شد که در طبقات روی هم می لغزند و با جابجایی باعث ایجاد تراس ها می شوند. کنسول ها پس از شکل گیری تاثیر خود را بر جدار اصلی گذاشته و در نقطه برخورد با سطح نما، حفره هایی را ایجاد می کنند. این حفره ها، تراس های واحد دیگر در همان طبقه را شکل می دهد. با شبکه هنر و معماری ستاوین همراه باشید ... بدین صورت ما در هر طبقه تراس هایی بیرون زده و فرورفته داریم که به صورت جداگانه و با رعایت محرمیت شکل گرفته اند.

با شکل گیری کنسول ها در هر طبقه جدار اصلی بنا از یک نمای تخت و مسطح تبدیل به حجمی با عمق 3 لایه شد.
لایه اول سطح بیرون زدگی کنسول ها که تراس ها را شکل می دهد، لایه دوم (جدار اصلی بنا) سطح تخت نما است و لایه سوم قسمت فرو رفته و حفره هایی است که با تاثیر پذیری از برخورد کنسول ها روی جدار اصلی شکل گرفته و تراس واحد دیگر در همان طبقه را تشکیل می دهد.
با ایجاد این 3 لایه جدار بیرونی و مسطح پروژه به فرمی پویا و دارای عمق تبدیل شد که پاسخگوی تمامی عملکردهای داخلی بنا نیز باشد. (نورگیری، محرمیت، تراس، پلان و ...)
تاثیر این3 لایه بر پلان داخلی باعث جانمایی اتاق مهمان، فضای پذیرایی و همینطور تراس ها در ارتباط با جدار اصلی بنا شد و این اثرگذاری، کیفیت های فضایی متفاوتی را بنا به نیاز فضاها ایجاد کرد.

پس از شکل گیری لایه های نما، به دلیل تعداد زیاد بازشوها و ایجاد محرمیت و دید کنترل شده در سطح تخت نما، پوسته ای از لوورهای چوبی شکل گرفت تا علاوه بر جلوگیری از اغتشاش بصری، باعث پیوستگی در نما شده و کیفیت ورود نور و دید را تعریف کند.
با شکل گیری پروژه علاوه بر پاسخگویی به عملکردهای داخلی، برخوردی متفاوت با ضوابط شهرداری و ایجاد یکپارچگی در پروژه، توانستیم به مساله دید مستقیم از بیرون به داخل و محرمیت نیز پاسخ دهیم، بدین صورت که در هر 3لایه شکل دهنده جدار بیرونی، مساله دید با یک واسطه شکل می گیرد و هیچ بازشویی به صورت مستقیم در جدار بیرونی باز نمی شود.

مراحل طراحی پروژه آرام آرام، به مثابه پژوهشی درون متن مشخص شکل گرفت. شکل گیری کنسول ها و نحوه برخورد با آن ها (که چالش ضوابط شهری را همراه خود داشت)، به مرور و هرچه به عمق پروژه نزدیک شد، لایه های دیگری از مسائل و پتانسیل های پروژه را نمایان ساخت. لایه هایی که با پیشرفت در روند شکل گیری طرح، مسائل اجتماعی، فرهنگی، ساختاری و حتی دیتایل های اجرایی پروژه را تحت تاثیر خود قرار داد. به این ترتیب، طراحی جدار شهری پروژه به صورت دیواره ای در نظر گرفته شد که عملکردهای داخلی، پلان، محرمیت و ضوابط را در برگرفته و در یک دیالوگ متقابل، تاثیر خود را در داخل و خارج بنا گذاشته است. با شبکه هنر و معماری ستاوین همراه باشید ...
در نهایت پروژه خود را به صورت فرمی یکپارچه در بافت یکنواخت شهری نمایان کرد که دارای هویتی مستقل نسبت به بافت پیرامون خود است.

در سازمان دهی فضایی پلان پروژه، نورگیری، محرمیت و تناسب فضاها مورد توجه قرار گرفت. به گونه ای که با تقسیم فضا به عرصه های عمومی، نیمه عمومی و خصوصی، پلان شکل گرفت. فضای پذیرایی و اتاق مهمان در عرصه عمومی و به سمت نمای اصلی قرار گرفته، آشپزخانه و نشیمن در عرصه نیمه عمومی و نقش واسطی بین دو عرصه عمومی و خصوصی را ایفا می کند.
اتاق خواب ها و حمام در عرصه خصوصی و در قسمت پشت ساختمان و فارغ از آلودگی صوتی قرار گرفت. این فضاها، نور خود را از حیاط تامین می کند. با شبکه هنر و معماری ستاوین همراه باشید ...
برای ایجاد هماهنگی داخل پروژه از متریال چوب در سقف قسمت نشیمن و آشپزخانه استفاده شد. همچنین تیغه جداکننده فضای نشیمن و اتاق خواب ها دارای دو وظیفه بود (جلوگیری از دید مستقیم به اتاق خواب ها و قرارگیری تلویزیون روی آن) این تیغه با حرکتی پویا از سقف شروع شده، تا روی دیوار امتداد پیدا کرده و به صورت معلق با فاصله ای 60 سانتی متری از زمین قرار میگیرد.












































تذکر : استفاده از مطالب وب سایت ستاوین ( شبکه هنر و معماری ستاوین ) فقط با ذکر منبع و لینک بلامانع است . کلیه حقوق، محتوا و طراحی سایت متعلق به وب سایت ستاوین میباشد. در غیر این صورت مراتب از طریق مراجع قانونی پیگیری خواهد شد .
دوستان و همراهان عزیز ستاوین ( شبکه هنر و معماری ستاوین ) ، با نظرات و پیشنهادات سازنده خود ما را در ارائه هر چه بهتر مطالب و اهداف مان، که همانا ارتقا جایگاه و فرهنگ معماری می باشد ، یاری کنید . منتظر دیدگاه های شما عزیزان هستیم . . .
ترجمه شده توسط تحریریه ستاوین - (علیرضا اورعی)