ساختمان مسکونی آوینی , اثر دفتر معماری هرم , قم

مجموعه: پروژه های معماری ، نویسنده مرتضی علی نیا مقدم ، تاریخ انتشار: ۱۰ / ۰۸ / ۱۳۹۸ ، شناسه: ۳۳۳۶ ، بازدید:۲۹۴۷
نویسنده مقاله

مکان : قم , شهرک قدس , خیابان شهید آوینی , نبش کوچه سوم
سال : 1397
مشاور طراحی معماری : دفتر معماری هرم
آرشیتکت (معمار /معماران) : مرتضی علی نیا مقدم , حمید بابایی
همکاران طراحی : بهاره شیسی , مرضیه گلشاهی , فاطمه اسد سلیمانی , اندیشه اسکویی , احسان کازرونی , الیکا زارعی , کاظم رضایانی
کارفرما : سالار نیکوگفتار
مجری : سالار نیکوگفتار , کاظم رضایانی
وضعیت پروژه : بهره برداری
زیربنا پروژه : 1840 مترمربع
عکس : دید استودیو

 

در این پست با شبکه هنر و معماری ستاوین همراه باشید تا نگاهی به خانه آوینی , که به گفته طراح , فضایی است برای آرامش، برای سکوت، برای گفتگو داشته باشیم ... یکی از مهمترین ویژگی های خانه خلوص فضایی و استفاده از هندسه مناسب برای فضاهای عملکردی است. اولویت در طراحی خانه بیشتر از فرم بیرونی به داخل بنا مربوط شده و  برای رسیدن به کیفیت مناسب، خانه باید در پلان حل گردد. پلان هایی با فضاهایی با تناسب درست و خلوص فضایی، آسایش محیطی بیشتری را به کاربر ارائه می دهند. از این رو در طراحی فضاهای مسکونی، پلانی که پاسخگوی عملکردهای درونی پروژه و آسایش محیطی کاربر بوده، از اهمیت بالایی برخوردار است.

ساختمان مسکونی آوینی , دفتر معماری هرم , قم , آوینی , پلان و شهر , عملکرد و فرم , مجسمه و فضا , شبکه هنر و معماری ستاوین , شبکه هنر و معماری , ستاوین , آرامش , سکوت , گفتگو , طراحی مسکونی , مسکن , طراحی خانه , خانه , مقیاس , بافت , متریال , ساختمان مسکونی آوینی , ارتباط و دیالوگ

 

از طرف دیگر ساختمان های مسکونی که در بافت شهری قرار می گیرند نیازمند ارتباط و دیالوگی بین خود، شهر و زمینه مورد نظر می باشند. پروژه باید خود را در بافت جای داده، با محیط ارتباط برقرار کرده و جایگاه خود را در شهر پیدا کند.

 

ساختمان مسکونی آوینی , دفتر معماری هرم , قم , آوینی , پلان و شهر , عملکرد و فرم , مجسمه و فضا , شبکه هنر و معماری ستاوین , شبکه هنر و معماری , ستاوین , آرامش , سکوت , گفتگو , طراحی مسکونی , مسکن , طراحی خانه , خانه , مقیاس , بافت , متریال , ساختمان مسکونی آوینی , ارتباط و دیالوگ

 

  • زمینــه| سایتـــ

ساختمان مسکونی آوینی در شهر قم واقع شده و دارای 8 طبقه، 6 واحد مسکونی، یک واحد تجاری و یک طبقه پارکینگ است.

محدوده ی قرارگیری زمین دارای هندسه ای ناموزون و اضلاعی با زوایای متفاوت است. هندسه ی سایت به گونه ایست که طراحی پلان در آن با مشکلات و چالش های فراوانی همراه است. سایت پروژه از یک ضلع به سمت خیابان اصلی و از ضلع دیگر به یک کوچه منتهی می شود. باتوجه به ضوابط شهرداری و مقدار کنسول ها در راستای اضلاع زمین، چالش اصلی ایجاد پلانی با بیشترین بازدهی و عدم وجود فضاهای پرت است. از طرف دیگر با توجه به قرارگیری پروژه در کنار خیابان اصلی و پرتردد و باز بودن محیط اطراف آن، مسئله آیکونیک بودن پروژه در زمینه مطرح است. چالشی که با قرارگیری پروژه در محیط نمایان شده و باید در دیالوگی با درون پروژه شکل بگیرد. با ستاوین همراه باشید ... 

 

ساختمان مسکونی آوینی , دفتر معماری هرم , قم , آوینی , پلان و شهر , عملکرد و فرم , مجسمه و فضا , شبکه هنر و معماری ستاوین , شبکه هنر و معماری , ستاوین , آرامش , سکوت , گفتگو , طراحی مسکونی , مسکن , طراحی خانه , خانه , مقیاس , بافت , متریال , ساختمان مسکونی آوینی , ارتباط و دیالوگ

 

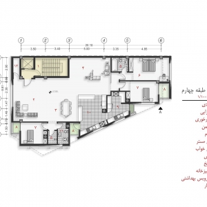
  • پـــــــلانــــــ

با توجه به هندسه ی زمین که دارای خطوطی با زوایای متفاوت است، حل کردن فضاهای داخلی و طراحی پلانی با بیشترین بازدهی مهمترین مساله موجود در پروژه در نظر گرفته می شود.

در روش طراحی عمومی و آن چه از گذشته انجام می شد، طراحی پلان با خطوطی همراه می شد که هماهنگ با خطوط زمین بوده و در راستای آن ها شکل می گرفت. بدین صورت در پلان هایی که خطوط زمین آن ها دارای زوایای متفاوتی بود، فضاهایی بدون استفاده و پرت شکل می گرفت که خلوص فضایی و تناسبات فضا را برای استفاده درست کاربر از بین می برد.

چالش اصلی در پروژه طراحی پلانی عملکردی و خالص با توجه به محدودیت زمین، خطوط سایت و ضوابط شهری بود.

 

ساختمان مسکونی آوینی , دفتر معماری هرم , قم , آوینی , پلان و شهر , عملکرد و فرم , مجسمه و فضا , شبکه هنر و معماری ستاوین , شبکه هنر و معماری , ستاوین , آرامش , سکوت , گفتگو , طراحی مسکونی , مسکن , طراحی خانه , خانه , مقیاس , بافت , متریال , ساختمان مسکونی آوینی , ارتباط و دیالوگ

 

  • طــــــــــرح

با توجه به محدودیت های پروژه در ابتدا “حل کردن پلان با بیشترین بازدهی ممکن که دارای خلوص هندسی و تناســـبات درسـت” مورد توجه قرار گرفت. از این رو در رونـــــد شکل گیری پلان ما به خطوطی رسیدیم که از طریق کنسول ها ایجاد می شد. در این مرحله برای شکل گیری خلوص فضایی و رسیدن به هندسه ی درست در پلان، کنسول ها و نحوه قرارگیری آنها با توجه به فضاهای درونی تغییر پیدا کردند. به گونه ای که در تبعیت از فضاهای داخلی و در راستای خطوط داخلی پلان، کنسول ها نیز تغییر زاویه داده و با خطوط داخلی پلان هماهنگ شدند. در نتیجه به پلانی با بیشترین بازدهی رسیدیم.با ستاوین همراه باشید ...  پلانی که کوچکترین فضای نامتناسب نداشت. در همین روند بود که حجم بیرونی بنا نیز در دیالوگی دو سویه مابین پلان داخلی و خطوط شهری شکل گرفت. حجم دیالوگی شد بین درون و بیرون پروژه، فرمی متاثر از فضای داخلی و اتفاقات درونی بنا و همچنین تاثیرگذار و تاثیرپذیر از شهر و خطوط سایت. در نتیجه به حجمی دست پیدا کردیم که خود را در بافت شهری به صورت شاخص نمایان می کند. این حجم از طرفی در دیالوگ با فضاهای داخلی و پلان بوده و از طرف دیگر هماهنگی خودرا با خطوط شهر (قسمت آشپزخانه) برقرار خواهد کرد.

 

ساختمان مسکونی آوینی , دفتر معماری هرم , قم , آوینی , پلان و شهر , عملکرد و فرم , مجسمه و فضا , شبکه هنر و معماری ستاوین , شبکه هنر و معماری , ستاوین , آرامش , سکوت , گفتگو , طراحی مسکونی , مسکن , طراحی خانه , خانه , مقیاس , بافت , متریال , ساختمان مسکونی آوینی , ارتباط و دیالوگ

 

  • مقیاس| بافت | متریال

پس از شکل گیری حجمی پروژه و همینطور حل کردن پلان داخلی، برای ایجاد بازشوها دیتیلی در نظر گرفته شد که بتواند بر جنبه آیکونیک بودن بنا تاکید کند. بازشوها به مثابه ی برش هایی از داخل یک سنگ بزرگ ایجاد شدند که گویی مجسمه ای در حال شکل گرفتن است. از طرف دیگر این بازشوها پاسخی برای مساله محرمیت و دید کنترل شده در زمینه مورد نظر (شهر قم) نیز بود. بدین ترتیب پروژه خود را مانند مجسمه ای در شهر نمایان کرد که خطوطی بر روی آن حکاکی شده (بازشوها). از طرف دیگر به دلیل قرارگیری پروژه در بافت باز محیط ما به 2 مقیاس متفاوت از لحاظ بصری توجه کردیم، مقیاس شهری و دور پروژه که همان مجسمه ای است با بازشوهایی که روی آن را برش داده و مقیاس دیگر که مقیاس انسانی و نزدیک پروژه بود. برای نمایان کردن دیتیل های ریز مجسمه در مقیاس انسانی، ما بافتی از سنگ های نامنظم را روی پروژه شکل دادیم که این خطوط با نزدیک شدن به پروژه خود را نمایان می کنند.با ستاوین همراه باشید ... 

بدین ترتیب جنبه آیکونیک بودن پروژه در هر دو مقیاس شهری و انسانی رعایت شد. در مقیاس شهری و حجم کلی از پروژه، فقط بازشوها نمایان است و پس از نزدیک شدن به پروژه و در مقیاس انسانی خطوط نامنظم قرارگیری سنگ ها نمایان شده و دیتیلی دیگر از مجسمه را نشان می دهد. این بافت با قرارگیری سنگ هایی با عرض متفاوت (10،20،30 و 40 سانتی متری) و هچنین دارای عمق بر روی هم شکل گرفت.

 

ساختمان مسکونی آوینی , دفتر معماری هرم , قم , آوینی , پلان و شهر , عملکرد و فرم , مجسمه و فضا , شبکه هنر و معماری ستاوین , شبکه هنر و معماری , ستاوین , آرامش , سکوت , گفتگو , طراحی مسکونی , مسکن , طراحی خانه , خانه , مقیاس , بافت , متریال , ساختمان مسکونی آوینی , ارتباط و دیالوگ

 

برای پرداخت نهایی پروژه از سنگی به رنگ سفید استفاده شد. سنگ در ایران در سال های اخیر بیشتر به صورت نامناسب و غلط (نماهای کلاسیک و رومی) استفاده می شود که در آنها ماهیت شکل گیری و کیفیت سنگ از بین رفته است. پروژه به صورت سنگی یکپارچه و سفید رنگ (به دلیل شاخص کردن پروژه در بافت) دیده شد که گویی با چکش کاری و حکاکی های انجام شده روی آن، مجسمه ای از دل این سنگ یکپارچه نمایان شد.

ساختمان مسکونی آوینی چالشی است بین پلان و شهر، دیالوگی است بین درون و بیرون، بین عملکرد و فرم، بین مجسمه و فضا.با ستاوین همراه باشید ... 

 

ساختمان مسکونی آوینی , دفتر معماری هرم , قم , آوینی , پلان و شهر , عملکرد و فرم , مجسمه و فضا , شبکه هنر و معماری ستاوین , شبکه هنر و معماری , ستاوین , آرامش , سکوت , گفتگو , طراحی مسکونی , مسکن , طراحی خانه , خانه , مقیاس , بافت , متریال , ساختمان مسکونی آوینی , ارتباط و دیالوگ

ساختمان مسکونی آوینی , دفتر معماری هرم , قم , آوینی , پلان و شهر , عملکرد و فرم , مجسمه و فضا , شبکه هنر و معماری ستاوین , شبکه هنر و معماری , ستاوین , آرامش , سکوت , گفتگو , طراحی مسکونی , مسکن , طراحی خانه , خانه , مقیاس , بافت , متریال , ساختمان مسکونی آوینی , ارتباط و دیالوگ

 

 

ساختمان مسکونی آوینی , دفتر معماری هرم , قم , آوینی , پلان و شهر , عملکرد و فرم , مجسمه و فضا , شبکه هنر و معماری ستاوین , شبکه هنر و معماری , ستاوین , آرامش , سکوت , گفتگو , طراحی مسکونی , مسکن , طراحی خانه , خانه , مقیاس , بافت , متریال , ساختمان مسکونی آوینی , ارتباط و دیالوگ

ساختمان مسکونی آوینی , دفتر معماری هرم , قم , آوینی , پلان و شهر , عملکرد و فرم , مجسمه و فضا , شبکه هنر و معماری ستاوین , شبکه هنر و معماری , ستاوین , آرامش , سکوت , گفتگو , طراحی مسکونی , مسکن , طراحی خانه , خانه , مقیاس , بافت , متریال , ساختمان مسکونی آوینی , ارتباط و دیالوگ

 

 

ساختمان مسکونی آوینی , دفتر معماری هرم , قم , آوینی , پلان و شهر , عملکرد و فرم , مجسمه و فضا , شبکه هنر و معماری ستاوین , شبکه هنر و معماری , ستاوین , آرامش , سکوت , گفتگو , طراحی مسکونی , مسکن , طراحی خانه , خانه , مقیاس , بافت , متریال , ساختمان مسکونی آوینی , ارتباط و دیالوگ

ساختمان مسکونی آوینی , دفتر معماری هرم , قم , آوینی , پلان و شهر , عملکرد و فرم , مجسمه و فضا , شبکه هنر و معماری ستاوین , شبکه هنر و معماری , ستاوین , آرامش , سکوت , گفتگو , طراحی مسکونی , مسکن , طراحی خانه , خانه , مقیاس , بافت , متریال , ساختمان مسکونی آوینی , ارتباط و دیالوگ

 

 

ساختمان مسکونی آوینی , دفتر معماری هرم , قم , آوینی , پلان و شهر , عملکرد و فرم , مجسمه و فضا , شبکه هنر و معماری ستاوین , شبکه هنر و معماری , ستاوین , آرامش , سکوت , گفتگو , طراحی مسکونی , مسکن , طراحی خانه , خانه , مقیاس , بافت , متریال , ساختمان مسکونی آوینی , ارتباط و دیالوگ

ساختمان مسکونی آوینی , دفتر معماری هرم , قم , آوینی , پلان و شهر , عملکرد و فرم , مجسمه و فضا , شبکه هنر و معماری ستاوین , شبکه هنر و معماری , ستاوین , آرامش , سکوت , گفتگو , طراحی مسکونی , مسکن , طراحی خانه , خانه , مقیاس , بافت , متریال , ساختمان مسکونی آوینی , ارتباط و دیالوگ

 

 

ساختمان مسکونی آوینی , دفتر معماری هرم , قم , آوینی , پلان و شهر , عملکرد و فرم , مجسمه و فضا , شبکه هنر و معماری ستاوین , شبکه هنر و معماری , ستاوین , آرامش , سکوت , گفتگو , طراحی مسکونی , مسکن , طراحی خانه , خانه , مقیاس , بافت , متریال , ساختمان مسکونی آوینی , ارتباط و دیالوگ

ساختمان مسکونی آوینی , دفتر معماری هرم , قم , آوینی , پلان و شهر , عملکرد و فرم , مجسمه و فضا , شبکه هنر و معماری ستاوین , شبکه هنر و معماری , ستاوین , آرامش , سکوت , گفتگو , طراحی مسکونی , مسکن , طراحی خانه , خانه , مقیاس , بافت , متریال , ساختمان مسکونی آوینی , ارتباط و دیالوگ

 

 

ساختمان مسکونی آوینی , دفتر معماری هرم , قم , آوینی , پلان و شهر , عملکرد و فرم , مجسمه و فضا , شبکه هنر و معماری ستاوین , شبکه هنر و معماری , ستاوین , آرامش , سکوت , گفتگو , طراحی مسکونی , مسکن , طراحی خانه , خانه , مقیاس , بافت , متریال , ساختمان مسکونی آوینی , ارتباط و دیالوگ

ساختمان مسکونی آوینی , دفتر معماری هرم , قم , آوینی , پلان و شهر , عملکرد و فرم , مجسمه و فضا , شبکه هنر و معماری ستاوین , شبکه هنر و معماری , ستاوین , آرامش , سکوت , گفتگو , طراحی مسکونی , مسکن , طراحی خانه , خانه , مقیاس , بافت , متریال , ساختمان مسکونی آوینی , ارتباط و دیالوگ

 

 

ساختمان مسکونی آوینی , دفتر معماری هرم , قم , آوینی , پلان و شهر , عملکرد و فرم , مجسمه و فضا , شبکه هنر و معماری ستاوین , شبکه هنر و معماری , ستاوین , آرامش , سکوت , گفتگو , طراحی مسکونی , مسکن , طراحی خانه , خانه , مقیاس , بافت , متریال , ساختمان مسکونی آوینی , ارتباط و دیالوگ

ساختمان مسکونی آوینی , دفتر معماری هرم , قم , آوینی , پلان و شهر , عملکرد و فرم , مجسمه و فضا , شبکه هنر و معماری ستاوین , شبکه هنر و معماری , ستاوین , آرامش , سکوت , گفتگو , طراحی مسکونی , مسکن , طراحی خانه , خانه , مقیاس , بافت , متریال , ساختمان مسکونی آوینی , ارتباط و دیالوگ

 

 

ساختمان مسکونی آوینی , دفتر معماری هرم , قم , آوینی , پلان و شهر , عملکرد و فرم , مجسمه و فضا , شبکه هنر و معماری ستاوین , شبکه هنر و معماری , ستاوین , آرامش , سکوت , گفتگو , طراحی مسکونی , مسکن , طراحی خانه , خانه , مقیاس , بافت , متریال , ساختمان مسکونی آوینی , ارتباط و دیالوگ

ساختمان مسکونی آوینی , دفتر معماری هرم , قم , آوینی , پلان و شهر , عملکرد و فرم , مجسمه و فضا , شبکه هنر و معماری ستاوین , شبکه هنر و معماری , ستاوین , آرامش , سکوت , گفتگو , طراحی مسکونی , مسکن , طراحی خانه , خانه , مقیاس , بافت , متریال , ساختمان مسکونی آوینی , ارتباط و دیالوگ

 

 

ساختمان مسکونی آوینی , دفتر معماری هرم , قم , آوینی , پلان و شهر , عملکرد و فرم , مجسمه و فضا , شبکه هنر و معماری ستاوین , شبکه هنر و معماری , ستاوین , آرامش , سکوت , گفتگو , طراحی مسکونی , مسکن , طراحی خانه , خانه , مقیاس , بافت , متریال , ساختمان مسکونی آوینی , ارتباط و دیالوگ

ساختمان مسکونی آوینی , دفتر معماری هرم , قم , آوینی , پلان و شهر , عملکرد و فرم , مجسمه و فضا , شبکه هنر و معماری ستاوین , شبکه هنر و معماری , ستاوین , آرامش , سکوت , گفتگو , طراحی مسکونی , مسکن , طراحی خانه , خانه , مقیاس , بافت , متریال , ساختمان مسکونی آوینی , ارتباط و دیالوگ

 

 

تذکر : استفاده از مطالب وب سایت ستاوین ( شبکه هنر و معماری ستاوین ) فقط با ذکر منبع و لینک بلامانع است . کلیه حقوق، محتوا و طراحی سایت متعلق به وب سایت ستاوین می‌باشد. در غیر این صورت مراتب از طریق مراجع قانونی پیگیری خواهد شد .

دوستان و همراهان عزیز ستاوین ( شبکه هنر و معماری ستاوین ) ، با نظرات و پیشنهادات سازنده خود ما را در ارائه هر چه بهتر مطالب و اهداف مان، که همانا ارتقا جایگاه و فرهنگ معماری می باشد ، یاری کنید . منتظر دیدگاه های شما عزیزان هستیم . . .

آیا تمایل دارید نام ، برند و محصولات شما برای مخاطبین ما نمایش داده شود؟ ( اینجا کلیک کنید )

ترجمه شده توسط تحریریه ستاوین

تبلیغات

شبکه هنر و معماری ستاوین

استفاده از محتوای سایت با ذکر منبع و درج لینک بلامانع است . کلیه حقوق مادی و معنوی , محتوا و طراحی متعلق به شبکه هنر و معماری ستاوین می باشد .