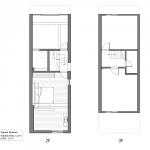
در این پست با شبکه هنر و معماری ستاوین همراه باشید تا نگاهی به پروژه مسکونی Blank House و نگرش استودیو HAO Design در زمینه طراحی داخلی این پروژه داشته باشیم ... ( توضیحات متن توسط معماران ارائه شده است ) , در این پروژه , تیم طراحی HAO در تلاش است تا تعادل بهینه ای بین فضا و روشنایی برقرار کند ، به همین دلیل ما تصمیم گرفته شد تا از روش های مختلف طراحی استفاده شود که محدودیت های مختلف ساختمان را برطرف می کند. ابتدا دیوارهای پارتیشن مانند برداشته شد ، بدین جهت یک گشایش فضایی به لحاظ بصری شکل گرفت .

طبقه فوقانی به یک کتابخانه باز تبدیل شده است ، به طوری که نوری که با از بین بردن پارتیشن ها وارد می شود می تواند به اتاق نشیمن در تراز همسطح زمین نیز تابیده شود . بازشو ای با ابعاد بزرگ در مجاورت فضای ناهار خوری , حداکثر روشنایی را در اختیار استفاده کنندگان از فضا قرار می دهد ، لبه این بازشو دارای عملکرد , فضایی برای نشستن جهت کارکرد ناهارخوری خواهد داشت .

دومین چالش استودیو HAO Design , راه پله بود. راه پله اصلی که فضای ورودی خانه را اشغال کرده بود , به قسمت پشتی , فضایی که آشپزخانه در آن قرار داشت انتقال داده شد . از مواد شفاف برای جایگزینی سقف در بالای آشپزخانه استفاده شده است تا نور بتواند در آن راه نفوذ کرده و فضای پلکان را شاخص تر کند . در تراز فوقانی , فضاهای خصوصی شامل فضای خواب و فضاهای دارای کارکرد بهداشتی , در ارتباط مستقیم با یکدیگر بوده , به گونه ای که نور طبیعی فضای خواب از فضای بلافصل حمام تامین می گردد . فضای پلکان و عناصر الحاقی جدید در این بنا , در ارتباط مستقیم با تابش نور و ایجاد سایه ها هستند , به صورتی که بازی های نور و سایه سبب شاخص تر شدن کارکرد ها در فضاهای داخلی می گردد .













تذکر : استفاده از مطالب وب سایت ستاوین ( شبکه هنر و معماری ستاوین ) فقط با ذکر منبع و لینک بلامانع است . کلیه حقوق، محتوا و طراحی سایت متعلق به وب سایت ستاوین میباشد. در غیر این صورت مراتب از طریق مراجع قانونی پیگیری خواهد شد .
دوستان و همراهان عزیز ستاوین ( شبکه هنر و معماری ستاوین ) ، با نظرات و پیشنهادات سازنده خود ما را در ارائه هر چه بهتر مطالب و اهداف مان، که همانا ارتقا جایگاه و فرهنگ معماری می باشد ، یاری کنید . منتظر دیدگاه های شما عزیزان هستیم . . .
منبع: archdaily
ترجمه شده توسط تحریریه ستاوین