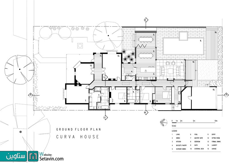
همراهان عزیز ستاوین ,در این پست به بررسی طرح تیم معماری LSA Architects ،برای بخش الحاقی به ویلایی قدیمی در ملبورن استرالیا،جهت بازسازی به سبک مدرن بنای مذکور می پردازیم .


با توجه به زمینه تاریخی سایت و بنای موجود , یکی از اصول اساسی پروژه نمایش تدریجی فضای الحاقی مدرن می باشد . باغ رسمی , نمای تاریخی و بخش فضاهای خواب در قسمت ابتدای ساختمان واقع شده اند , پس از این فضاها ساختمان با بخش الحاقی و مدرن خود ارتباط پیدا می کند .






.jpg)

منبع : contemporist
تذکر : استفاده از مطالب وب سایت ستاوین ( شبکه هنر و معماری ستاوین ) فقط با ذکر منبع و لینک بلامانع است . کلیه حقوق، محتوا و طراحی سایت متعلق به وب سایت ستاوین میباشد. در غیر این صورت مراتب از طریق مراجع قانونی پیگیری خواهد شد .
دوستان و همراهان عزیز ستاوین ( شبکه هنر و معماری ستاوین ) ، با نظرات و پیشنهادات سازنده خود ما را در ارائه هر چه بهتر مطالب و اهداف مان، که همانا ارتقا جایگاه و فرهنگ معماری می باشد ، یاری کنید . منتظر دیدگاه های شما عزیزان هستیم . . .
ترجمه شده توسط تحریریه ستاوین