اقامتگاه Heavenly Highlands ، اثر تیم طراحی Casalvolone Arquitectura ، کاستاریکا

مجموعه: پروژه های معماری ، تاریخ انتشار: ۲۴ / ۰۳ / ۱۴۰۲ ، شناسه: ۴۹۱۹ ، بازدید:۹۶۲

مکان : کاستاریکا ، San Jose de Mayo
سال : 2021
آرشیتکت (معمار /معماران) : Franco Casalvolone, Jorge Gonzalez
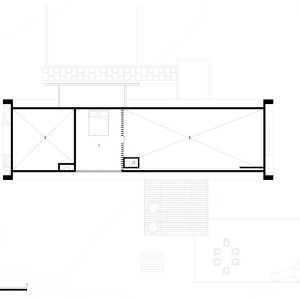
زیربنا پروژه : 150 مترمربع
عکس : Andrés García

در این محتوا با شبکه هنرو معماری ستاوین همراه باشید تا نگاهی به اقامتگاه Heavenly Highlands ، اثر تیم طراحی Casalvolone Arquitectura ، در طبیعت سرسبز کاستاریکا ، که تلفیقی کامل از معماری مدرن و تکنیک‌ها و مصالح ساختمانی سنتی را به نمایش گذاشته است ، داشته باشیم ...  این خانه که نمای مشکی زیبای آن به طور هماهنگ با محیط طبیعی در می آمیزد، به عنوان پناهگاهی خنک و سایه دار برای ساکنانش خودنمایی می کند.بیش از 300 درخت در این پروژه برای کمک به طبیعت کاشته شد و به این ملک اجازه داد تا با پوشش گیاهی ترکیب شود و به یک پناهگاه واقعی تبدیل شود.

 

پروژه های معماری , Projects , پروژه های ساخته شده , Built Projects , کاستاریکا , Costa Rica , اقامتگاه Heavenly Highlands , ویلا , Architecture , معماری , جنگل های کاستاریکا , Casalvolone Arquitectura


طبقات ساخته شده با متریال های بومی ، حسی هنری ارائه می دهند و میراث فرهنگی و سنت های غنی منطقه را منعکس می کنند. در داخل، متریال چوبی گرم و دنج، که از جنگل‌های شبه جزیره اوسا سرچشمه می‌گیرد، ماده‌ای که به دلیل استحکام و دوام آن ارزشمند است، فضایی خانگی و آرامش‌بخش را ایجاد می‌کند.

 

پروژه های معماری , Projects , پروژه های ساخته شده , Built Projects , کاستاریکا , Costa Rica , اقامتگاه Heavenly Highlands , ویلا , Architecture , معماری , جنگل های کاستاریکا , Casalvolone Arquitectura

 

پنجره های پانوراما گسترده امکان لذت بردن از محیط طبیعی را فراهم می کند و پناهگاهی آرام از شلوغی زندگی روزمره ارائه می دهد. بعلاوه استفاده از بتن اکسپوز که امضای معمار در اکثر آثار آنهاست ، جلوه ای مدرن و منحصر به فرد می بخشد و در این حالت تعادل کاملی با چوب خانه حاصل می شود.

 

پروژه های معماری , Projects , پروژه های ساخته شده , Built Projects , کاستاریکا , Costa Rica , اقامتگاه Heavenly Highlands , ویلا , Architecture , معماری , جنگل های کاستاریکا , Casalvolone Arquitectura

 

مبلمان آشپزخانه، حمام ، در و کمد ، که توسط صنعتگران محلی ساخته شده است ، ادای احترام به هنر و استعداد محلی است . این ملک همچنین دارای مزرعه ای پر رونق ، از جمله باغ های سبزیجات، درختان میوه، و حیوانات مزرعه است که به احساس هماهنگی با دنیای طبیعی کمک می کند.

به طور خلاصه، این ملک چشمگیر گواهی بر علاقه و فداکاری سازندگان آن و همچنین عشق آنها به طبیعت است و آن را به جواهری در میان جنگل های کاستاریکا تبدیل کرده است.

 

پروژه های معماری , Projects , پروژه های ساخته شده , Built Projects , کاستاریکا , Costa Rica , اقامتگاه Heavenly Highlands , ویلا , Architecture , معماری , جنگل های کاستاریکا , Casalvolone Arquitectura

 

 

پروژه های معماری , Projects , پروژه های ساخته شده , Built Projects , کاستاریکا , Costa Rica , اقامتگاه Heavenly Highlands , ویلا , Architecture , معماری , جنگل های کاستاریکا , Casalvolone Arquitectura

 

 

پروژه های معماری , Projects , پروژه های ساخته شده , Built Projects , کاستاریکا , Costa Rica , اقامتگاه Heavenly Highlands , ویلا , Architecture , معماری , جنگل های کاستاریکا , Casalvolone Arquitectura

 

 

پروژه های معماری , Projects , پروژه های ساخته شده , Built Projects , کاستاریکا , Costa Rica , اقامتگاه Heavenly Highlands , ویلا , Architecture , معماری , جنگل های کاستاریکا , Casalvolone Arquitectura

 

 

پروژه های معماری , Projects , پروژه های ساخته شده , Built Projects , کاستاریکا , Costa Rica , اقامتگاه Heavenly Highlands , ویلا , Architecture , معماری , جنگل های کاستاریکا , Casalvolone Arquitectura

 

 

تذکر : استفاده از مطالب وب سایت ستاوین ( شبکه هنر و معماری ستاوین ) فقط با ذکر منبع و لینک بلامانع است . کلیه حقوق، محتوا و طراحی سایت متعلق به وب سایت ستاوین می‌باشد. در غیر این صورت مراتب از طریق مراجع قانونی پیگیری خواهد شد .

دوستان و همراهان عزیز ستاوین ( شبکه هنر و معماری ستاوین ) ، با نظرات و پیشنهادات سازنده خود ما را در ارائه هر چه بهتر مطالب و اهداف مان، که همانا ارتقا جایگاه و فرهنگ معماری می باشد ، یاری کنید . منتظر دیدگاه های شما عزیزان هستیم . . .

آیا تمایل دارید نام ، برند و محصولات شما برای مخاطبین ما نمایش داده شود؟ ( اینجا کلیک کنید )

ترجمه شده توسط تحریریه ستاوین - (علیرضا اورعی)

تبلیغات

شبکه هنر و معماری ستاوین

استفاده از محتوای سایت با ذکر منبع و درج لینک بلامانع است . کلیه حقوق مادی و معنوی , محتوا و طراحی متعلق به شبکه هنر و معماری ستاوین می باشد .