در این محتوا با شبکه هنر و معماری ستاوین همراه باشید تا نگاهی به خانه موما ، استودیو معماری تکالی ، مکزیک داشته باشیم ... خانه موما در استان پوئبلا مکزیک و در شهر سن پدرو چولولا واقع شده است. این شهر یکی از مناطق رو به رشد دره پوئبلا است ، با این حال ، هنوز تعداد زیادی زمین کشاورزی ، کورههای سفالی ، کارخانهها و کارگاههای سنتی توسط خانوادههای محلی اداره میشوند . مشتریها زوج جوانی هستند که با فرصتهایی که از همهگیری کووید-19 پدید میآید ، بهویژه کار در خانه ، بسیار موفق شدند . به همین دلیل است که برنامه معماری متفاوت و به عنوان جایگزینی از مدل های زندگی معمولی در بازار املاک مکزیک شکل می گیرد .

این پروژه خانوادگی در یک منطقه تفریحی خصوصی سابق واقع شده است که اکنون به یک بخش مسکونی تبدیل شده است. چندین ردیف از درختان کاج با ارتفاع قابل توجهی در آن فضا حفظ شده است که آب و هوای کوچکی را در داخل محوطه ایجاد می کند، مرطوب تر و معتدل تر از آب و هوای متوسط دره پوئبلا.

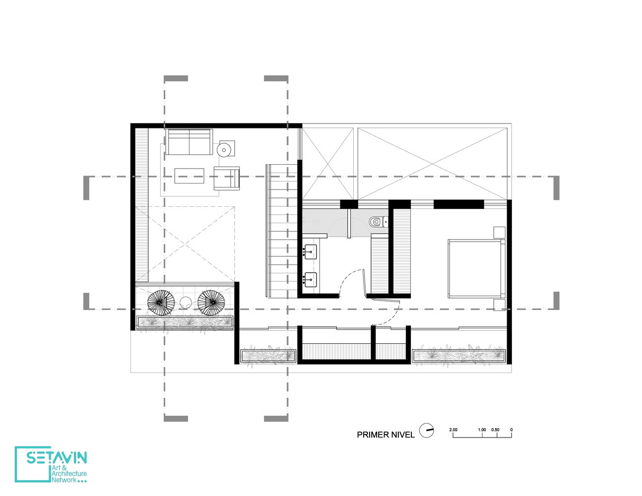
این قطعه دارای ویژگی خاصی است که آن را از اکثر املاک و مستغلات در منطقه متمایز می کند. جلوی آن بیشتر از عمق آن، 13 متر در 8 متر عمق است، که همه فضاهای طراحی را شرایط می کند و فرصتی برای ترسیم نمای گسترده تر و بهره گیری بهتر از جهت شرقی را فراهم می کند، بنابراین نور طبیعی خانه را در طول صبح تامین می کند. .

ما مصالح معمولی منطقه Puebla-Tlaxcala را برای این پروژه پیشنهاد کردیم: آجر سفالی قرمز و کاشیهای معمولی تالاورا همراه با مصالح ساختمانی معاصر مانند بتن ظاهری و شیشه. برای پنجره ها، قاب فولادی به عنوان فراخوانی به معماری مدرن اواسط قرن بیستم در مکزیک در نظر گرفته شد که پنجره ها و راه حل های آن به یاد ماندنی و جذاب هستند، ویژگی هایی که اخیراً از بین رفته اند.

اتاق نشیمن، اتاق دوم و فضای پارک دوم حذف میشوند تا راه را برای منابع برنامهای متفاوتی که پیشنهاد معماری را غنی میکنند، باز کنند. در طبقه همکف ، یک پارکینگ تک پیشنهاد شده و یک انبار کوچک اضافه شده است. حذف اتاق نشیمن پیش بینی می شود زیرا مشتری واقعاً پویایی اجتماعی را که در اطراف آشپزخانه اتفاق می افتد ، را ترجیح می دهد . فضای ناهار خوری ، پس از آن، با نورطبیعی صبح و عصر تامین می شود ، و همراه با یک پاسیو است که با یک صفحه آجری سفالی تزئین شده است که در آن می توانند گیاهان با گلدان های مختلف به سبک آزاد داشته باشند.

فضای اصلی خانه یک استودیو دو ارتفاع است. پنجره بزرگ آن اجازه می دهد تا نور و گرمای مفید خورشیدی در طول روز وارد شود. این برای پراکندگی مناسب تجمع گرما طراحی شده است که از اثر گلخانه ای جلوگیری می کند. تزیینات تکمیل کننده خانه از دال های چوبی دست ساز و کف های بتنی صیقلی تشکیل شده است که به لطف زحمت بومی سازندگان متخصص این منطقه باعث کاهش هزینه های خانه شده و کیفیت ساخت را به خطر نمی اندازد.



تذکر : استفاده از مطالب وب سایت ستاوین ( شبکه هنر و معماری ستاوین ) فقط با ذکر منبع و لینک بلامانع است . کلیه حقوق، محتوا و طراحی سایت متعلق به وب سایت ستاوین میباشد. در غیر این صورت مراتب از طریق مراجع قانونی پیگیری خواهد شد .
دوستان و همراهان عزیز ستاوین ( شبکه هنر و معماری ستاوین ) ، با نظرات و پیشنهادات سازنده خود ما را در ارائه هر چه بهتر مطالب و اهداف مان، که همانا ارتقا جایگاه و فرهنگ معماری می باشد ، یاری کنید . منتظر دیدگاه های شما عزیزان هستیم . . .
ترجمه شده توسط تحریریه ستاوین - (علیرضا اورعی)