نظارت: امیرحسین اشعری
گرافیک: سارا ناظمی
هماهنگ کننده: شیوا نظربلند، اسما سیرجانی اصل
مطالعات و ایده پردازی: حکیمه الهی
در این محتوا با شبکه هنر و معماری ستاوین همراه باشید تا نگاهی به پلتفرم رست ، اثر امیرحسین اشعری ، مشهد داشته باشیم ...

چهره شهرها
امروزه در بسیاری از مناطق با ارزش شهرها، کاربریهای مسکونی بدون در نظر گرفتن اصول و زیرساختهای شهرسازی به فضاهای تجاری تبدیل میشوند. این روند باعث آشفتگی بصری شده و هویت شهری و حس مکان را تضعیف میکند. در پی آن، حس تعلق و پیوند اجتماعی کاهش یافته و ناامنی شهری افزایش مییابد.

تحلیل و بررسی، پیش از بازسازی
موضوعی که با آن مواجه شدیم، پیشتر نیز فروشگاه مبل بود. در نمای رو به بولوار ملکآباد مشهد، یک کمد بزرگ نصب شده بود. این نما یادآور نظریه "Decorated Shed" رابرت ونتوری و دنیس اسکات براون بود؛ نظریهای که بر شکلگیری هویت بنا نه از طریق فرم و معماری، بلکه با افزودن تزئینات یا نشانههای گرافیکی بر سطح نما تأکید دارد. از سوی دیگر، نمای رو به خیابان بزرگمهر محصول گسترش کنترلنشدهی نماهای تجاری، عمدتاً شیشهای و مملو از اطلاعات بصری بود.

هر دو رویکرد، شیوههایی رایج در طراحی بناهای تجاری هستند که موجب بینظمی و اغتشاش در منظر شهری میشوند. این مسئله به عنوان یکی از دغدغههای طراحی مورد توجه قرار گرفت.

دغدغه 1: مسئله شهری
در مواجهه با این دغدغه، پرسشی مطرح شد: چگونه میتوان در بازسازی، ضمن ایجاد هویتی مستقل برای فرم پروژه، از افزایش آشفتگی بصری در شهر جلوگیری کرد؟

تقابل با الگوی رایج
سطح خارجی نمایشگاه با رویکردی انتقادی بهصورت حجمی ساده، سفید و نسبتاً یکپارچه طراحی شده که در آن، میزان شفافیت و ابعاد ویترینها به حداقل رسیده است. با وجود سادگی، صفحات نما در گوشهها به نرمی به داخل خم شده و با دیوارهای داخلی که پیرامون فضای نمایش محصول هستند، ادغام میشوند. این یکپارچگی، هویتی را شکل میدهد که از فضای داخلی سرچشمه گرفته و تا عرصهی عمومی امتداد مییابد.

کنجکاوی و کشف فضا
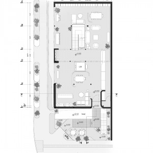
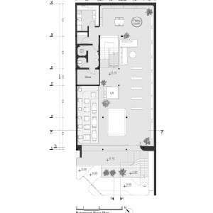
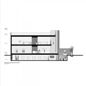
در جانمایی جدید، ورودی در کنج قرار گرفته است. با شکست مسیر و ایجاد سلسلهمراتب، تجربه ورود به فضا تدریجی شده و مخاطب از فضای پرهیاهوی شهری به درون نمایشگاه هدایت میشود. این طراحی کنجکاوی مخاطب را برای کشف فضا تحریک میکند. مسیر شامل پلی معلق به تراز همکف و پلههایی به گودالباغچهی زیرزمین است که علاوه بر ایجاد سیالیتهای حرکتی و بصری، نور طبیعی را به فضاهای زیرین میرساند.

در نما نیز، شکافهای ایجادشده برشهایی از نور و قابهایی از دید به باغ ملکآباد را بوجود میآورند. این شکافها در عین حال برای ناظران بیرونی حسی از دعوت به کشف فضای داخلی را برمیانگیزند.

تبدیل شوروم به پلتفرم
اغلب نمایشگاهها یا "showroom" فضایی برای ارائه و فروش محصولات و ارتباط مستقیم با مشتریان تعریف میشوند. با تغییر این تعریف به فضایی که از پذیرش تنها یک کاربری جلوگیری میکند و توانایی ایفای نقشهای فرهنگی و اجتماعی را دارد، احتمال افزایش پویایی اجتماعی در محدوده پیرامون نمایشگاه عملیتر میشود.

دغدغه 2: برنامه پروژه
سوال دیگر پروژه که مطرح شد: آیا نمایشگاههای خصوصی و مبلمان میتوانند پلتفرمی (Platform) برای برگزاری رویدادهای فرهنگی-اجتماعی مختلف نیز باشند؟

انعطاف و چند عملکردی بودن
در پاسخ به این سوال، رویکرد ما طراحی فضایی انعطافپذیر است که پذیرای عملکردهای مختلف و سناریوهای گوناگون در طول زمان باشد. سناریویی که میتواند شامل برگزاری رویدادهای فرهنگی و اجتماعی در این نمایشگاه باشد. با این هدف، فضایی یکدست با حداقل مرزها نیاز بود که بتواند با برنامههای مختلف همخوانی پیدا کند. اما بنای قدیمی با فشردگی پلان و ارتفاع کم سقف، فضایی تکهتکه شده بود که در برابر انعطاف مقاومت میکرد. با رعایت اصول مقاومسازی، دیوارها و بخشهایی از سقف برداشته شدند تا تطبیقپذیری فضا امکانپذیر شود. در بخشهایی که به حوزهبندی نیاز بود، از صفحات پلیکربنات معلق استفاده شد. این صفحات نیمهشفاف به عنوان مرز، ضمن حفظ یکپارچگی فضا، سایهای از اتفاقات محدوده بعدی را بهصورت انتزاعی نمایش میدهند که ممکن است حس بازیگوشی و کنجکاوی را در فضا ایجاد کند.

تلاشها
پلتفرم رُست با سادگی و حذف اضافات، از بناهای تجاری پیرامون خود متمایز شده و مخاطب را به تأمل وا میدارد. این رویکرد نهتنها بر نقش اجتماعی پروژه در شهر تأکید دارد، بلکه با فراهم کردن امکان برگزاری رویدادهای فرهنگی، تلاش میکند فراتر از شوروم و فضای صرفاً تجاری عمل کرده و تعریف آن را به پلتفرم تغییر دهد.













همراه گرامی ، برای مشاهده تصاویر و مستندات بیشتر ، در ارتباط با موضوع ، به بخش " تصاویر بیشتر " مراجمعه کنید .
تذکر : استفاده از مطالب وب سایت ستاوین ( شبکه هنر و معماری ستاوین ) فقط با ذکر منبع و لینک بلامانع است . کلیه حقوق، محتوا و طراحی سایت متعلق به وب سایت ستاوین میباشد. در غیر این صورت مراتب از طریق مراجع قانونی پیگیری خواهد شد .
دوستان و همراهان عزیز ستاوین ( شبکه هنر و معماری ستاوین ) ، با نظرات و پیشنهادات سازنده خود ما را در ارائه هر چه بهتر مطالب و اهداف مان، که همانا ارتقا جایگاه و فرهنگ معماری می باشد ، یاری کنید . منتظر دیدگاه های شما عزیزان هستیم . . .
ترجمه شده توسط تحریریه ستاوین - (علیرضا اورعی)