تیم طراحی استودیو Purple Ink ،به تازگی ساختمانی مسکونی در شهر بنگلور ،هندوستان طراحی کرده است، که مشخصه اصلی ذکر شده برای آن ،جانمایی فضایی به مثابه حیاط خلوت مرکزی و با مقیاس کوچک در هسته مرکزی بنا می باشد .


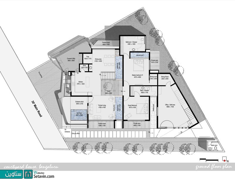
به گفته تیم طراحی ،فرایند طراحی این پروژه،با درک اقلیمی از محیط اطراف آغاز شده است.سایت پروژه ،دارای دید و منظر سبز در جبهه شمالی می باشد.وجود حیاط دراین خانه،باعث ادغام طبیعت بیرون و محیط درونی خانه شده است.تک درخت موجود در حیاط داخلی،نقش تندیس گونه یافته و فضاهای نشیمن،نهارخوری و پلکان به دور حیاط داخلی شکل گرفته اند.


براساس عوامل اقلیمی،ساختمان به سمت جبهه شمالی چرخیده تا بیشترین بهره گیری از طبیعت سبز اطراف و کمترین بهره از نور شدید و نامناسب خورشید را داشته باشد،همچنین یک کانال پیوسته آب در جهت باد غالب منطقه ،و به منظور ایجاد خرده اقلیم در فضاهای داخلی ،درنظر گرفته شده است.حیاط داخلی،نور لازم برای تمامی فضا ها را فراهم کرده و امکان حرکت هوا به منظور تهویه را نیز ایجاد می کند.پانلهای سبز درنظر گرفته شده درون سایت،کانال آب و حیاط داخلی ساختمان،در مجموع یک سیستم اکولوژیکی را ایجاد نموده اند که سبب شده ساختمان کمترین نیاز به انرژیهای مکانیکی را داشته و از نظر چرخه انرزی،مثبت عمل کند.




منبع : contemporist
تذکر : استفاده از مطالب وب سایت ستاوین ( شبکه هنر و معماری ستاوین ) فقط با ذکر منبع و لینک بلامانع است . کلیه حقوق، محتوا و طراحی سایت متعلق به وب سایت ستاوین میباشد. در غیر این صورت مراتب از طریق مراجع قانونی پیگیری خواهد شد .
دوستان و همراهان عزیز ستاوین ( شبکه هنر و معماری ستاوین ) ، با نظرات و پیشنهادات سازنده خود ما را در ارائه هر چه بهتر مطالب و اهداف مان، که همانا ارتقا جایگاه و فرهنگ معماری می باشد ، یاری کنید . منتظر دیدگاه های شما عزیزان هستیم . . .
ترجمه شده توسط تحریریه ستاوین