معماران ODOS، اخیرا ساختمان مسکونی را در دوبلین ایرلند،طراحی کرده اند ،که نمای این بنا دارای پوششی به رنگ سیاه و متریال فلز می باشد.این بنا ،متشکل از سه ساختمان مسکونی چسبیده به هم می باشد .
.jpg)
این ساختمان ،در مجاورت کانال Royal واقع شده است .پوشش فلزی ذکر شده ، به گفته معمار پروژه همچون کلاهی می ماند ،که بر روی این سه ساختمان به هم پیوسته قرار گرفته است.هر یک ا ز واحد ها دارای دسترسی جداگانه به فضای باز بیرونی و نور طبیعی برای هر اتاق و هر طبقه ای می باشد.
.jpg)
.jpg)
.jpg)
پلکان های این بنا ،صرفا یک عنصر ارتباطی نیست ،این پلکان ،کمک به انتقال نور به داخل فضا کرده و نیز به جهت طرح خود سبب ایجاد بازی های نور و سایه زیبا بر جداره های فضا می گردد .
.jpg)
.jpg)
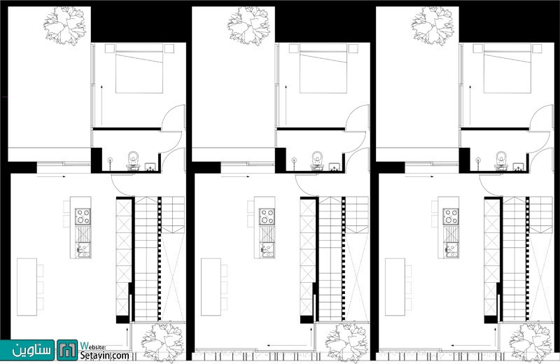
فضای آشپزخانه در طبقه اول ،در قسمت پشت سطح فلزی نما جانمایی شده است ،بدین جهت علاوه بر تامین محیط خصوصی و از جبهه خارجی و نیز ایجاد سایه به واسطه طرح نما ، دسترسی به تراسی مشرف به خیابان زیرین را نیز تامین می کند . فضای نشیمن در قسمت بالای آشپزخانه واقع شده است و با لحاظ یک وید ، با فضای زیرین خود دارای ارتباط فضایی بوده و سبب انتقال نور به سطوح پایین نیز می گردد .
.jpg)
.jpg)
.jpg)
.jpg)
.jpg)
.jpg)
.jpg)
دوستان عزیز ستاوین ، با نظرات و پیشنهادات سازنده خود ما را در ارائه هر چه بهتر مطالب و اهداف مان، که همانا ارتقا جایگاه معماری می باشد ،یاری کنید . منتظر دیدگاه های شما عزیزان هستیم . . .
منبع : contemporist
تذکر : استفاده از مطالب وب سایت ستاوین ( شبکه هنر و معماری ستاوین ) فقط با ذکر منبع و لینک بلامانع است . کلیه حقوق، محتوا و طراحی سایت متعلق به وب سایت ستاوین میباشد. در غیر این صورت مراتب از طریق مراجع قانونی پیگیری خواهد شد .
دوستان و همراهان عزیز ستاوین ( شبکه هنر و معماری ستاوین ) ، با نظرات و پیشنهادات سازنده خود ما را در ارائه هر چه بهتر مطالب و اهداف مان، که همانا ارتقا جایگاه و فرهنگ معماری می باشد ، یاری کنید . منتظر دیدگاه های شما عزیزان هستیم . . .
ترجمه شده توسط تحریریه ستاوین - (علیرضا اورعی)