تیم معماری Moon Hoon، اخیرا یک مرکز فرهنگی خصوصی را همراه با فضاهای جانبی همچون گالری و کافی شاپ در Gyeonggi-do، در کره جنوبی طراحی کرده است .

گاهی در طراحی یک پروژه کارفرما به بیان ایده های خود می پردازد ، ایده هایی که گاه حاصل تفکر و تخیل کارفرما می باشد و گاهی محصول رویت طرحی مشابه و یا حتی دیدن طرحی ازطبیعت می باشد .در این طرح کارفرما ،صحبت از دو ماه دارد که در محل ظاهر بنا با یکدیگر برخورد می نمایند ، ایده ای بر گرفته از یک فیلم ،فیلم تقاطع دوماه که یک درام احساسی از روابط میان یک فارغ التحصیل کالج و مردی از یک کارناوال محلی را بیان می کند.


هدف از این بنا ایجاد یک مرکز فرهنگی خصوصی می باشد، که فضاها با مرکزیت یک کافی شاپ و گالری های هنری شکل گرفته اند .سایتی که پروژه در آن واقع شده است ،به گونه ای می باشد، که کلیه پروژه های اطراف، بدون توجه به اصول نماسازی شهری و هماهنگی با بافت و حتی کاربری، اعم از صنعتی و مسکونی و غیره . . . شکل گرفته اند .
.jpg)
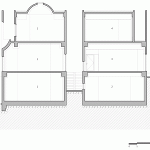
در این پروژه ،دو نکته مهم از اولویت های مورد توجه بوده است: اولین نکته ،بودجه اندک برای ساخت و دومین مساله، ایده بر گرفته از فیلم برخورد دو ماه می باشد . این ساختمان از دوقسمت تشکیل شده است ، هر یک دارای سه طبقه ارتفاع و دسترسی اختصاصی می باشند،البته هیچ راه پله ای در داخل ساختمان وجود ندارد،بلکه پلکان در فاصله میان دو ساختمان وقع شده است.ساختمانها از یکدیگر 2 متر فاصله دارند.در طبقه همکف یکی از ساختمانها،گالری واقع شده است وکافی شاپ،در طبقه وسط ساختمان دیگر قرار دارد.سایر فضاها در هر دو ساختمان،قابل دسترس برای اجاره دادن می باشند و می توانند به عنوان فضای اداری و یا محل برگزاری رویدادی خاص مورد استفاده قرار گیرند.درطبقه آخر هر دو ساختمان،نیز بام سبز محصوری طراحی شده است.موتیفهای دایره ای پنجره های نما ،در داخل ساختمان نیزتکرار شده اند.وید مدور بزرگ داخلی ،امکان نفوذ بیشتر نور را فراهم کرده است.
با ستاوین همراه شوید تا نگاهی به این بنا داشته باشیم . . .











.jpg)




دوستان عزیز شبکه هنر و معماری ستاوین ، با نظرات و پیشنهادات سازنده خود ما را در ارائه هر چه بهتر مطالب و اهداف مان، که همانا ارتقا جایگاه معماری می باشد ،یاری کنید . منتظر دیدگاه های شما عزیزان هستیم . . .
منبع :contemporist و dezeen
تذکر : استفاده از مطالب وب سایت ستاوین ( شبکه هنر و معماری ستاوین ) فقط با ذکر منبع و لینک بلامانع است . کلیه حقوق، محتوا و طراحی سایت متعلق به وب سایت ستاوین میباشد. در غیر این صورت مراتب از طریق مراجع قانونی پیگیری خواهد شد .
دوستان و همراهان عزیز ستاوین ( شبکه هنر و معماری ستاوین ) ، با نظرات و پیشنهادات سازنده خود ما را در ارائه هر چه بهتر مطالب و اهداف مان، که همانا ارتقا جایگاه و فرهنگ معماری می باشد ، یاری کنید . منتظر دیدگاه های شما عزیزان هستیم . . .
ترجمه شده توسط تحریریه ستاوین - (علیرضا اورعی)