EM2N ، جایزه اول در مسابقات طراحی Museum of Natural History Basel and the State Archive را برای شهر Basel سوئیس از آن خود کرد . در این فرآیند ،بیش از 22 طرح انتخاب شدند.در این طرح ها ،هدف ،ترکیب علوم و دانش در زمینه طبیعت و فرهنگ در سوییس می باشد . بخشی از طرح منتخب به صورت بنایی بلند و به مثابه برجی در طرح به عنوان لندمارک شهری، عمل می کند، که در Luzernerringbrücke واقع شده است . این ساختمان بلند و کشیده در امتداد کشیدگی و گستردگی طرح که شامل احجام دیگری نیز می شود و در راستای Vogesenplatz جانمایی شده است . این بنا ،در مجاورت خط راه آهن نیز می باشد . در این طرح ، استفاده از اصل پیوستگی و لایه بندی ، سبب فرم دهی به بافت شهری و نیز معماری گشته است . در این طرح، ستون ها ،ورودی مجموعه و فضاهای آرشیو و ذخیره سازی ،توسط بتن نمایان و متریال شیشه مشخص شده اند،مابقی سطوح نما و احجام ، توسط متریال آجر کوره ای پوشش داده شده است .
.jpg)
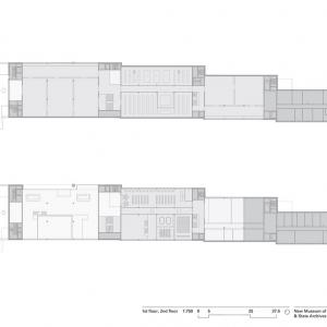
فضاهای ذخیره سازی و ساختمان آرشیو در طبقات فوقانی جانمایی شده است.سیستم سیرکولاسیون، از طریق فضایی به ارتفاع 18 متر در ساختمان برج ،صورت می پذیرد ،که در ارتباط مستقیم با فضای جانمایی شده در تراز همکف همچون فضاهای مطالعه ، از جنبه بصری و فضایی می باشد .
.jpg)
فضاهای موزه ،در طبقات زیرین جانمایی شده است . ایده موزه در این طرح، به عنوان فضایی برای ذخیره و نگهداری دانش و علم ، توسط سازه بتنی در معماری بنا، شکل گرفته است . جانمایی فضاهای مذکور، سبب شکل گیری سطح بالایی از انعطاف پذیری و سازگاری با عملکرد های مدنظر حتی برای دراز مدت شده است . فضاهای مربوط به ذخیره سازی اطلاعات (آرشیو) و فضای موزه ، در واقع دو سازمان مختلف در این طرح می باشند ،که روابط آنها با دقت و هوشیاری فراوان و پیوسته و همزمان در ارتباط با کاربری های شهری همچون مترو طراحی گشته است .
.jpg)
.jpg)
.jpg)
.jpg)
.jpg)
.jpg)
.jpg)
.jpg)
.jpg)
.jpg)
تذکر : استفاده از مطالب وب سایت ستاوین ( شبکه هنر و معماری ستاوین ) فقط با ذکر منبع و لینک بلامانع است . کلیه حقوق، محتوا و طراحی سایت متعلق به وب سایت ستاوین میباشد. در غیر این صورت مراتب از طریق مراجع قانونی پیگیری خواهد شد .
دوستان و همراهان عزیز ستاوین ( شبکه هنر و معماری ستاوین ) ، با نظرات و پیشنهادات سازنده خود ما را در ارائه هر چه بهتر مطالب و اهداف مان، که همانا ارتقا جایگاه و فرهنگ معماری می باشد ، یاری کنید . منتظر دیدگاه های شما عزیزان هستیم . . .
منبع: archdaily
ترجمه شده توسط تحریریه ستاوین