سال شروع و خاتمه‌ اجرا:   طراحی این پروژه از سال 1388 آغاز گردید و حدود 3ماه پس از شروع طراحی عملیات اولیه اجرایی آن آغاز شده است. لذا بخشی از عملیات طراحی واجرا به صورت موازی پیش رفت . ا ...

احسان جبروتی

معمار
ایران (Iran) / مشهد

نام پروژه: ساختمان مسکونی نقیبی

بازدید: 24

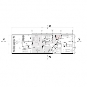
سال شروع و خاتمه‌ اجرا:   طراحی این پروژه از سال 1388 آغاز گردید و حدود 3ماه پس از شروع طراحی عملیات اولیه اجرایی آن آغاز شده است. لذا بخشی از عملیات طراحی واجرا به صورت موازی پیش رفت . این پروژه در سال 1390 به بهره برداری رسید.   کاربری بنا (با ذکر جزئیات): کاربری بنای پروژه مذکور مسکونی می‌باشد و در 4 طبقه شامل 1- ، همکف و اول به عنوان یک واحد و 2- به عنوان یک واحد دیگر اجرا شده است. سازه و تأسیسات بنا: از سازه فلزی کمپوزیت استفاده شده است و تاسیسات این ساختمان از سیستم چیلر و هواساز و گرمایش از کف می باشد.     سطوح زیربنا و زمین پروژه : پروژه مذکور در 4 طبقه (1-، همکف، 1+و2+) و در زمینی با متراژ 250 متر مربع تعریف شده است و دارای زیربنای 150 متر مربع در هر طبقه می باشد کل زیربنا 600 متر مربع ‌می باشد که مشتمل بر 3 طبقه تریبلکس مسکونی  که طبقات 1- و همکف و اول را شامل می‌شود و در طبقه 2+ نیز یک واحد مستقل تعریف گردیده است. ایده طراحی: ایده فضایی بنا ایجاد یک هرم در دید مخاطب هنگام ورود است این هرم مطابق تصویر در پلان و مقاطع تعریف شده است. در آکس هرم مذکور یک آبنما و در انتهای آکس یک طاق تعریف شده است.   تجانس مخروط یا هرم دید با هرم فضائی مجموعه  پلان   مقطع      

پسندها

شبکه هنر و معماری ستاوین

استفاده از محتوای سایت با ذکر منبع و درج لینک بلامانع است . کلیه حقوق مادی و معنوی , محتوا و طراحی متعلق به شبکه هنر و معماری ستاوین می باشد .