در این پست، با ستاوین همراه باشید تا نگاهی به مجتمع مسکونی منحصر به فرد NEW GROVE در اسلواکی داشته باشیم . این مجتمع مسکونی توسط استودیو طراحی معماری Šebo Lichý با همکاری معمار اسلواکی Drahan Petrovič که در سال های قبل نیز باهم در ونکور همکاری داشته اند ، طراحی شده است .

به گفته معمار پروژه ، این طرح بر اساس اصول طراحی مسکونی در کانادا برنامه ریزی شده است . بر این اساس ،طراحی بنا به صورت معماری سفارشی و مفهوم معماری در واحد همسایگی انعطاف پذیر در تعداد نامحدود پایه گذاری شد . در این طرح مشتریان می توانند تعداد خواب ها ، فضای نشیمن ، جانمایی ، ارتباط فضایی و عملکردی فضاهایی همچون آشپزخانه را انتخاب نمایند .

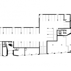
مفهوم انعطاف پذیری و نمود عملکردی آن سبب می گردد تا نیاز به تغییر در آینده فضا مطابق با خواسته های مالک صورت پذیرد . به گفته طراح مفهوم بالکن در این طرح بسیار متمایز و به لحاظ عملکردی پاسخده می باشد . در این طرح ،واحد های مسکونی از زیر بنای 72 مترمربع شروع شده و دارای یک الی پنچ فضای خواب می باشند . فضای پارکینگ جهت 83 جای پارک در دو تراز زیرزمین و همکف تامین شده است . دسترسی به واحد ها از دو هسته ارتباط عمودی شامل پلکان و آسانسور انجام می گیرد . با ستاوین ( شبکه معماری ایران ) همراه باشید . . .


















تذکر : استفاده از مطالب وب سایت ستاوین ( شبکه هنر و معماری ستاوین ) فقط با ذکر منبع و لینک بلامانع است . کلیه حقوق، محتوا و طراحی سایت متعلق به وب سایت ستاوین میباشد. در غیر این صورت مراتب از طریق مراجع قانونی پیگیری خواهد شد .
دوستان و همراهان عزیز ستاوین ( شبکه هنر و معماری ستاوین ) ، با نظرات و پیشنهادات سازنده خود ما را در ارائه هر چه بهتر مطالب و اهداف مان، که همانا ارتقا جایگاه و فرهنگ معماری می باشد ، یاری کنید . منتظر دیدگاه های شما عزیزان هستیم . . .
منبع: شبکه معماری ایران (ستاوین) , Archdaily
ترجمه شده توسط تحریریه ستاوین - (علیرضا اورعی)