در این پست با شبکه هنر و معماری ستاوین همراه باشید تا نگاهی به پروژه مرکز هنری Aranya , بنایی که طراحی کارفرما از تیم طراحی و تحقیقات Neri&Hu خواست تا یک مرکز هنری را در مجموعه تفریحی ساحلی خود طراحی کند ، Neri&Hu این فرصت را به دست آوردند تا مفاهیم فضا برای هنر را در مقابل فضای جمعی زیر سوال ببرند . ( توضیحات متن توسط معماران ارائه شده است )

با وجود ساختاری ساده در این مرکز هنری , آرانیا ، به عنوان یک جامعه تأکید جدی بر ماهیت معنوی ایدئولوژی سبک زندگی آنها ، سازگاری با محیط دارد .بنابراین سعی شده است که حیاط داخلی و مرکزی بنا در عین استفاده به عنوان فضای نمایشگاهی , به عنوان یک فضای اشتراکی برای مخاطبین ایفا نقش کند .

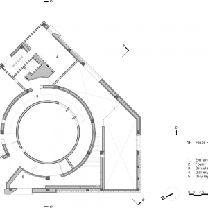
در پروژه طراح سعی کرده است , یک هندسه مخروطی خالص در مرکز با یک آمفی تئاتری در پایه ایجاد میکند . فضای خالی مرکزی می تواند از بسیاری جهات مجدداً برنامه ریزی و مورد استفاده قرار گیرد . گالریهای نمایش در بالا از مزیت فضای عمومی بهرهمند هستند و این پروژه را بسیار بیشتر از یک مکان برای نمایش میسازد ، و به هدف نهایی یعنی مکانی برای به اشتراک گذاری شده است .

در توده انبوهی از حجم ساختمان، مجموعهای از فضاهای بههمپیوسته وجود دارد که بازدیدکنندگان میتوانند آزادانه در داخل، به آرامی بالا بروند و از یک سفر برنامهریزیشده با مناظر رو به بیرون و هم به سمت خارج لذت ببرند. فضاهای گالری با هدف لذت بردن از هنر هستند. این پروژه در این زمینه متفاوت نیست ، مسیر مارپیچی شما را در تمام فضا هدایت می کند و شما را برای رفتن به سمت بالا برای دامنه و زاویه های دید بیشتر ترغیب میکند.

از پایین مسیر حرکت از کافه شروع شده و در ادامهبه گالری چند منظوره، و آمفی تئاتر خارجی و مسیری که بازدیدکنندگان را از طریق پنج گالری متمایز هدایت میکند، در بالای پشتبام به اوج میرسد که در آن شما مشاهده ۳۶۰ درجه از فعالیتهای زیر را انجام میدهید. از نکات قابل توجه در این پروژه , نمای متخلخل از ساختار مدولار است که سبب بازی نور و سایه جدی در پروژه گشته است . با شبکه هنر و معماری ستاوین همراه باشید ...







تذکر : استفاده از مطالب وب سایت ستاوین ( شبکه هنر و معماری ستاوین ) فقط با ذکر منبع و لینک بلامانع است . کلیه حقوق، محتوا و طراحی سایت متعلق به وب سایت ستاوین میباشد. در غیر این صورت مراتب از طریق مراجع قانونی پیگیری خواهد شد .
دوستان و همراهان عزیز ستاوین ( شبکه هنر و معماری ستاوین ) ، با نظرات و پیشنهادات سازنده خود ما را در ارائه هر چه بهتر مطالب و اهداف مان، که همانا ارتقا جایگاه و فرهنگ معماری می باشد ، یاری کنید . منتظر دیدگاه های شما عزیزان هستیم . . .
ترجمه شده توسط تحریریه ستاوین