در این محتوا با شبکه هنر و معماری ستاوین همراه باشید تا نگاهی به خانه MC ، اثر تیم معماری Cristian Romero Valente ، شیلی داشته باشیم ... خانه ام سی بر روی توپوگرافی و شیب ملایمی در داخل زمین های چیکورئو، سانتیاگو، شیلی واقع شده است که به طور یکپارچه با محیط طبیعی خود در هماهنگی است . دسترسی اصلی آن، یک پلکان بالارونده، به طبقه دوم منتهی می شود، جایی که می توان از منظره ای پانوراما به سمت شمال شرقی لذت برد.

نمای رو به خیابان به عنوان یک جداره صلب برای جلوگیری از ارتباط بصری نقش بازی می کند و از حریم خصوصی ساکنان محافظت می کند ، در حالی که نمای مشرف به باغ ها سخاوتمندانه با محیط اطراف خود در ارتباط است و ارتباط یکپارچه بین فضاهای داخلی و خارجی برقرار می کند.

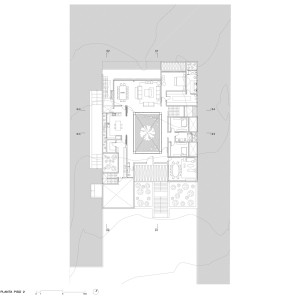
در هسته آن یک حیاط مرکزی با ارتفاع جداره های بیشتر قرار دارد که به عنوان نقطه کانونی و یکپارچه کننده فضاهای مختلف عمل می کند. طبقه اول دارای استخر سرپوشیده، تراس هایی با منظره باغ، اسپا، قسمت نشیمن و پارکینگ است.

طراحی طبقه اول بر شفافیت و سیالیت تمرکز دارد و امکان دید واضح بین محیط های مختلف و حیاط مرکزی را از هر نقطه ای از خانه فراهم می کند. این چیدمان حس باز بودن و وسعت را کاربر فضا می دهد و فضایی دلپذیر را ایجاد می کند.

در طبقه دوم، خصوصیترین منطقه خانه با اتاقخوابهای بزرگ، آشپزخانه مدرن، و ناهارخوری راحت که همگی به حیاط مرکزی متصل هستند، جانمایی شده است .
خانه دارای ویژگی هایی مانند نورگیرهای غیر مستقیم، نور طبیعی و لبه های سقفی برای سایه، محیط داخلی راحت را تضمین می کند.

در مورد مصالح، خانه با استفاده از ترکیبی از عناصر ساخته شده است که استحکام، گرما و دوام را فراهم می کند. ماده اصلی مورد استفاده بتن مسلح است که یک ساختار محکم و مقاوم برای خانه ارائه می دهد و پایداری آن را در طول زمان تضمین می کند. دیوارهای بتنی نه تنها حفاظت و حریم خصوصی را برای ساکنین فراهم می کند، بلکه به عنوان عناصر طراحی نیز عمل می کند.

از سوی دیگر، چوب به کار رفته در هر دو سقف و برخی از پوشش های داخلی به فضاها و محیطی گرم و صمیمی می دهد ، در حالی که نوری که از حیاط مرکزی نفوذ می کند، فضایی متحول و پویا ایجاد می کند که خانه را در طول روز و شب متحول می کند. طراحی جاودانه ای که باعث باز بودن و آرامش می شود.

تذکر : استفاده از مطالب وب سایت ستاوین ( شبکه هنر و معماری ستاوین ) فقط با ذکر منبع و لینک بلامانع است . کلیه حقوق، محتوا و طراحی سایت متعلق به وب سایت ستاوین میباشد. در غیر این صورت مراتب از طریق مراجع قانونی پیگیری خواهد شد .
دوستان و همراهان عزیز ستاوین ( شبکه هنر و معماری ستاوین ) ، با نظرات و پیشنهادات سازنده خود ما را در ارائه هر چه بهتر مطالب و اهداف مان، که همانا ارتقا جایگاه و فرهنگ معماری می باشد ، یاری کنید . منتظر دیدگاه های شما عزیزان هستیم . . .
ترجمه شده توسط تحریریه ستاوین - (علیرضا اورعی)