سی جی آرتیست: محمود علمی
گرافیک: سارا داداش پور
در این محتوا با شبکه هنر و معماری ستاوین همراه باشید تا نگاهی به پروژه ویلای شماره ۳۸ ، پوستهٔ نیمهشفافِ آجر در بستر ساحلیِ قشم ، از دفتر معماری شباهنگ در جزیره قشم داشته باشیم.

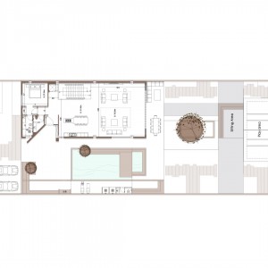
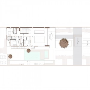
پروژه ویلای شماره 38 در جزیره قشم و شهرکی ساحلی واقع شده است. در رمینی به مساحت 1200 مترمربع که بنایی با سطح اشغال 200 مترمربع در دو طبقه در آن احداث شده بود. طیق ضوابط شهرک و خواسته های کارفرما امکان افزایش سطح اشغال و تغییر در سازه وجود نداشت.

از این رو در روند طراحی حجم باکسی شکل موجود در دو طبقه را به عنوان عنصری ثابت در نظر گرفتیم و پوسته ا ی نیمه شفاف از آجر بر روی آن قرار دادیم. پوسته ای که در سقف و کف طبقاتی که در راستایش بود امتداد پیدا کرد. در قسمت هایی گشوده شد و تراس ها و بازشوها را تشکیل داد و در فضاهایی بنابر کاربری حالتی متحرک به خود گرفت.

این پوسته در کنتراست آفتاب شدید قشم نقش مهمی در آسایش حرارتی داخل ایفا می کند. در ادامه و پس از جانمایی فضاهای محوطه، این پوسته در فضای باز نیز گسترش پیدا کرد و سقفی نیمه شفاف برای فضاهای خدمات استخر و پارکینگ اینجاد کرد.





برای دیدن تصاویر و مستندات بیشتر در ارتباط با این پروژه، مخاطبین میتوانند به بخش «تصاویر بیشتر» مراجعه کنند.
تذکر : استفاده از مطالب وب سایت ستاوین ( شبکه هنر و معماری ستاوین ) فقط با ذکر منبع و لینک بلامانع است . کلیه حقوق، محتوا و طراحی سایت متعلق به وب سایت ستاوین میباشد. در غیر این صورت مراتب از طریق مراجع قانونی پیگیری خواهد شد .
دوستان و همراهان عزیز ستاوین ( شبکه هنر و معماری ستاوین ) ، با نظرات و پیشنهادات سازنده خود ما را در ارائه هر چه بهتر مطالب و اهداف مان، که همانا ارتقا جایگاه و فرهنگ معماری می باشد ، یاری کنید . منتظر دیدگاه های شما عزیزان هستیم . . .
ترجمه شده توسط تحریریه ستاوین - (علیرضا اورعی)