در این محتوا با شبکه هنر و معماری ستاوین همراه باشید تا نگاهی به «خانه BB 214؛ معماری سکوت و تعادل، اثر استودیو معماری و طراحی مینیمالیست در هند» داشته باشیم .این خانه بهمثابه «معماری با حضوری آرام» شکل گرفته است؛ ترکیبی خاموش و سنجیده که با نور، تناسبات و خویشتنداری آگاهانه تعریف میشود. در این پروژه، پرهیز از تزیینات آشکار، به فضا، متریال و نور روز اجازه میدهد نقش اصلی را ایفا کنند و معماری، بیهیاهو، در خدمت زندگی روزمره قرار گیرد.

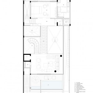
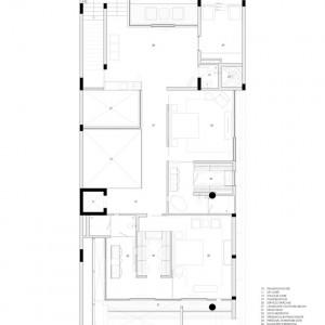
در قلب خانه، فضای نشیمنِ پیوستهای که بهصورت عمودی سازماندهی شده، استخوانبندی پلان را شکل میدهد. پلکانی مجسمهگون در دل این خلأ عمودی قرار گرفته است؛ نه بهعنوان یک شیء مستقل، بلکه بهعنوان عنصری فضایی که ترازها را به یکدیگر پیوند میدهد. فضاهای دوارتفاعه، امتداد عمودی و افقی داخلی را تقویت کرده و قابهایی کنترلشده از آسمان، منظر و نور فراهم میآورند.


زبان متریال پروژه آگاهانه آرام و لمسی انتخاب شده است. بتن، سنگ، چوبهای روشن و منسوجات نرم در پالتی محدود به کار رفتهاند تا حضوری یکپارچه و در عین حال گرم و صمیمی ایجاد کنند. جزئیات، ظریف و دقیقاند؛ تمرکز بر لبهها، اتصالات و تناسبات است، نه بر تزیینات نمایشی. مبلمان و عناصر ثابت، همچون امتداد معماری تعریف شدهاند و روایت فضایی واحد و منسجمی را تقویت میکنند.


فضاهای خصوصی به درون گرایش دارند. اتاقخوابها بهعنوان فضاهایی برای خلوت و آرامش طراحی شدهاند؛ با نوری کنترلشده، کنتراست متریالی کمتر و حس محصوریت بیشتر. این فضاها سکوت و دروننگری را در تعادلی سنجیده با گشودگی فضاهای عمومی فراهم میکنند.

در نهایت، این خانه بهدنبال «تعادل» است، نه «بیانی اغراقآمیز». معماریای مبتنی بر ژستهای سنجیده؛ جایی که نور، سایه و فرم در همزیستی متوازن، بستری زمانمند و ماندگار میآفرینند—معماریای شکلگرفته نه از افراط، بلکه از نیت و آگاهی.


همراه گرامی، برای مشاهده تصاویر و مستندات بیشتر، در ارتباط با موضوع، به بخش «تصاویر بیشتر» مراجعه کنید.
تذکر : استفاده از مطالب وب سایت ستاوین ( شبکه هنر و معماری ستاوین ) فقط با ذکر منبع و لینک بلامانع است . کلیه حقوق، محتوا و طراحی سایت متعلق به وب سایت ستاوین میباشد. در غیر این صورت مراتب از طریق مراجع قانونی پیگیری خواهد شد .
دوستان و همراهان عزیز ستاوین ( شبکه هنر و معماری ستاوین ) ، با نظرات و پیشنهادات سازنده خود ما را در ارائه هر چه بهتر مطالب و اهداف مان، که همانا ارتقا جایگاه و فرهنگ معماری می باشد ، یاری کنید . منتظر دیدگاه های شما عزیزان هستیم . . .
ترجمه شده توسط تحریریه ستاوین - (علیرضا اورعی)