مجموعه ورزشی و فرهنگی Jianyang ، اثر تیم معماری CSWADI ، چین

مجموعه: پروژه های معماری ، تاریخ انتشار: ۲۲ / ۱۱ / ۱۴۰۴ ، شناسه: ۵۵۰۰

مکان : چنگدو، چین
سال : 2022 میلادی
مشاور طراحی معماری : CSWADI
همکاران طراحی : China Southwest Architectural Design and Research Institute Corp. Ltd.
طراحی منظر : Chen Chunxu، Wang Kun
طراحی نورپردازی : Ye Donghang
زیربنا پروژه : ۴۱۹٬۹۳۹ مترمربع
عکس : Renke Jiang، 404NF STUDIO

 

در این محتوا با شبکه هنر و معماری ستاوین همراه باشید تا نگاهی به مجموعه ورزشی و فرهنگی جیان‌یانگ، اثر دفتر CSWADI در شهر چنگدو چین داشته باشیم.

 

مجموعه ورزشی و فرهنگی جیان‌یانگ اثر CSWADI در چنگدو چین؛ پروژه‌ای پارک‌محور با کاربری‌های متنوع، الهام از فرهنگ سیچوان و الگوی پایدار بهره‌برداری شهری.

 

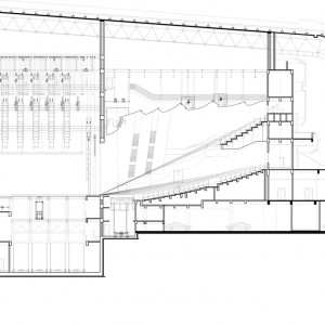
مجموعه ورزشی و فرهنگی جیان‌یانگ (Donglai Impression) یک مجموعه بزرگ و چندمنظوره است که برای میزبانی رویدادهای بین‌المللی مهمی همچون World Games و Universiade در چنگدو احداث شده است. این پروژه با زیربنایی در حدود ۴۲۰ هزار مترمربع، برنامه‌ای گسترده شامل «هشت سالن، سه مرکز، دو پارک، یک فضای شهری شاخص و یک تالار بزرگ نمایشی» را در قالب یک کل منسجم گرد هم می‌آورد.

 

مجموعه ورزشی و فرهنگی جیان‌یانگ اثر CSWADI در چنگدو چین؛ پروژه‌ای پارک‌محور با کاربری‌های متنوع، الهام از فرهنگ سیچوان و الگوی پایدار بهره‌برداری شهری.

 

راهبرد اصلی طرح، مبتنی بر مفهوم «شهرِ پارک‌محور» است؛ رویکردی که چندعملکردی‌بودن، لایه‌مندی اکولوژیک و عمق فرهنگی را به‌عنوان ویژگی‌های هویتی مجموعه تعریف می‌کند.

 

مجموعه ورزشی و فرهنگی جیان‌یانگ اثر CSWADI در چنگدو چین؛ پروژه‌ای پارک‌محور با کاربری‌های متنوع، الهام از فرهنگ سیچوان و الگوی پایدار بهره‌برداری شهری.

 

هسته مفهومی پروژه بر ایده «پارک سه‌بعدی» استوار است. شبکه‌ای چندسطحی از مسیرهای سبز، در دل ساختار سبز شهر ادغام شده و با اتصال به رودخانه توجیانگ و پارک آئوشان، یک رابط پیوسته طبیعی در مقیاس شهری ایجاد می‌کند. ساختار سبز «دوحلقه‌ای تودرتو»—شامل یک هسته سبز ۱۵۰ مو و یک کمربند منظر حلقوی به وسعت ۸۰ مو—از طریق کریدورهای شعاعی در یک پارک ورزشی مرکزی ۴۵۰ مو ادغام شده و فضایی باز، مشترک و در دسترس برای عموم شهروندان پدید آورده است.

 

مجموعه ورزشی و فرهنگی جیان‌یانگ اثر CSWADI در چنگدو چین؛ پروژه‌ای پارک‌محور با کاربری‌های متنوع، الهام از فرهنگ سیچوان و الگوی پایدار بهره‌برداری شهری.

 

یک حلقه هوایی سرزنده در ارتفاع ۶ متری، به‌عنوان محور فضایی اصلی پروژه عمل می‌کند؛ عنصری که بخش‌های عملکردی شمالی و جنوبی را به هم پیوند می‌دهد و هم‌زمان با آزادسازی سطح زمین، نفوذپذیری فضایی و امکان فعالیت‌های عمومی را افزایش می‌دهد. این سازمان‌دهی انعطاف‌پذیر، به مجموعه اجازه می‌دهد در زمان برگزاری رویدادهای ورزشی نقش تخصصی خود را ایفا کند و پس از آن، به فضاهای تجاری و فرهنگی تبدیل شود؛ رویکردی که پایداری بهره‌برداری را تضمین می‌کند.

 

مجموعه ورزشی و فرهنگی جیان‌یانگ اثر CSWADI در چنگدو چین؛ پروژه‌ای پارک‌محور با کاربری‌های متنوع، الهام از فرهنگ سیچوان و الگوی پایدار بهره‌برداری شهری.

 

نمای ساختمان با الهام از عناصر میراث ناملموس سیچوان—از جمله «فانوس‌های بادبزنی تاخورده» و «چینی بافته‌شده از بامبو»—طراحی شده است. این موتیف‌ها با استفاده از طراحی پارامتریک به پوسته‌ای هوشمند و معاصر ترجمه شده‌اند که هم‌زمان سایه‌اندازی مؤثر و نورگیری طبیعی را فراهم می‌کند. در طراحی منظر، بازآفرینی الگوی «لین‌پان» (بیشه‌زارهای سنتی غرب سیچوان) در کنار تلفیق آب و زمین‌های ورزشی، تجربه‌ای فضایی با غنای فلسفی و هویت منطقه‌ای شکل می‌دهد.

 

مجموعه ورزشی و فرهنگی جیان‌یانگ اثر CSWADI در چنگدو چین؛ پروژه‌ای پارک‌محور با کاربری‌های متنوع، الهام از فرهنگ سیچوان و الگوی پایدار بهره‌برداری شهری.

 

مرکز ورزشی و فرهنگی جیان‌یانگ افزون بر میزبانی رویدادهای بین‌المللی، به یکی از فضاهای اصلی زندگی روزمره شهروندان در حوزه فرهنگ و ورزش تبدیل شده است. این مجموعه، بازتابی روشن از چشم‌انداز چنگدو به‌عنوان «شهرِ پارک‌محور» و نمودی از اعتمادبه‌نفس فرهنگی با مؤلفه‌های «جذابیت سیچوانی و ظرافت شو» است؛ الگویی موفق که در آن، عملکرد و زیبایی‌شناسی، رویداد و زندگی روزمره، به‌گونه‌ای یکپارچه در کنار هم قرار گرفته‌اند.

 

مجموعه ورزشی و فرهنگی جیان‌یانگ اثر CSWADI در چنگدو چین؛ پروژه‌ای پارک‌محور با کاربری‌های متنوع، الهام از فرهنگ سیچوان و الگوی پایدار بهره‌برداری شهری.

 

مجموعه ورزشی و فرهنگی جیان‌یانگ اثر CSWADI در چنگدو چین؛ پروژه‌ای پارک‌محور با کاربری‌های متنوع، الهام از فرهنگ سیچوان و الگوی پایدار بهره‌برداری شهری.

 

مجموعه ورزشی و فرهنگی جیان‌یانگ اثر CSWADI در چنگدو چین؛ پروژه‌ای پارک‌محور با کاربری‌های متنوع، الهام از فرهنگ سیچوان و الگوی پایدار بهره‌برداری شهری.

 

مجموعه ورزشی و فرهنگی جیان‌یانگ اثر CSWADI در چنگدو چین؛ پروژه‌ای پارک‌محور با کاربری‌های متنوع، الهام از فرهنگ سیچوان و الگوی پایدار بهره‌برداری شهری.

 

مجموعه ورزشی و فرهنگی جیان‌یانگ اثر CSWADI در چنگدو چین؛ پروژه‌ای پارک‌محور با کاربری‌های متنوع، الهام از فرهنگ سیچوان و الگوی پایدار بهره‌برداری شهری.

 

همراه گرامی، برای مشاهده تصاویر و مستندات بیشتر، در ارتباط با موضوع، به بخش «تصاویر بیشتر» مراجعه کنید.

 

تذکر : استفاده از مطالب وب سایت ستاوین ( شبکه هنر و معماری ستاوین ) فقط با ذکر منبع و لینک بلامانع است . کلیه حقوق، محتوا و طراحی سایت متعلق به وب سایت ستاوین می‌باشد. در غیر این صورت مراتب از طریق مراجع قانونی پیگیری خواهد شد .

دوستان و همراهان عزیز ستاوین ( شبکه هنر و معماری ستاوین ) ، با نظرات و پیشنهادات سازنده خود ما را در ارائه هر چه بهتر مطالب و اهداف مان، که همانا ارتقا جایگاه و فرهنگ معماری می باشد ، یاری کنید . منتظر دیدگاه های شما عزیزان هستیم . . .

آیا تمایل دارید نام ، برند و محصولات شما برای مخاطبین ما نمایش داده شود؟ ( اینجا کلیک کنید )

ترجمه شده توسط تحریریه ستاوین - (علیرضا اورعی)

تبلیغات

شبکه هنر و معماری ستاوین

استفاده از محتوای سایت با ذکر منبع و درج لینک بلامانع است . کلیه حقوق مادی و معنوی , محتوا و طراحی متعلق به شبکه هنر و معماری ستاوین می باشد .